ID Lokasi : PTI0920152024T001
JAWA TENGAH, KAB PATI, Jakenan, Dukuhmulyo
PT HAYYU DYRA KUSUMA
REAL ESTATE INDONESIA
(REI)
Subsidi : 0 Unit
Terjual Subsidi : 20 Unit
Komersil : 0 Unit
Terjual Komersil : 0 Unit
Lihat Siteplan Digital




Harga: Rp 166.000.000
Luas Bangunan: 30m 2
Luas Lahan: 62m 2
Kamar Tidur: 2
Kamar Mandi: 1
a. Atap
Pasangan Baja Ringan, Genteng press
b. Dinding
Pasangan Hebel diplester, diaci dan dicat
c. Lantai & Pondasi
Pasangan Keramik Putih Polos 40x40 & Pasangan Batu Putih


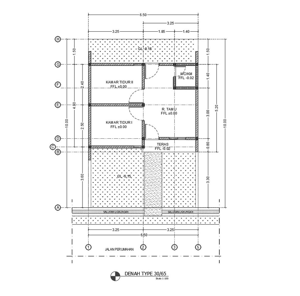
Harga: Rp 166.000.000
Luas Bangunan: 30m 2
Luas Lahan: 60m 2
Kamar Tidur: 2
Kamar Mandi: 1
a. Atap
Pasangan Baja Ringan, Genteng Press
b. Dinding
Pasangan hebel, diplester, diaci dan dicat
c. Lantai & Pondasi
Pasangan Keramik Putih polos 40x40 & Pasangan Batu Putih


Harga: Rp 166.000.000
Luas Bangunan: 30m 2
Luas Lahan: 71m 2
Kamar Tidur: 2
Kamar Mandi: 1
a. Atap
Pasangan Baja Ringan Genteng Press
b. Dinding
Pasangan Hebel, diplester, diaci dan dicat
c. Lantai & Pondasi
Pasangan Keramik Putih Polos 40x40 & Pasangan Batu Putih


Harga: Rp 166.000.000
Luas Bangunan: 30m 2
Luas Lahan: 66m 2
Kamar Tidur: 2
Kamar Mandi: 1
a. Atap
Pasangan Baja ringan, genteng press
b. Dinding
Pasangan Hebel diplester, diaci ddan dicat
c. Lantai & Pondasi
Pasangan keramik putih polos 40x40 & Pasangan Batu Putih


Harga: Rp 166.000.000
Luas Bangunan: 30m 2
Luas Lahan: 70m 2
Kamar Tidur: 2
Kamar Mandi: 1
a. Atap
Pasangan Baja Ringan, Genteng Press
b. Dinding
Pasangan Hebel, diplester, diaci dan dicat
c. Lantai & Pondasi
Pasangan Keramik Putih Polos 40x40 & Pasangan Batu Putih


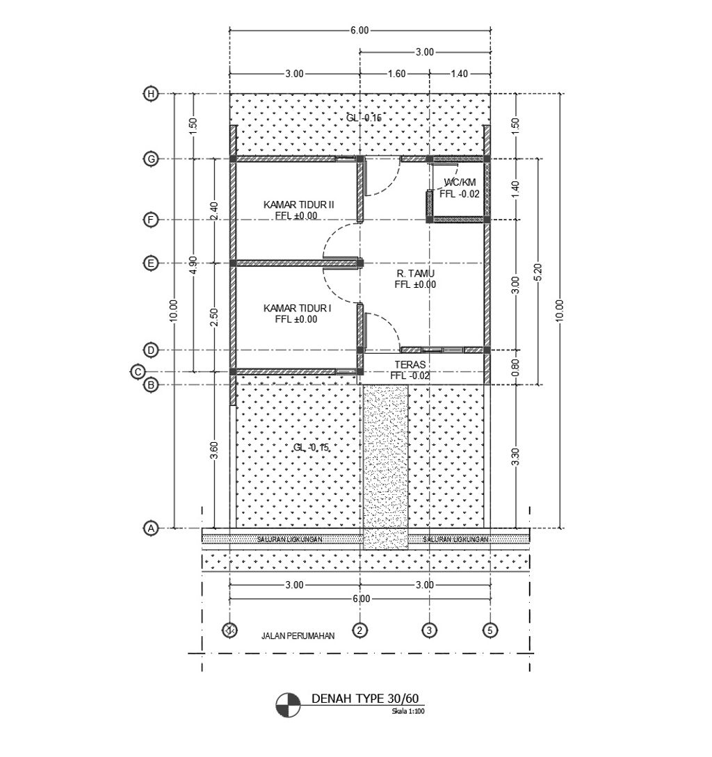
Harga: Rp 166.000.000
Luas Bangunan: 30m 2
Luas Lahan: 65m 2
Kamar Tidur: 2
Kamar Mandi: 1
a. Atap
Pasangan Baja Ringan, Genteng Press
b. Dinding
Pasangan Hebel, diplester, diaci dan dicat
c. Lantai & Pondasi
Pasangan Keramik Putih Polos 40x40 & Pasangan Batu Putih


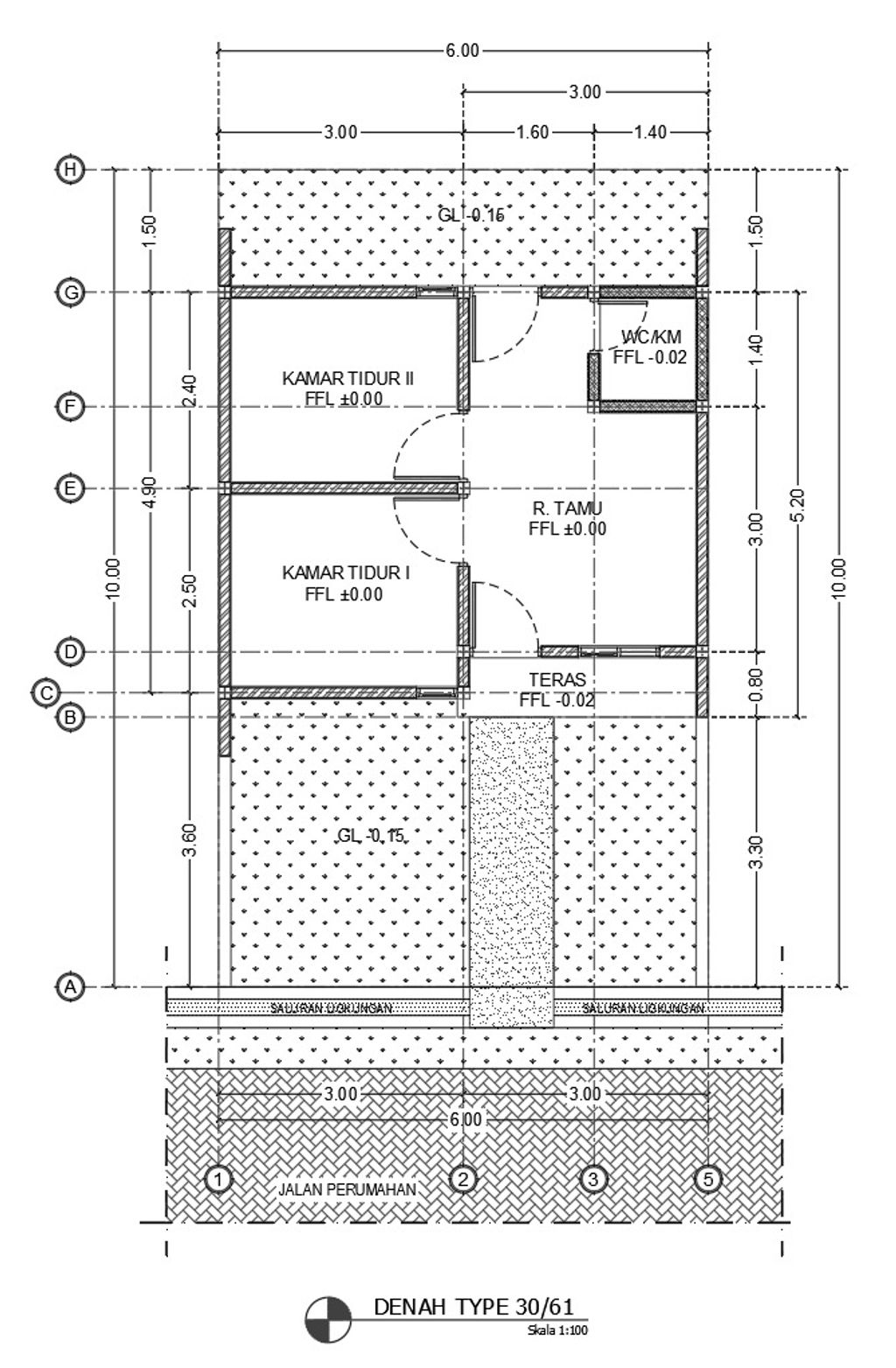
Harga: Rp 166.000.000
Luas Bangunan: 30m 2
Luas Lahan: 61m 2
Kamar Tidur: 2
Kamar Mandi: 1
a. Atap
Pasangan Baja Ringan, Genteng Press
b. Dinding
Pasangan Hebel diplester, diaci, dan dicat
c. Lantai & Pondasi
Pasangan Keramik Putih Polos 40x40 & Pasangan Batu Putih