ID Lokasi : PTI1020232020T001
JAWA TENGAH, KAB PATI, Pati, Sidokerto
PT ARISHA MECCA PERDANA
Himpunan Pengembang Permukiman dan Perumahan Rakyat
(HIMPERRA)
Subsidi : 1 Unit
Terjual Subsidi : 62 Unit
Komersil : 0 Unit
Terjual Komersil : 0 Unit
Lihat Siteplan Digital




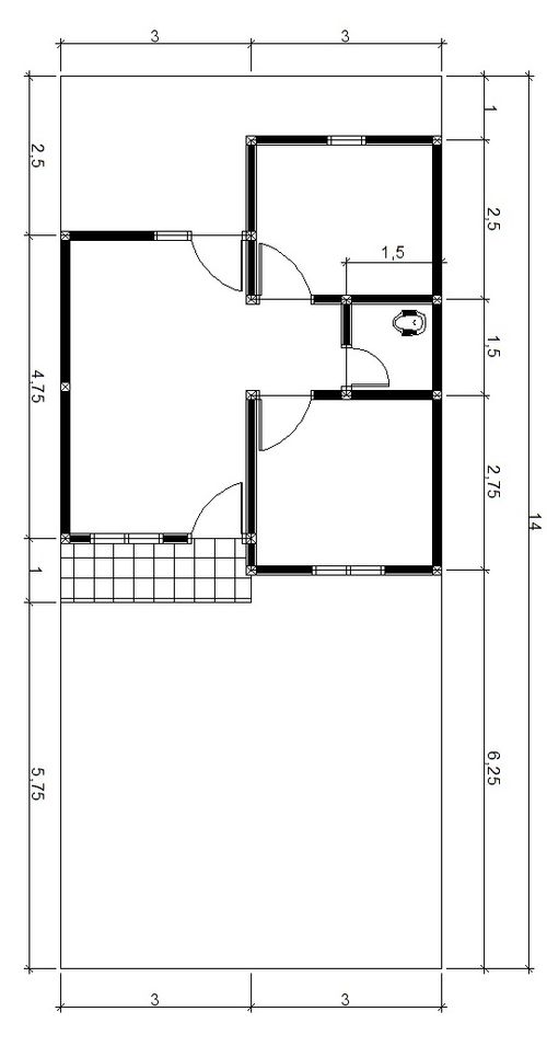
Harga: Rp 150.400.000
Luas Bangunan: 36m 2
Luas Lahan: 84m 2
Kamar Tidur: 2
Kamar Mandi: 1
a. Atap
RANGKA ATAP BAJA RINGAN
PENUTUP ATAP GENTENG METAL
b. Dinding
DINDING PASANGAN BATU BATA MERAH, DIPLESTER, DIACI, FINISHING CAT
c. Lantai & Pondasi
PASANGAN KERAMIK 30X30 ATAU SETARA & PASANGAN BATU BELAH LAJUR


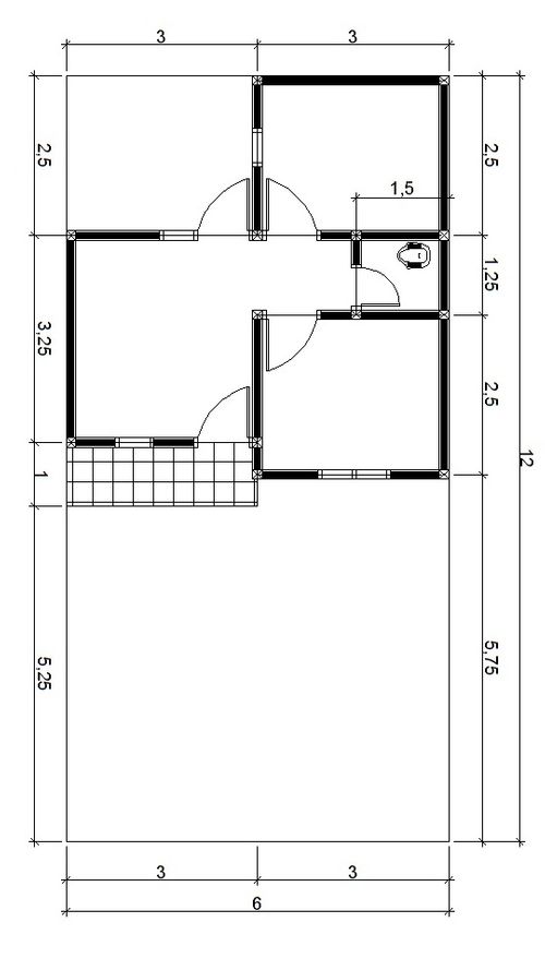
Harga: Rp 137.000.000
Luas Bangunan: 30m 2
Luas Lahan: 72m 2
Kamar Tidur: 2
Kamar Mandi: 1
a. Atap
RANGKA ATAP BAJA RINGAN
PENUTUP ATAP GENTENG METAL
b. Dinding
DINDING PASANGAN BATU BATA MERAH, DIPLESTER, DIACI, FINISHING CAT
c. Lantai & Pondasi
LANTAI PASANGAN KERAMIK 30X30 ATAU SETARA & PONDASI PASANGAN BATU BELAH LAJUR