ID Lokasi : PTI1320022025T001
JAWA TENGAH, KAB PATI, Gembong, Kedungbulus
PT MARIS HANS TEKNOLOGI
PERKUMPULAN ASOSIASI PENGEMBANG PERUMAHAN DAN PERMUKIMAN SELURUH INDONESIA
(APERSI)
Subsidi : 185 Unit
Terjual Subsidi : 40 Unit
Komersil : 0 Unit
Terjual Komersil : 0 Unit
Lihat Siteplan Digital




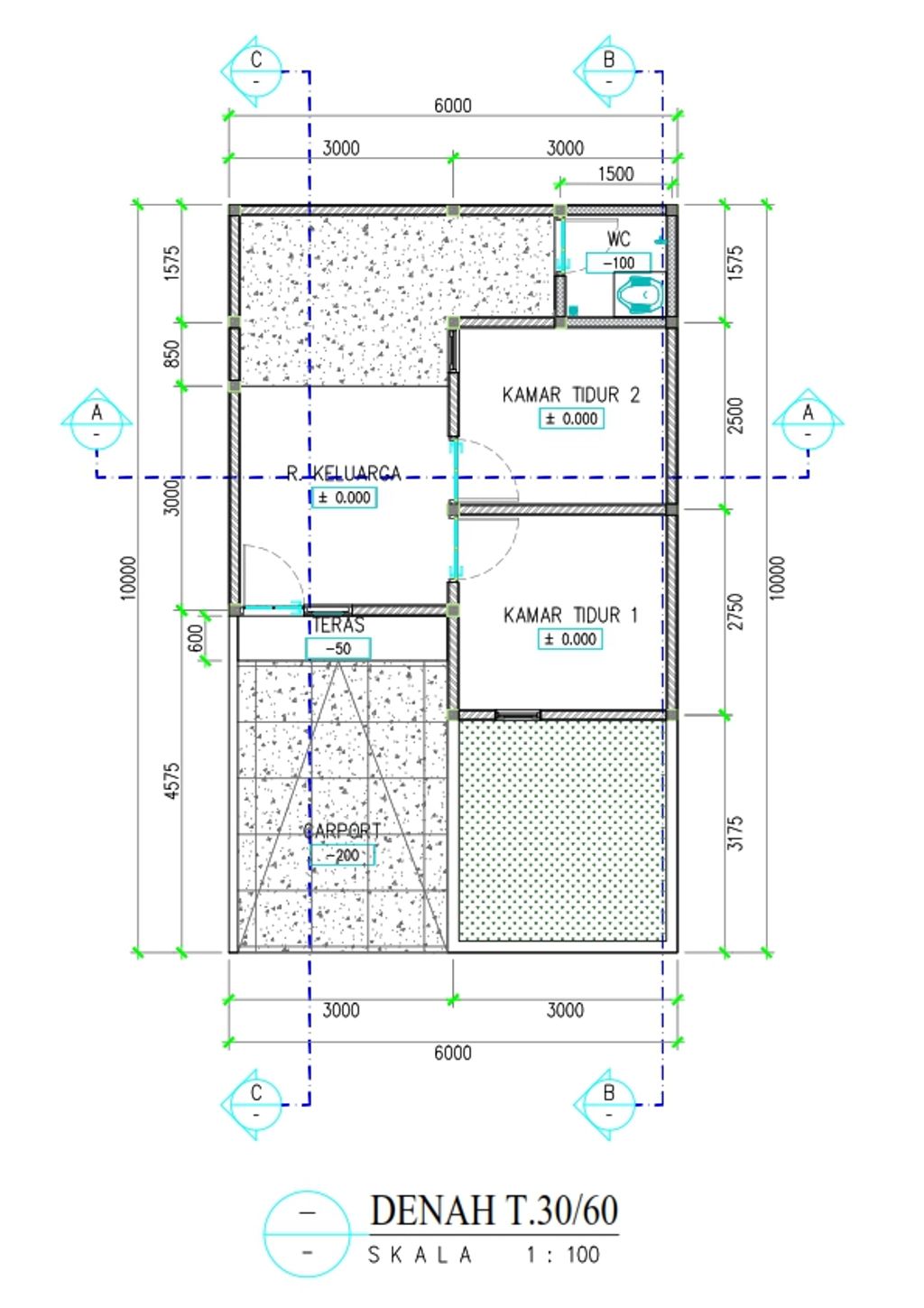
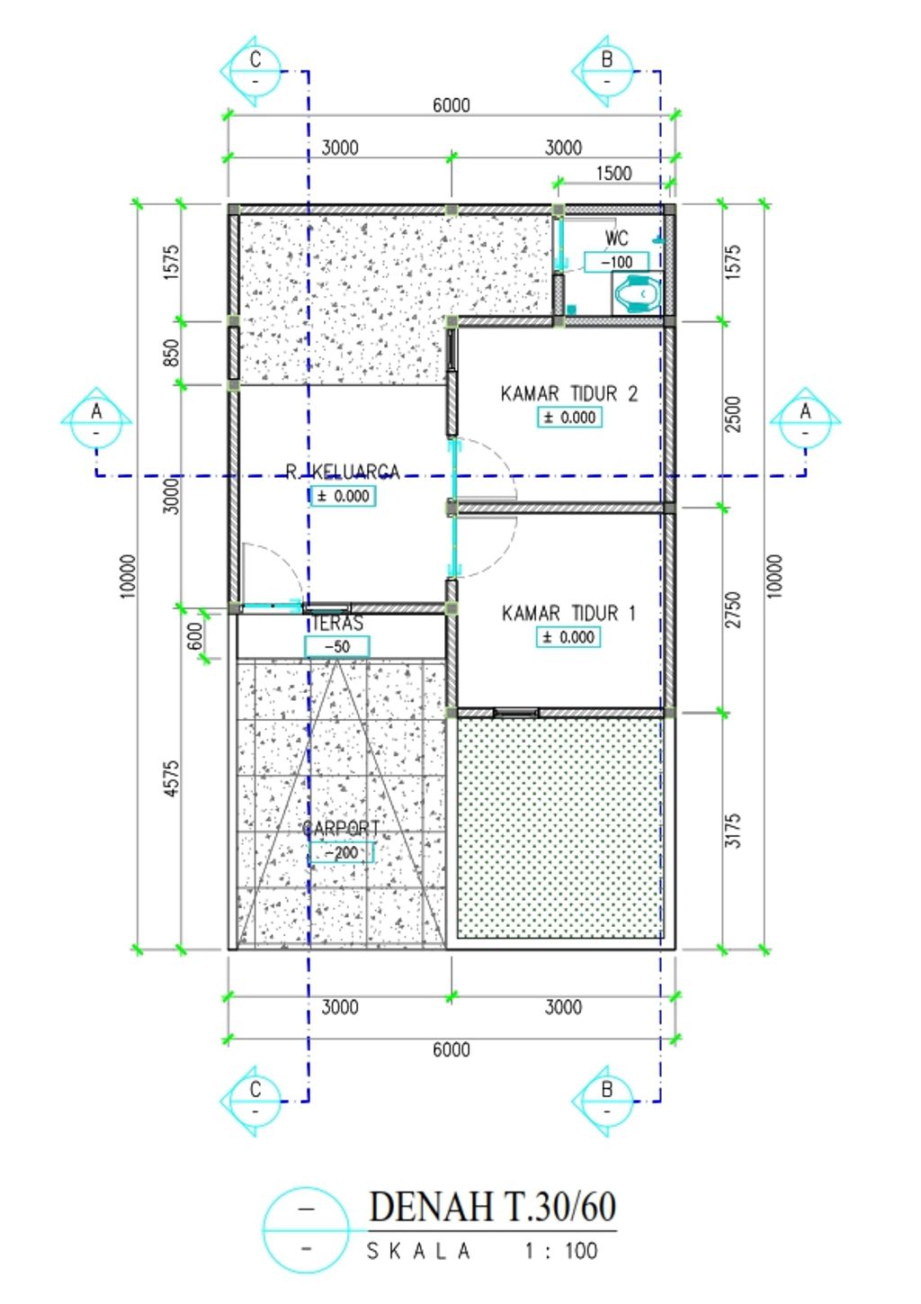
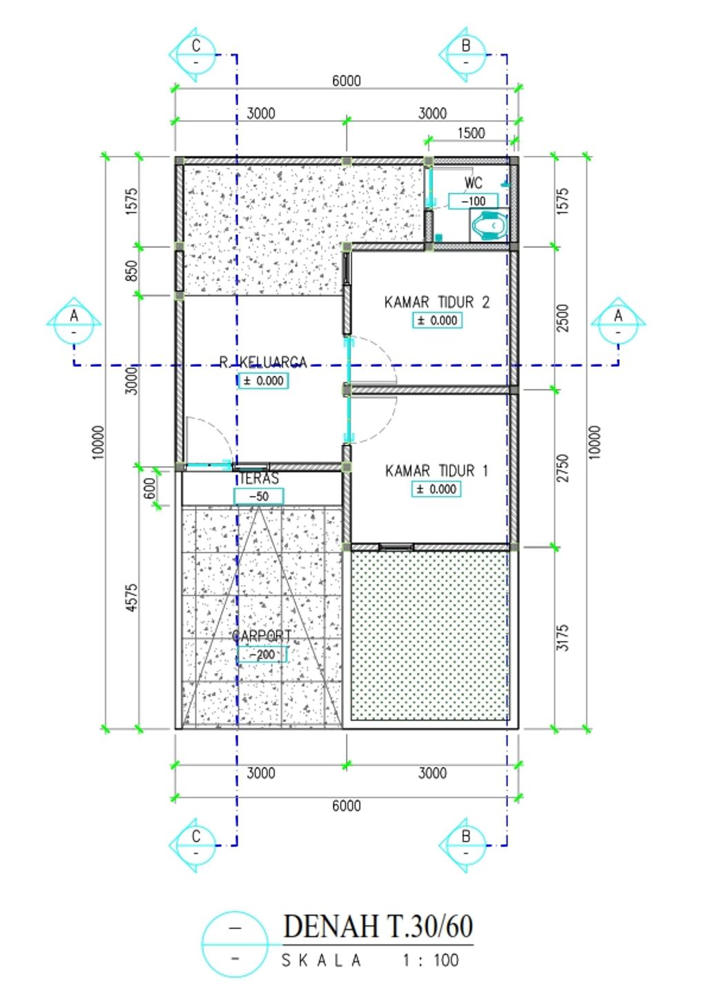
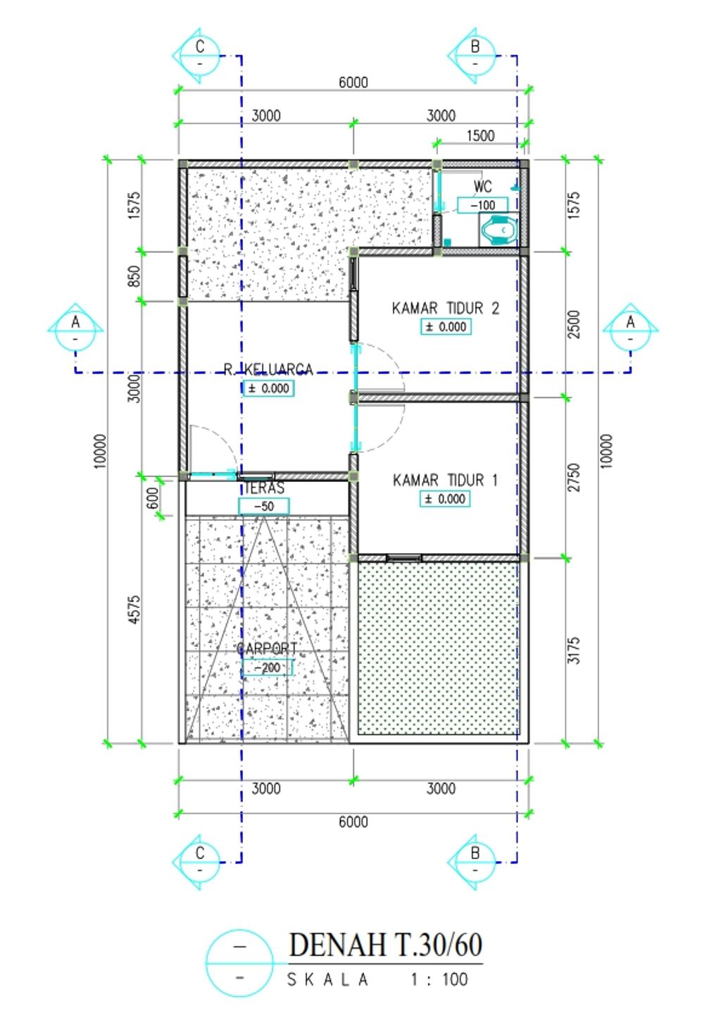
Harga: Rp 166.000.000
Luas Bangunan: 30m 2
Luas Lahan: 60m 2
Kamar Tidur: 2
Kamar Mandi: 1
a. Atap
Penutup Atap Galvalum Pasir, Rangka Baja Ringan.
b. Dinding
Bata Merah, Plester Aci.
c. Lantai & Pondasi
Keramik 40 x 40 & Batu Kali


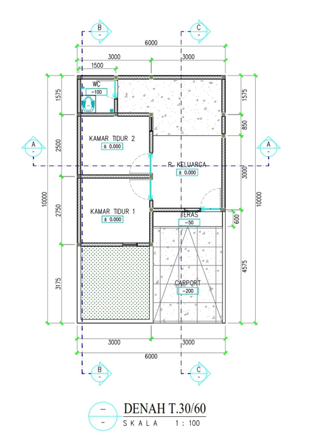
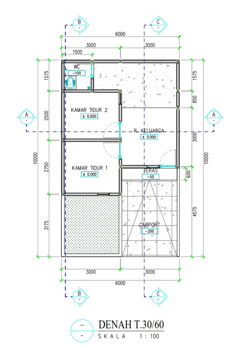
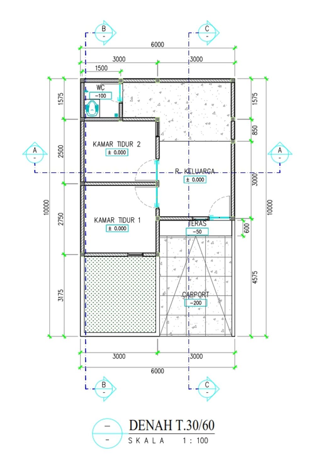
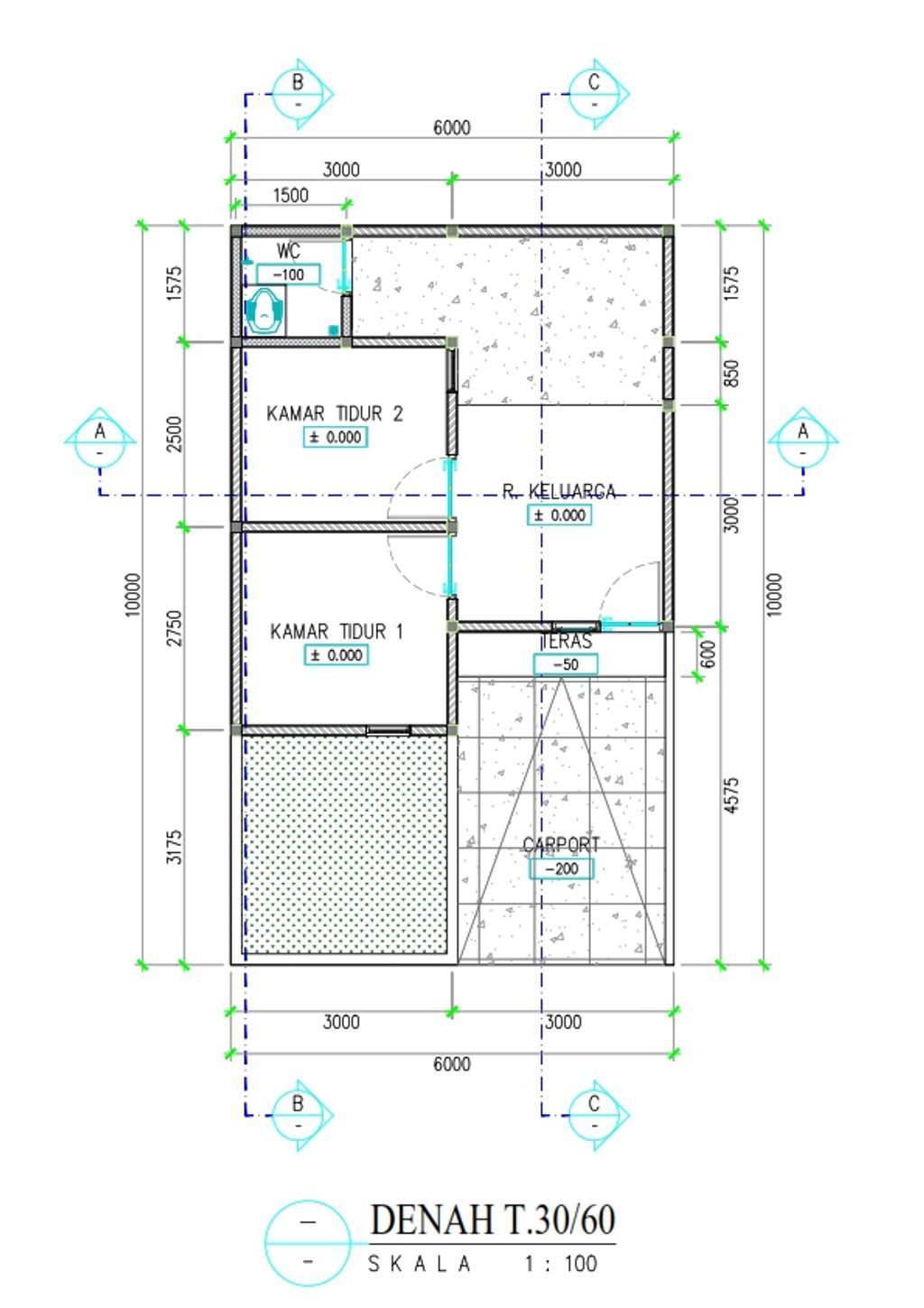
Harga: Rp 166.000.000
Luas Bangunan: 30m 2
Luas Lahan: 60m 2
Kamar Tidur: 2
Kamar Mandi: 1
a. Atap
Penutup Atap Galvalum Pasir, Rangka Baja Ringan.
b. Dinding
Bata Merah, Plester Aci
c. Lantai & Pondasi
Keramik 40 X 40 & Batu Kali


Harga: Rp 166.000.000
Luas Bangunan: 30m 2
Luas Lahan: 60m 2
Kamar Tidur: 2
Kamar Mandi: 1
a. Atap
Penutup Atap Galvalum Pasir, Rangka Baja Ringan.
b. Dinding
Bata Merah, Plester Aci
c. Lantai & Pondasi
Keramik 40 X 40
& Batu Kali


Harga: Rp 166.000.000
Luas Bangunan: 30m 2
Luas Lahan: 60m 2
Kamar Tidur: 2
Kamar Mandi: 1
a. Atap
Penutup Atap Galvalum Pasir, Rangka Baja Ringan.
b. Dinding
Bata Merah, Plester Aci
c. Lantai & Pondasi
Keramik 40 X 40
& Batu Kali


Harga: Rp 166.000.000
Luas Bangunan: 30m 2
Luas Lahan: 65m 2
Kamar Tidur: 2
Kamar Mandi: 1
a. Atap
Penutup Atap Galvalum Pasir, Rangka Baja Ringan
b. Dinding
Bata Merah, Plester Aci
c. Lantai & Pondasi
Keramik 40 X 40
& Batu Kali


Harga: Rp 166.000.000
Luas Bangunan: 30m 2
Luas Lahan: 67m 2
Kamar Tidur: 2
Kamar Mandi: 1
a. Atap
Penutup Atap Galvalum Pasir, Rangka Baja Ringan
b. Dinding
Bata Merah, Plester Aci
c. Lantai & Pondasi
Keramik 40 X 40
& Batu Kali


Harga: Rp 166.000.000
Luas Bangunan: 30m 2
Luas Lahan: 67m 2
Kamar Tidur: 2
Kamar Mandi: 1
a. Atap
Penutup Atap Galvalum Pasir, Rangka Baja Ringan
b. Dinding
Bata Merah, Plester Aci
c. Lantai & Pondasi
Keramik 40 X 40
& Batu Kali


Harga: Rp 166.000.000
Luas Bangunan: 30m 2
Luas Lahan: 62m 2
Kamar Tidur: 2
Kamar Mandi: 1
a. Atap
Penutup Atap Galvalum Pasir, Rangka Baja Ringan
b. Dinding
Bata Merah, Plester Aci
c. Lantai & Pondasi
Keramik 40 X 40
& Batu Kali


Harga: Rp 166.000.000
Luas Bangunan: 30m 2
Luas Lahan: 62m 2
Kamar Tidur: 2
Kamar Mandi: 1
a. Atap
Penutup Atap Galvalum Pasir, Rangka Baja Ringan
b. Dinding
Bata Merah, Plester Aci
c. Lantai & Pondasi
Keramik 40 X 40
& Batu Kali


Harga: Rp 166.000.000
Luas Bangunan: 30m 2
Luas Lahan: 64m 2
Kamar Tidur: 2
Kamar Mandi: 1
a. Atap
Penutup Atap Galvalum Pasir, Rangka Baja Ringan
b. Dinding
Bata Merah, Plester Aci
c. Lantai & Pondasi
Keramik 40 X 40
& Batu Kali


Harga: Rp 166.000.000
Luas Bangunan: 30m 2
Luas Lahan: 64m 2
Kamar Tidur: 2
Kamar Mandi: 1
a. Atap
Penutup Atap Galvalum Pasir, Rangka Baja Ringan
b. Dinding
Bata Merah, Plester Aci
c. Lantai & Pondasi
Keramik 40 X 40
& Batu Kali


Harga: Rp 166.000.000
Luas Bangunan: 30m 2
Luas Lahan: 65m 2
Kamar Tidur: 2
Kamar Mandi: 1
a. Atap
Penutup Atap Galvalum Pasir, Rangka Baja Ringan
b. Dinding
Bata Merah, Plester Aci
c. Lantai & Pondasi
Keramik 40 X 40
& Batu Kali


Harga: Rp 166.000.000
Luas Bangunan: 30m 2
Luas Lahan: 70m 2
Kamar Tidur: 2
Kamar Mandi: 1
a. Atap
Penutup Atap Galvalum Pasir, Rangka Baja Ringan
b. Dinding
Bata Merah, Plester Aci
c. Lantai & Pondasi
Keramik 40 X 40
& Batu Kali


Harga: Rp 166.000.000
Luas Bangunan: 30m 2
Luas Lahan: 70m 2
Kamar Tidur: 2
Kamar Mandi: 1
a. Atap
Penutup Atap Galvalum Pasir, Rangka Baja Ringan
b. Dinding
Bata Merah, Plester Aci
c. Lantai & Pondasi
Keramik 40 X 40
& Batu Kali


Harga: Rp 166.000.000
Luas Bangunan: 30m 2
Luas Lahan: 71m 2
Kamar Tidur: 2
Kamar Mandi: 1
a. Atap
Penutup Atap Galvalum Pasir, Rangka Baja Ringan
b. Dinding
Bata Merah, Plester Aci
c. Lantai & Pondasi
Keramik 40 X 40
& Batu Kali


Harga: Rp 166.000.000
Luas Bangunan: 30m 2
Luas Lahan: 70m 2
Kamar Tidur: 2
Kamar Mandi: 1
a. Atap
Penutup Atap Galvalum Pasir, Rangka Baja Ringan
b. Dinding
Bata Merah, Plester Aci
c. Lantai & Pondasi
Keramik 40 X 40
& Batu Kali


Harga: Rp 166.000.000
Luas Bangunan: 30m 2
Luas Lahan: 74m 2
Kamar Tidur: 2
Kamar Mandi: 1
a. Atap
Penutup Atap Galvalum Pasir, Rangka Baja Ringan
b. Dinding
Bata Merah, Plester Aci
c. Lantai & Pondasi
Keramik 40 X 40
& Batu Kali


Harga: Rp 166.000.000
Luas Bangunan: 30m 2
Luas Lahan: 74m 2
Kamar Tidur: 2
Kamar Mandi: 1
a. Atap
Penutup Atap Galvalum Pasir, Rangka Baja Ringan
b. Dinding
Bata Merah, Plester Aci
c. Lantai & Pondasi
Keramik 40 X 40
& Batu Kali


Harga: Rp 166.000.000
Luas Bangunan: 30m 2
Luas Lahan: 71m 2
Kamar Tidur: 2
Kamar Mandi: 1
a. Atap
Penutup Atap Galvalum Pasir, Rangka Baja Ringan
b. Dinding
Bata Merah, Plester Aci
c. Lantai & Pondasi
Keramik 40 X 40
& Batu Kali


Harga: Rp 166.000.000
Luas Bangunan: 30m 2
Luas Lahan: 74m 2
Kamar Tidur: 2
Kamar Mandi: 1
a. Atap
Penutup Atap Galvalum Pasir, Rangka Baja Ringan
b. Dinding
Bata Merah, Plester Aci
c. Lantai & Pondasi
Keramik 40 X 40
& Batu Kali


Harga: Rp 166.000.000
Luas Bangunan: 30m 2
Luas Lahan: 74m 2
Kamar Tidur: 2
Kamar Mandi: 1
a. Atap
Penutup Atap Galvalum Pasir, Rangka Baja Ringan
b. Dinding
Bata Merah, Plester Aci
c. Lantai & Pondasi
Keramik 40 X 40
& Batu Kali


Harga: Rp 166.000.000
Luas Bangunan: 30m 2
Luas Lahan: 80m 2
Kamar Tidur: 2
Kamar Mandi: 1
a. Atap
Penutup Atap Galvalum Pasir, Rangka Baja Ringan
b. Dinding
Bata Merah, Plester Aci
c. Lantai & Pondasi
Keramik 40 X 40
& Batu Kali


Harga: Rp 166.000.000
Luas Bangunan: 30m 2
Luas Lahan: 75m 2
Kamar Tidur: 2
Kamar Mandi: 1
a. Atap
Penutup Atap Galvalum Pasir, Rangka Baja Ringan
b. Dinding
Bata Merah, Plester Aci
c. Lantai & Pondasi
Keramik 40 X 40
& Batu Kali


Harga: Rp 166.000.000
Luas Bangunan: 30m 2
Luas Lahan: 78m 2
Kamar Tidur: 2
Kamar Mandi: 1
a. Atap
Penutup Atap Galvalum Pasir, Rangka Baja Ringan
b. Dinding
Bata Merah, Plester Aci
c. Lantai & Pondasi
Keramik 40 X 40
& Batu Kali


Harga: Rp 166.000.000
Luas Bangunan: 30m 2
Luas Lahan: 80m 2
Kamar Tidur: 2
Kamar Mandi: 1
a. Atap
Penutup Atap Galvalum Pasir, Rangka Baja Ringan
b. Dinding
Bata Merah, Plester Aci
c. Lantai & Pondasi
Keramik 40 X 40
& Batu Kali


Harga: Rp 166.000.000
Luas Bangunan: 30m 2
Luas Lahan: 76m 2
Kamar Tidur: 2
Kamar Mandi: 1
a. Atap
Penutup Atap Galvalum Pasir, Rangka Baja Ringan
b. Dinding
Bata Merah, Plester Aci
c. Lantai & Pondasi
Keramik 40 X 40
& Batu Kali


Harga: Rp 166.000.000
Luas Bangunan: 30m 2
Luas Lahan: 83m 2
Kamar Tidur: 2
Kamar Mandi: 1
a. Atap
Penutup Atap Galvalum Pasir, Rangka Baja Ringan
b. Dinding
Bata Merah, Plester Aci
c. Lantai & Pondasi
Keramik 40 X 40
& Batu Kali


Harga: Rp 166.000.000
Luas Bangunan: 30m 2
Luas Lahan: 80m 2
Kamar Tidur: 2
Kamar Mandi: 1
a. Atap
Penutup Atap Galvalum Pasir, Rangka Baja Ringan
b. Dinding
Bata Merah, Plester Aci
c. Lantai & Pondasi
Keramik 40 X 40
& Batu Kali


Harga: Rp 166.000.000
Luas Bangunan: 30m 2
Luas Lahan: 83m 2
Kamar Tidur: 2
Kamar Mandi: 1
a. Atap
Penutup Atap Galvalum Pasir, Rangka Baja Ringan
b. Dinding
Bata Merah, Plester Aci
c. Lantai & Pondasi
Keramik 40 X 40
& Batu Kali


Harga: Rp 166.000.000
Luas Bangunan: 30m 2
Luas Lahan: 84m 2
Kamar Tidur: 2
Kamar Mandi: 1
a. Atap
Penutup Atap Galvalum Pasir, Rangka Baja Ringan
b. Dinding
Bata Merah, Plester Aci
c. Lantai & Pondasi
Keramik 40 X 40
& Batu Kali


Harga: Rp 166.000.000
Luas Bangunan: 30m 2
Luas Lahan: 89m 2
Kamar Tidur: 2
Kamar Mandi: 1
a. Atap
Penutup Atap Galvalum Pasir, Rangka Baja Ringan
b. Dinding
Bata Merah, Plester Aci
c. Lantai & Pondasi
Keramik 40 X 40
& Batu Kali


Harga: Rp 166.000.000
Luas Bangunan: 30m 2
Luas Lahan: 80m 2
Kamar Tidur: 2
Kamar Mandi: 1
a. Atap
Penutup Atap Galvalum Pasir, Rangka Baja Ringan
b. Dinding
Bata Merah, Plester Aci
c. Lantai & Pondasi
Keramik 40 X 40
& Batu Kali


Harga: Rp 166.000.000
Luas Bangunan: 30m 2
Luas Lahan: 83m 2
Kamar Tidur: 2
Kamar Mandi: 1
a. Atap
Penutup Atap Galvalum Pasir, Rangka Baja Ringan
b. Dinding
Bata Merah, Plester Aci
c. Lantai & Pondasi
Keramik 40 X 40
& Batu Kali


Harga: Rp 1.660.000.000
Luas Bangunan: 30m 2
Luas Lahan: 84m 2
Kamar Tidur: 2
Kamar Mandi: 1
a. Atap
Penutup Atap Galvalum Pasir, Rangka Baja Ringan
b. Dinding
Bata Merah, Plester Aci
c. Lantai & Pondasi
Keramik 40 X 40
& Batu Kali


Harga: Rp 166.000.000
Luas Bangunan: 30m 2
Luas Lahan: 83m 2
Kamar Tidur: 2
Kamar Mandi: 1
a. Atap
Penutup Atap Galvalum Pasir, Rangka Baja Ringan
b. Dinding
Bata Merah, Plester Aci
c. Lantai & Pondasi
Keramik 40 X 40
& Batu Kali


Harga: Rp 1.660.000.000
Luas Bangunan: 30m 2
Luas Lahan: 89m 2
Kamar Tidur: 2
Kamar Mandi: 1
a. Atap
Penutup Atap Galvalum Pasir, Rangka Baja Ringan
b. Dinding
Bata Merah, Plester Aci
c. Lantai & Pondasi
Keramik 40 X 40
& Batu Kali


Harga: Rp 166.000.000
Luas Bangunan: 30m 2
Luas Lahan: 76m 2
Kamar Tidur: 2
Kamar Mandi: 1
a. Atap
Penutup Atap Galvalum Pasir, Rangka Baja Ringan
b. Dinding
Bata Merah, Plester Aci
c. Lantai & Pondasi
Keramik 40 X 40
& Batu Kali


Harga: Rp 166.000.000
Luas Bangunan: 30m 2
Luas Lahan: 70m 2
Kamar Tidur: 2
Kamar Mandi: 1
a. Atap
Penutup Atap Galvalum Pasir, Rangka Baja Ringan
b. Dinding
Bata Merah, Plester Aci
c. Lantai & Pondasi
Keramik 40 X 40
& Batu Kali


Harga: Rp 166.000.000
Luas Bangunan: 30m 2
Luas Lahan: 75m 2
Kamar Tidur: 2
Kamar Mandi: 1
a. Atap
Penutup Atap Galvalum Pasir, Rangka Baja Ringan
b. Dinding
Bata Merah, Plester Aci
c. Lantai & Pondasi
Keramik 40 X 40
& Batu Kali


Harga: Rp 166.000.000
Luas Bangunan: 30m 2
Luas Lahan: 78m 2
Kamar Tidur: 2
Kamar Mandi: 1
a. Atap
Penutup Atap Galvalum Pasir, Rangka Baja Ringan
b. Dinding
Bata Merah, Plester Aci
c. Lantai & Pondasi
Keramik 40 X 40
& Batu Kali


Harga: Rp 166.000.000
Luas Bangunan: 30m 2
Luas Lahan: 90m 2
Kamar Tidur: 2
Kamar Mandi: 1
a. Atap
Penutup Atap Galvalum Pasir, Rangka Baja Ringan
b. Dinding
Bata Merah, Plester Aci
c. Lantai & Pondasi
Keramik 40 X 40
& Batu Kali


Harga: Rp 166.000.000
Luas Bangunan: 30m 2
Luas Lahan: 90m 2
Kamar Tidur: 2
Kamar Mandi: 1
a. Atap
Penutup Atap Galvalum Pasir, Rangka Baja Ringan
b. Dinding
Bata Merah, Plester Aci
c. Lantai & Pondasi
Keramik 40 X 40
& Batu Kali


Harga: Rp 166.000.000
Luas Bangunan: 30m 2
Luas Lahan: 90m 2
Kamar Tidur: 2
Kamar Mandi: 1
a. Atap
Penutup Atap Galvalum Pasir, Rangka Baja Ringan
b. Dinding
Bata Merah, Plester Aci
c. Lantai & Pondasi
Keramik 40 X 40
& Batu Kali


Harga: Rp 166.000.000
Luas Bangunan: 30m 2
Luas Lahan: 90m 2
Kamar Tidur: 2
Kamar Mandi: 1
a. Atap
Penutup Atap Galvalum Pasir, Rangka Baja Ringan
b. Dinding
Bata Merah, Plester Aci
c. Lantai & Pondasi
Keramik 40 X 40
& Batu Kali


Harga: Rp 166.000.000
Luas Bangunan: 30m 2
Luas Lahan: 91m 2
Kamar Tidur: 2
Kamar Mandi: 1
a. Atap
Penutup Atap Galvalum Pasir, Rangka Baja Ringan
b. Dinding
Bata Merah, Plester Aci
c. Lantai & Pondasi
Keramik 40 X 40
& Batu Kali


Harga: Rp 166.000.000
Luas Bangunan: 30m 2
Luas Lahan: 91m 2
Kamar Tidur: 2
Kamar Mandi: 1
a. Atap
Penutup Atap Galvalum Pasir, Rangka Baja Ringan
b. Dinding
Bata Merah, Plester Aci
c. Lantai & Pondasi
Keramik 40 X 40
& Batu Kali


Harga: Rp 166.000.000
Luas Bangunan: 30m 2
Luas Lahan: 94m 2
Kamar Tidur: 2
Kamar Mandi: 1
a. Atap
Penutup Atap Galvalum Pasir, Rangka Baja Ringan
b. Dinding
Bata Merah, Plester Aci
c. Lantai & Pondasi
Keramik 40 X 40
& Batu Kali


Harga: Rp 166.000.000
Luas Bangunan: 30m 2
Luas Lahan: 94m 2
Kamar Tidur: 2
Kamar Mandi: 1
a. Atap
Penutup Atap Galvalum Pasir, Rangka Baja Ringan
b. Dinding
Bata Merah, Plester Aci
c. Lantai & Pondasi
Keramik 40 X 40
& Batu Kali


Harga: Rp 166.000.000
Luas Bangunan: 30m 2
Luas Lahan: 96m 2
Kamar Tidur: 2
Kamar Mandi: 1
a. Atap
Penutup Atap Galvalum Pasir, Rangka Baja Ringan
b. Dinding
Bata Merah, Plester Aci
c. Lantai & Pondasi
Keramik 40 X 40
& Batu Kali


Harga: Rp 166.000.000
Luas Bangunan: 30m 2
Luas Lahan: 96m 2
Kamar Tidur: 2
Kamar Mandi: 1
a. Atap
Penutup Atap Galvalum Pasir, Rangka Baja Ringan
b. Dinding
Bata Merah, Plester Aci
c. Lantai & Pondasi
Keramik 40 X 40
& Batu Kali


Harga: Rp 166.000.000
Luas Bangunan: 30m 2
Luas Lahan: 97m 2
Kamar Tidur: 2
Kamar Mandi: 1
a. Atap
Penutup Atap Galvalum Pasir, Rangka Baja Ringan
b. Dinding
Bata Merah, Plester Aci
c. Lantai & Pondasi
Keramik 40 X 40
& Batu Kali


Harga: Rp 166.000.000
Luas Bangunan: 30m 2
Luas Lahan: 97m 2
Kamar Tidur: 2
Kamar Mandi: 1
a. Atap
Penutup Atap Galvalum Pasir, Rangka Baja Ringan
b. Dinding
Bata Merah, Plester Aci
c. Lantai & Pondasi
Keramik 40 X 40
& Batu Kali


Harga: Rp 166.000.000
Luas Bangunan: 30m 2
Luas Lahan: 71m 2
Kamar Tidur: 2
Kamar Mandi: 1
a. Atap
Penutup Atap Galvalum Pasir, Rangka Baja Ringan.
b. Dinding
Bata Merah, Plester Aci
c. Lantai & Pondasi
Keramik 40 X 40 & Batu Kali


Harga: Rp 166.000.000
Luas Bangunan: 30m 2
Luas Lahan: 71m 2
Kamar Tidur: 2
Kamar Mandi: 1
a. Atap
Penutup Atap Galvalum Pasir, Rangka Baja Ringan.
b. Dinding
Bata Merah, Plester Aci
c. Lantai & Pondasi
Keramik 40 X 40 & Batu Kali


Harga: Rp 166.000.000
Luas Bangunan: 30m 2
Luas Lahan: 68m 2
Kamar Tidur: 2
Kamar Mandi: 1
a. Atap
Penutup Atap Galvalum Pasir, Rangka Baja Ringan.
b. Dinding
Bata Merah, Plester Aci
c. Lantai & Pondasi
Keramik 40 X 40 & Batu Kali


Harga: Rp 166.000.000
Luas Bangunan: 30m 2
Luas Lahan: 68m 2
Kamar Tidur: 2
Kamar Mandi: 1
a. Atap
Penutup Atap Galvalum Pasir, Rangka Baja Ringan.
b. Dinding
Bata Merah, Plester Aci
c. Lantai & Pondasi
Keramik 40 X 40 & Batu Kali