ID Lokasi : RAP0210072022T001
SUMATERA UTARA, KAB LABUHANBATU, Rantau Selatan, Pardamean
PT SURYA ISTANA RAYA
PERKUMPULAN ASOSIASI PENGEMBANG PERUMAHAN DAN PERMUKIMAN SELURUH INDONESIA
(APERSI)
Subsidi : 8 Unit
Terjual Subsidi : 68 Unit
Komersil : 0 Unit
Terjual Komersil : 3 Unit
Lihat Siteplan DigitalJl Tuntung no. 04 A SUMATERA UTARA, KAB LABUHANBATU, Rantau Selatan, Pardamean
Telp : 082361415525
Email : suryaistanaraya19@gmail.com





Harga: Rp 150.000.000
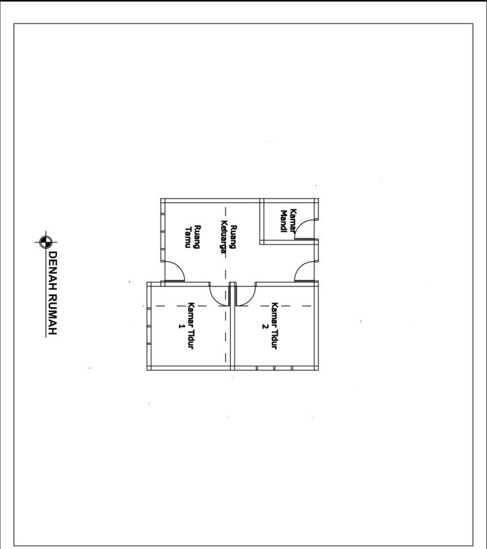
Luas Bangunan: 36m 2
Luas Lahan: 84m 2
Kamar Tidur: 2
Kamar Mandi: 1
a. Atap
multirup
b. Dinding
batu bata
c. Lantai & Pondasi
kramik & corslop


Harga: Rp 190.000.000
Luas Bangunan: 48m 2
Luas Lahan: 96m 2
Kamar Tidur: 2
Kamar Mandi: 1
a. Atap
Mltirup
b. Dinding
Batu Bata
c. Lantai & Pondasi
Kramik & Corslop
Jl Tuntung no. 04 A SUMATERA UTARA, KAB LABUHANBATU, Rantau Selatan, Pardamean
Telp : 082361415525
Email : suryaistanaraya19@gmail.com