ID Lokasi : RGT0410332020T002
RIAU, KAB INDRAGIRI HULU, Pasir Penyu, Tanah Merah
CEMPAKA DUA MANDIRI
ASOSIASI PENGEMBANG RUMAH SEDERHANA SEHAT NASIONAL
(APERNAS)
Subsidi : 47 Unit
Terjual Subsidi : 64 Unit
Komersil : 0 Unit
Terjual Komersil : 2 Unit
Lihat Siteplan Digital



Harga: Rp 140
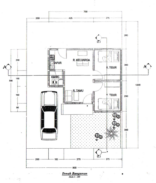
Luas Bangunan: 36m 2
Luas Lahan: 108m 2
Kamar Tidur: 2
Kamar Mandi: 1
a. Atap
multi roof
b. Dinding
batu bata finising plasteran+acian+ cat
c. Lantai & Pondasi
kramik & rolak+sloop beton bertulang


Harga: Rp 1.660.000
Luas Bangunan: 36m 2
Luas Lahan: 108m 2
Kamar Tidur: 2
Kamar Mandi: 1
a. Atap
MULTI ROOF
b. Dinding
BATU BATA FINISHING PLASTERAN + ACI + CAT
c. Lantai & Pondasi
KERAMIIK & ROLAX + SLOFF BETON BERTULANG


Harga: Rp 166.000.000
Luas Bangunan: 36m 2
Luas Lahan: 108m 2
Kamar Tidur: 2
Kamar Mandi: 1
a. Atap
MULTI ROOF
b. Dinding
BATU BATA + PLESTERAN + ACI + CAT
c. Lantai & Pondasi
KERAMIK & ROLAX + SLOFF BETON BERTULANG