ID Lokasi : RKB1420172024T002
BANTEN, KAB LEBAK, Rangkasbitung, Rangkasbitung Timur
PT MAKMUR JAYATAMA SEJATI
ASOSIASI PENGEMBANG RUMAH SEDERHANA SEHAT NASIONAL
(APERNAS)
Subsidi : 69 Unit
Terjual Subsidi : 5 Unit
Komersil : 0 Unit
Terjual Komersil : 0 Unit
Lihat Siteplan Digital



Harga: Rp 166.000.000
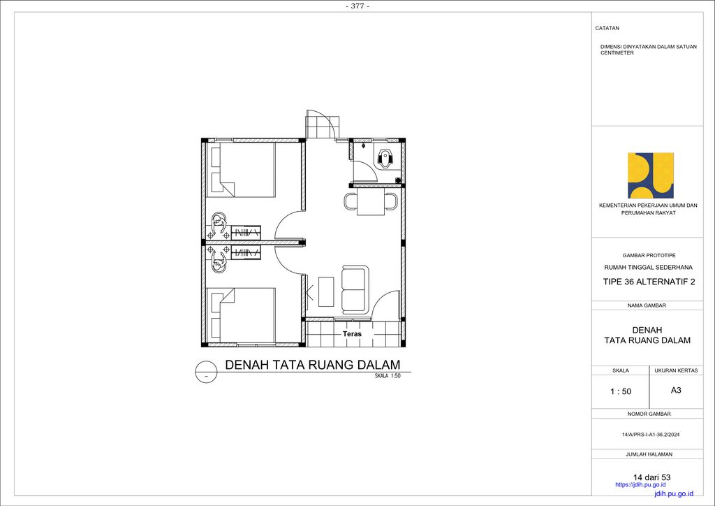
Luas Bangunan: 36m 2
Luas Lahan: 72m 2
Kamar Tidur: 2
Kamar Mandi: 1
a. Atap
Genteng Metal MULTI ROOF 2x5 x 0.40mm
b. Dinding
Bata
c. Lantai & Pondasi
Keramik 20 x 20 & Batu Kali


Harga: Rp 166.000.000
Luas Bangunan: 36m 2
Luas Lahan: 72m 2
Kamar Tidur: 1
Kamar Mandi: 1
a. Atap
Baja Ringan + Multiroof
b. Dinding
Bata Ringan, Cat
c. Lantai & Pondasi
Keramik & Batu Gunung