ID Lokasi : SAG1120022025T001
KALIMANTAN BARAT, KAB SANGGAU, Tayan Hilir, Kawat
PT RIDHA BINTANG MANDIRI
REAL ESTATE INDONESIA
(REI)
Subsidi : 5 Unit
Terjual Subsidi : 5 Unit
Komersil : 5 Unit
Terjual Komersil : 0 Unit
Lihat Siteplan Digital




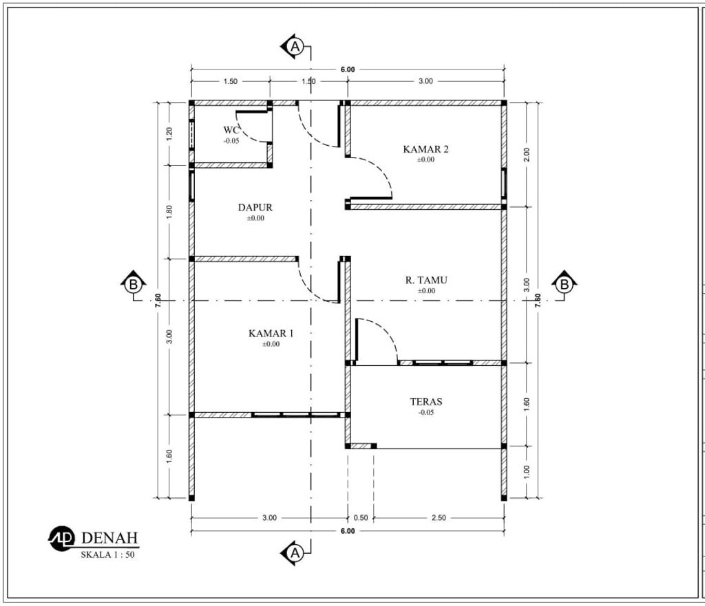
Harga: Rp 182.000.000
Luas Bangunan: 36m 2
Luas Lahan: 135m 2
Kamar Tidur: 2
Kamar Mandi: 1
a. Atap
Rangka Kayu Atap Metal
b. Dinding
Batako Full Plaster
c. Lantai & Pondasi
Full Keramik 40x40 & Cor Beton Bertulang


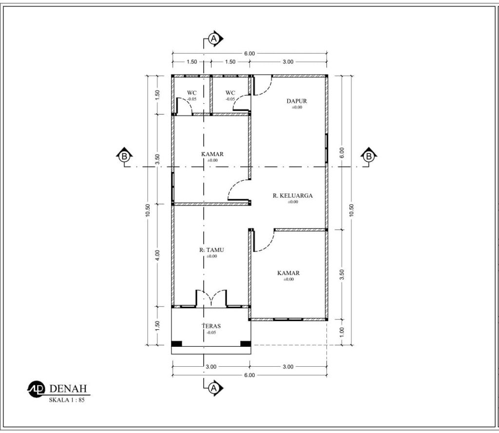
Harga: Rp 360.000.000
Luas Bangunan: 60m 2
Luas Lahan: 163m 2
Kamar Tidur: 2
Kamar Mandi: 2
a. Atap
Rangka baja ringan atap metal
b. Dinding
Full batako Full Plaster
c. Lantai & Pondasi
Full Granit 60x60 & Cor beton betulang