ID Lokasi : SBG1410022021T001
SUMATERA UTARA, KAB TAPANULI TENGAH, Tukka, Bona Lumban
SOKEVIN KARYA GEMILANG
REAL ESTATE INDONESIA
(REI)
Subsidi : 3 Unit
Terjual Subsidi : 10 Unit
Komersil : 0 Unit
Terjual Komersil : 0 Unit
Lihat Siteplan DigitalJl. Sisingamangaraja Kompleks Sibuluan Bussiness Centre Blok A No. 1 no. 1 SUMATERA UTARA, KAB TAPANULI TENGAH, Pandan, Sibuluan Raya
Telp : 082167582993
Email : pt.sokevinkaryagemilang@gmail.com
Website : 0
Jl. Sisingamangaraja Kompleks Sibuluan Business Centre Blok A no. 1 no. 1 SUMATERA UTARA, KAB TAPANULI TENGAH, Pandan, Sibuluan Raya
Telp : 082167582993
Email : pt.sokevinkaryagemilang@gmail.com
Website : 0





Harga: Rp 150.500.000
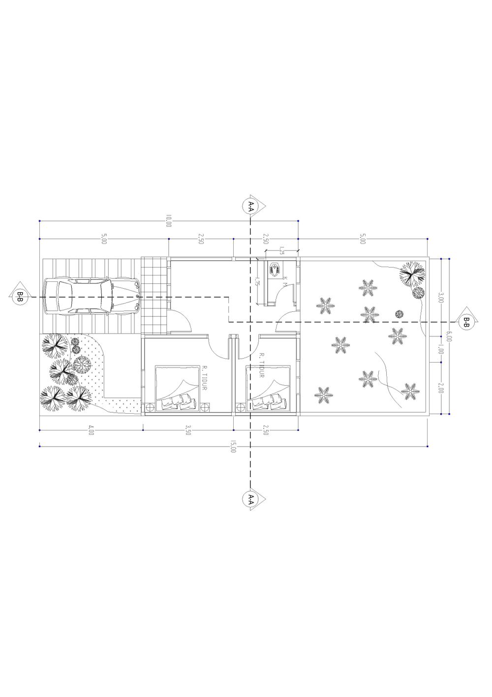
Luas Bangunan: 36m 2
Luas Lahan: 84m 2
Kamar Tidur: 2
Kamar Mandi: 1
a. Atap
RANGKA BAJA RINGAN PENUTUP ATAP SENG METAL
b. Dinding
DINDING BATAKO DI PLASTER LUAR DALAM DI CAT
c. Lantai & Pondasi
KERAMIK 40x40 & FONDASI BATU KALI SLOOF BETON BERTULANG
Jl. Sisingamangaraja Kompleks Sibuluan Bussiness Centre Blok A No. 1 no. 1 SUMATERA UTARA, KAB TAPANULI TENGAH, Pandan, Sibuluan Raya
Telp : 082167582993
Email : pt.sokevinkaryagemilang@gmail.com
Website : 0
Jl. Sisingamangaraja Kompleks Sibuluan Business Centre Blok A no. 1 no. 1 SUMATERA UTARA, KAB TAPANULI TENGAH, Pandan, Sibuluan Raya
Telp : 082167582993
Email : pt.sokevinkaryagemilang@gmail.com
Website : 0