Balekambang Tol Nirwana

ID Lokasi : SBM1220092020T002
JAWA BARAT, KAB SUKABUMI, Nagrak, Balekambang
ESA ARMADA JAYA
Himpunan Pengembang Permukiman dan Perumahan Rakyat (HIMPERRA)


Status Rumah

Subsidi : 0 Unit

Terjual Subsidi : 0 Unit

Komersil : 0 Unit

Terjual Komersil : 0 Unit

Lihat Siteplan Digital

Peta Lokasi



Kantor Pemasaran

Jl. Alternatif Nagrak no. 5 JAWA BARAT, KAB SUKABUMI, Nagrak, Balekambang

Telp : 082321699991

Email : pranajaya2602@mail.com

Website :

Foto Lokasi


foto gerbang perumahan Balekambang Tol Nirwana
Foto Gerbang/Jalan Utama
foto contoh rumah perumahan Balekambang Tol Nirwana
Foto Rumah Contoh
foto posisi tengah perumahan Balekambang Tol Nirwana
Foto Posisi Tengah Lokasi

Tipe Rumah


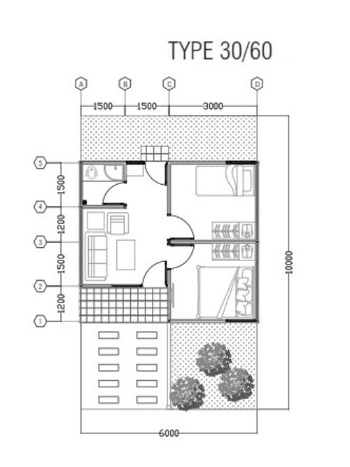
1. Tipe Subsidi (subsidi)
foto tampak rumah tipe Subsidi perumahan Balekambang Tol Nirwana
foto denah rumah tipe Subsidi perumahan Balekambang Tol Nirwana

Harga: Rp 148.000.000

Luas Bangunan: 30m 2

Luas Lahan: 60m 2

Kamar Tidur: 2

Kamar Mandi: 1

Spesifikasi Teknis

a. Atap
Rangka Baja Ringan

b. Dinding
Bata Ringan/Double Dinding

c. Lantai & Pondasi
Keramik 40 x 40. Std Keramik WC 20 x 20 & Batu Kali/Beton


Peta Lokasi


Kantor Pemasaran

Jl. Alternatif Nagrak no. 5 JAWA BARAT, KAB SUKABUMI, Nagrak, Balekambang

Telp : 082321699991

Email : pranajaya2602@mail.com

Website :