ID Lokasi : SBM1720052024T001
JAWA BARAT, KAB SUKABUMI, Cidahu, Tangkil
PT DEWA GUNUNG SEMESTA
PERKUMPULAN ASOSIASI PENGEMBANG PERUMAHAN DAN PERMUKIMAN SELURUH INDONESIA
(APERSI)
Subsidi : 89 Unit
Terjual Subsidi : 13 Unit
Komersil : 0 Unit
Terjual Komersil : 0 Unit
Lihat Siteplan Digital




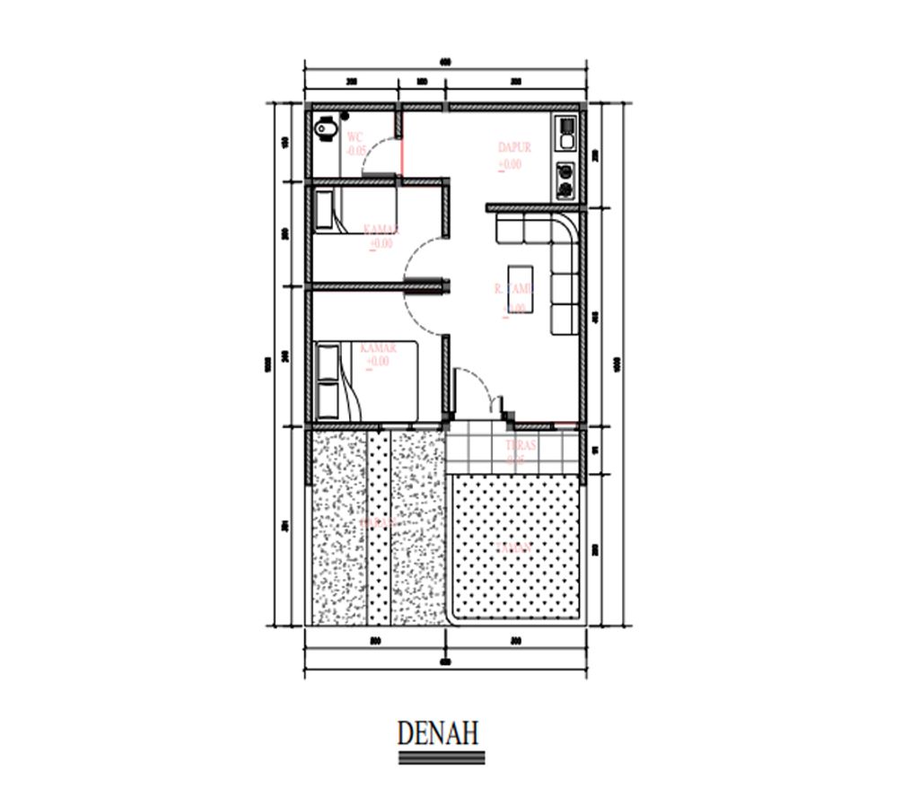
Harga: Rp 166.000.000
Luas Bangunan: 36m 2
Luas Lahan: 60m 2
Kamar Tidur: 2
Kamar Mandi: 1
a. Atap
BAJA RINGAN
b. Dinding
hebel
c. Lantai & Pondasi
ubin keramik & sloof gantung