ID Lokasi : SDA0720242026T001
JAWA TIMUR, KAB SIDOARJO, Candi, Larangan
PT TIARA PERDANA ARCCON
REAL ESTATE INDONESIA
(REI)
Subsidi : 0 Unit
Terjual Subsidi : 0 Unit
Komersil : 28 Unit
Terjual Komersil : 6 Unit
Lihat Siteplan Digital




Harga: Rp 1.455.000.000
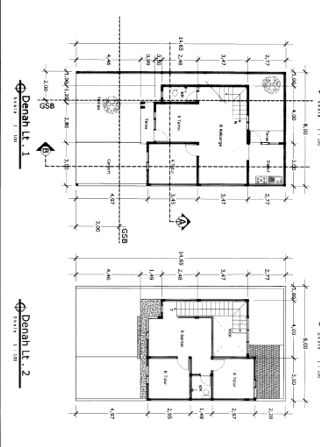
Luas Bangunan: 111m 2
Luas Lahan: 117m 2
Kamar Tidur: 3
Kamar Mandi: 2
a. Atap
Rangka Atap: Rangka Baja Ringan
Penutup Atap: Genteng Flat dicat
Penutup Plafon: Gypsum Board dicat
b. Dinding
Bata ringan diplester dan dicat
c. Lantai & Pondasi
Lantai Utama: Granit Tile 60 x 60 & Setrous + Poor


Harga: Rp 1.185.000.000
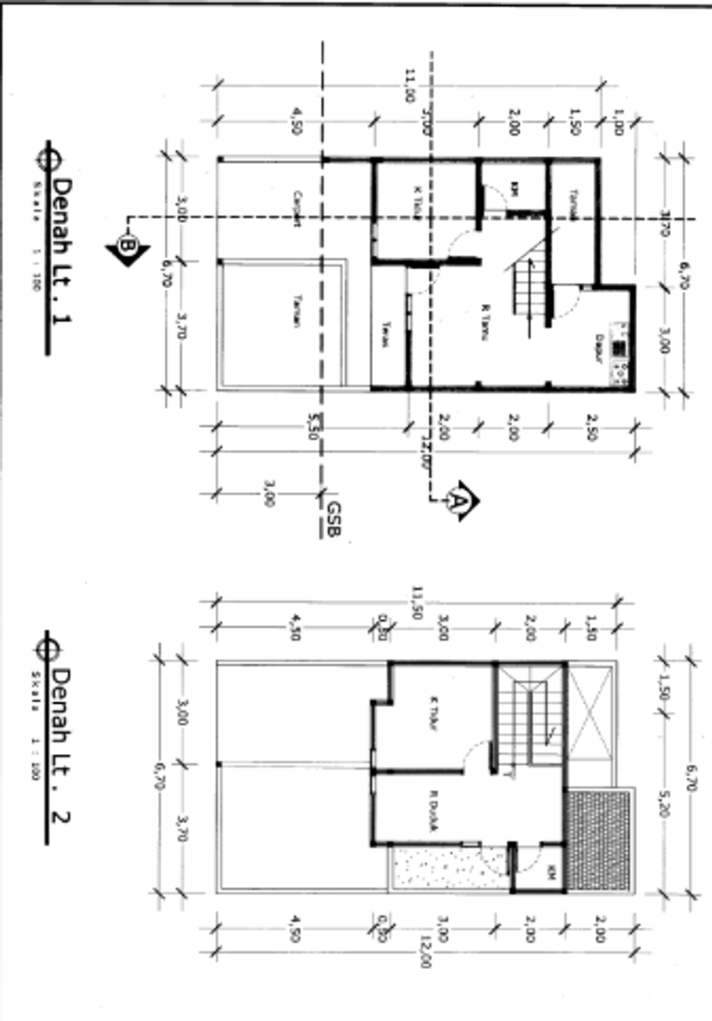
Luas Bangunan: 120m 2
Luas Lahan: 105m 2
Kamar Tidur: 3
Kamar Mandi: 2
a. Atap
Rangka Atap: Rangka Baja Ringan
Penutup Atap: Genteng Flat dicat
Penutup Plafon: Gypsum Board dicat
b. Dinding
Bata ringan diplester dan dicat
c. Lantai & Pondasi
Lantai Utama: Granit Tile 60 x 60 & Setrous + Poor


Harga: Rp 2.045.000.000
Luas Bangunan: 170m 2
Luas Lahan: 171m 2
Kamar Tidur: 5
Kamar Mandi: 3
a. Atap
Rangka Atap: Rangka Baja Ringan
Penutup Atap: Genteng Flat dicat
Penutup Plafon: Gypsum Board dicat
b. Dinding
Bata ringan diplester dan dicat
c. Lantai & Pondasi
Lantai Utama: Granit Tile 60 x 60 & Setrous + Poor


Harga: Rp 1.367.000.000
Luas Bangunan: 120m 2
Luas Lahan: 102m 2
Kamar Tidur: 4
Kamar Mandi: 2
a. Atap
Rangka Atap: Rangka Baja Ringan
Penutup Atap: Genteng Flat dicat
Penutup Plafon: Gypsum Board dicat
b. Dinding
Bata ringan diplester dan dicat
c. Lantai & Pondasi
Lantai Utama: Granit Tile 60 x 60 & Setrous + Poor


Harga: Rp 1.367.000.000
Luas Bangunan: 120m 2
Luas Lahan: 102m 2
Kamar Tidur: 4
Kamar Mandi: 2
a. Atap
Rangka Atap: Rangka Baja Ringan
Penutup Atap: Genteng Flat dicat
Penutup Plafon: Gypsum Board dicat
b. Dinding
Bata ringan diplester dan dicat
c. Lantai & Pondasi
Lantai Utama: Granit Tile 60 x 60 & Setrous + Poor


Harga: Rp 980.000.000
Luas Bangunan: 80m 2
Luas Lahan: 81m 2
Kamar Tidur: 3
Kamar Mandi: 2
a. Atap
Rangka Atap: Rangka Baja Ringan
Penutup Atap: Genteng Flat dicat
Penutup Plafon: Gypsum Board dicat
b. Dinding
Bata ringan diplester dan dicat
c. Lantai & Pondasi
Lantai Utama: Granit Tile 60 x 60 & Setrous + Poor


Harga: Rp 1.050.000.000
Luas Bangunan: 78m 2
Luas Lahan: 92m 2
Kamar Tidur: 3
Kamar Mandi: 2
a. Atap
Rangka Atap: Rangka Baja Ringan
Penutup Atap: Genteng Flat dicat
Penutup Plafon: Gypsum Board dicat
b. Dinding
Bata ringan diplester dan dicat
c. Lantai & Pondasi
Lantai Utama: Granit Tile 60 x 60 & Setrous + Poor


Harga: Rp 985.000.000
Luas Bangunan: 70m 2
Luas Lahan: 90m 2
Kamar Tidur: 2
Kamar Mandi: 2
a. Atap
Rangka Atap: Rangka Baja Ringan
Penutup Atap: Genteng Flat dicat
Penutup Plafon: Gypsum Board dicat
b. Dinding
Bata ringan diplester dan dicat
c. Lantai & Pondasi
Lantai Utama: Granit Tile 60 x 60 & Setrous + Poor


Harga: Rp 800.000.000
Luas Bangunan: 85m 2
Luas Lahan: 72m 2
Kamar Tidur: 2
Kamar Mandi: 2
a. Atap
Rangka Atap: Rangka Baja Ringan
Penutup Atap: Genteng Flat dicat
Penutup Plafon: Gypsum Board dicat
b. Dinding
Bata ringan diplester dan dicat
c. Lantai & Pondasi
Lantai Utama: Granit Tile 60 x 60 & Setrous + Poor


Harga: Rp 605.000.000
Luas Bangunan: 51m 2
Luas Lahan: 72m 2
Kamar Tidur: 2
Kamar Mandi: 1
a. Atap
Rangka Atap: Rangka Baja Ringan
Penutup Atap: Genteng Flat dicat
Penutup Plafon: Gypsum Board dicat
b. Dinding
Bata ringan diplester dan dicat
c. Lantai & Pondasi
Lantai Utama: Granit Tile 60 x 60 & Setrous + Poor


Harga: Rp 1.203.000.000
Luas Bangunan: 108m 2
Luas Lahan: 115m 2
Kamar Tidur: 4
Kamar Mandi: 2
a. Atap
Rangka Atap: Rangka Baja Ringan
Penutup Atap: Genteng Flat dicat
Penutup Plafon: Gypsum Board dicat
b. Dinding
Bata ringan diplester dan dicat
c. Lantai & Pondasi
Lantai Utama: Granit Tile 60 x 60 & Setrous + Poor


Harga: Rp 1.301.940.429
Luas Bangunan: 97m 2
Luas Lahan: 117m 2
Kamar Tidur: 3
Kamar Mandi: 2
a. Atap
Rangka Atap: Rangka Baja Ringan
Penutup Atap: Genteng Flat dicat
Penutup Plafon: Gypsum Board dicat
b. Dinding
Bata ringan diplester dan dicat
c. Lantai & Pondasi
Lantai Utama: Granit Tile 60 x 60 & Setrous + Poor


Harga: Rp 2.082.740.284
Luas Bangunan: 190m 2
Luas Lahan: 178m 2
Kamar Tidur: 5
Kamar Mandi: 3
a. Atap
Rangka Atap: Rangka Baja Ringan
Penutup Atap: Genteng Flat dicat
Penutup Plafon: Gypsum Board dicat
b. Dinding
Bata ringan diplester dan dicat
c. Lantai & Pondasi
Lantai Utama: Granit Tile 60 x 60 & Setrous + Poor


Harga: Rp 740.000.000
Luas Bangunan: 80m 2
Luas Lahan: 78m 2
Kamar Tidur: 2
Kamar Mandi: 2
a. Atap
Rangka Atap: Rangka Baja Ringan
Penutup Atap: Genteng Flat dicat
Penutup Plafon: Gypsum Board dicat
b. Dinding
Bata ringan diplester dan dicat
c. Lantai & Pondasi
Lantai Utama: Granit Tile 60 x 60 & Setrous + Poor


Harga: Rp 1.250.000.000
Luas Bangunan: 136m 2
Luas Lahan: 121m 2
Kamar Tidur: 4
Kamar Mandi: 2
a. Atap
Rangka Atap: Rangka Baja Ringan
Penutup Atap: Genteng Flat dicat
Penutup Plafon: Gypsum Board dicat
b. Dinding
Bata ringan diplester dan dicat
c. Lantai & Pondasi
Lantai Utama: Granit Tile 60 x 60 & Setrous + Poor