ID Lokasi : SDA1020232025T001
JAWA TIMUR, KAB SIDOARJO, Wonoayu, Candinegoro
PT PERSADA GRAHA UTAMA
PERKUMPULAN ASOSIASI PENGEMBANG PERUMAHAN DAN PERMUKIMAN SELURUH INDONESIA
(APERSI)
Subsidi : 0 Unit
Terjual Subsidi : 0 Unit
Komersil : 2 Unit
Terjual Komersil : 36 Unit
Lihat Siteplan Digital




Harga: Rp 300.000.000
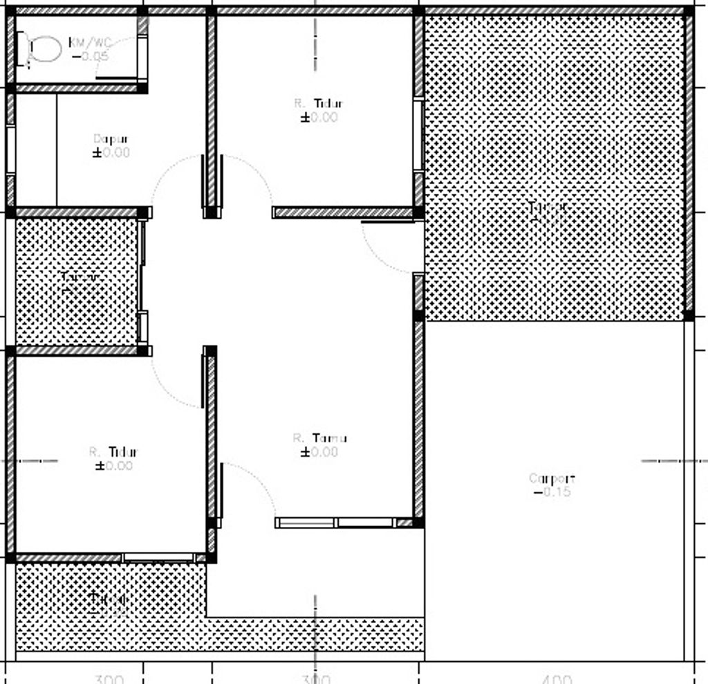
Luas Bangunan: 34m 2
Luas Lahan: 45m 2
Kamar Tidur: 0
Kamar Mandi: 1
a. Atap
Genteng beton dengan rangka atap baja ringan/ galvalum
b. Dinding
Bata ringan diplester finishing cat
c. Lantai & Pondasi
Granit tile 60 x 60 & Pasangan batu kali


Harga: Rp 325.000.000
Luas Bangunan: 42m 2
Luas Lahan: 95m 2
Kamar Tidur: 2
Kamar Mandi: 1
a. Atap
Genteng beton dengan rangka atap baja ringan/ galvalum
b. Dinding
Bata ringan diplester finishing cat
c. Lantai & Pondasi
granit tile 60 x 60 & Pasangan batu kali


Harga: Rp 275.000.000
Luas Bangunan: 38m 2
Luas Lahan: 76m 2
Kamar Tidur: 2
Kamar Mandi: 1
a. Atap
Genteng Beton dengan rangka baja ringan/ galvalum
b. Dinding
Bata ringan diplester finishing cat
c. Lantai & Pondasi
Granit tile ukuran 60 x 60 & Pasangan Batu kali