ID Lokasi : SDA1720152025T001
JAWA TIMUR, KAB SIDOARJO, Sedati, Segorotambak
PT RAMA JAYA LESTARI
PERKUMPULAN ASOSIASI PENGEMBANG PERUMAHAN DAN PERMUKIMAN SELURUH INDONESIA
(APERSI)
Subsidi : 0 Unit
Terjual Subsidi : 0 Unit
Komersil : 283 Unit
Terjual Komersil : 61 Unit
Lihat Siteplan Digital




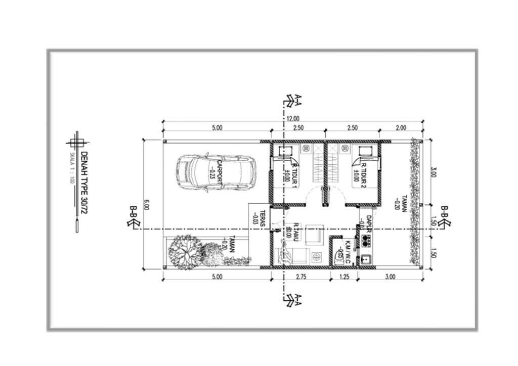
Harga: Rp 530.000.000
Luas Bangunan: 30m 2
Luas Lahan: 72m 2
Kamar Tidur: 2
Kamar Mandi: 1
a. Atap
Rangka Galvalume dan Genteng beton
b. Dinding
Bata Ringan finishing cat
c. Lantai & Pondasi
Granit 60x60 & stross kedalaman 4M , sepatu 50x50, pondasi batu kumbung , sloff ukuran 15x20


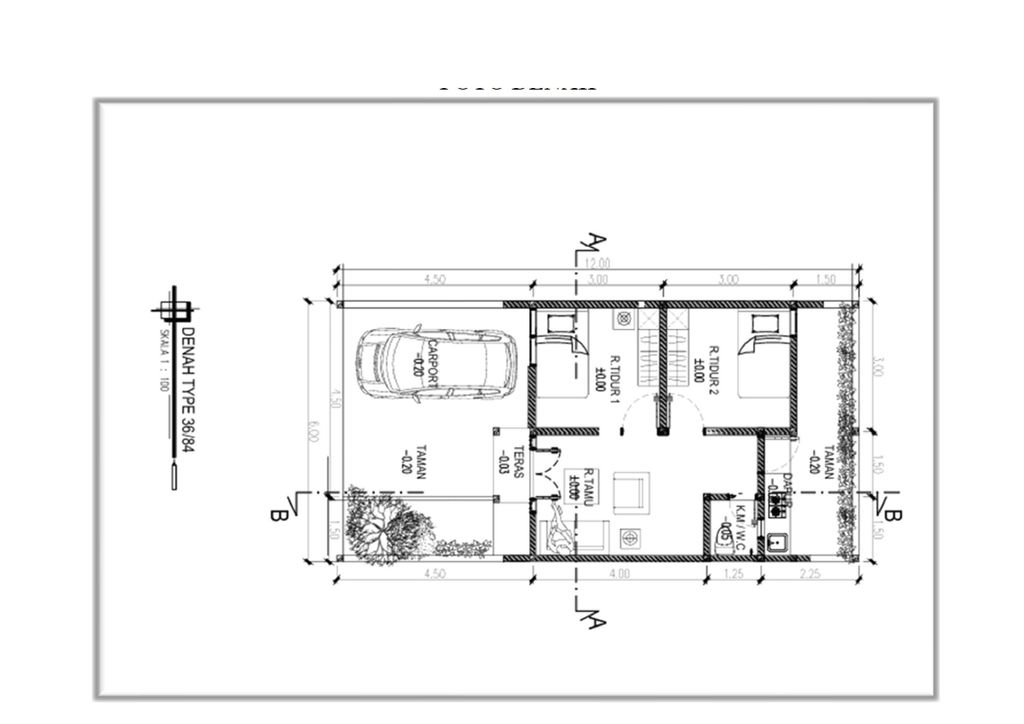
Harga: Rp 570.000.000
Luas Bangunan: 36m 2
Luas Lahan: 72m 2
Kamar Tidur: 2
Kamar Mandi: 1
a. Atap
Rangka Galvalume dan Genteng beton
b. Dinding
Bata Ringan finishing cat
c. Lantai & Pondasi
Granit 60x60 & stross kedalaman 4M , sepatu 50x50, pondasi batu kumbung , sloff ukuran 15x20


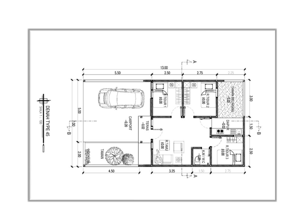
Harga: Rp 761.000.000
Luas Bangunan: 45m 2
Luas Lahan: 91m 2
Kamar Tidur: 3
Kamar Mandi: 1
a. Atap
Rangka Galvalum Genteng Beton
b. Dinding
Bata Ringan Finishing Cat
c. Lantai & Pondasi
Granit 60x60 & stross kedalaman 4M , sepatu 50x50, pondasi batu kumbung , sloff ukuran 15x20


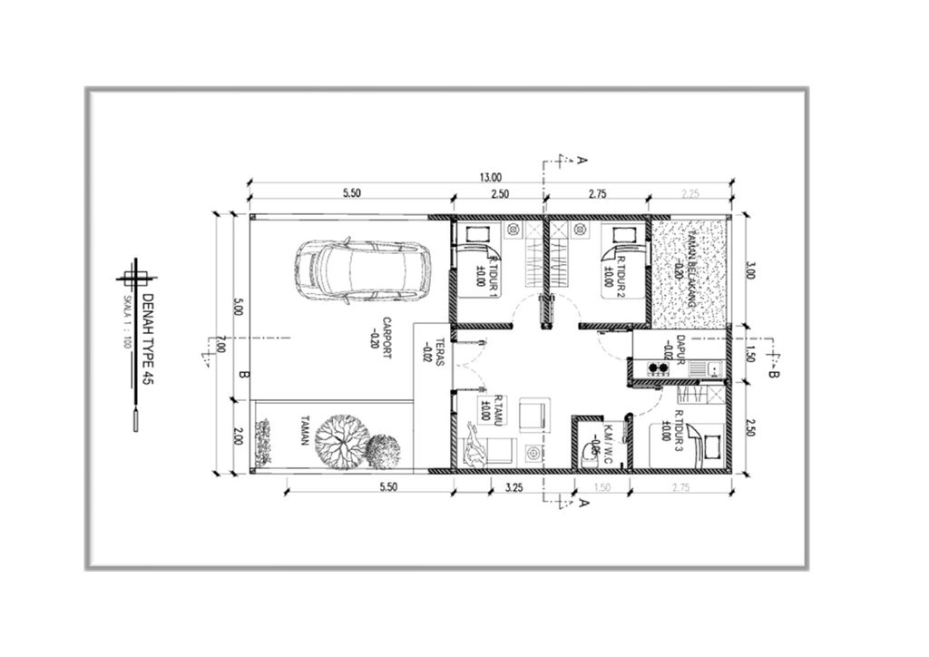
Harga: Rp 751.000.000
Luas Bangunan: 45m 2
Luas Lahan: 91m 2
Kamar Tidur: 3
Kamar Mandi: 1
a. Atap
Rangka Galvalum dan Genteng Beton
b. Dinding
Bata Ringan Finishing Cat
c. Lantai & Pondasi
Granit 60x60 & stross kedalaman 4M , sepatu 50x50, pondasi batu kumbung , sloff ukuran 15x20


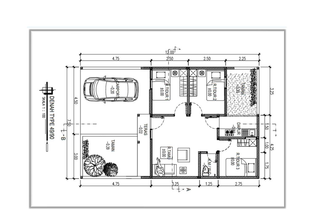
Harga: Rp 764.000.000
Luas Bangunan: 49m 2
Luas Lahan: 90m 2
Kamar Tidur: 3
Kamar Mandi: 1
a. Atap
Rangka Galvalum Genteng Beton
b. Dinding
Bata Ringan Finishing Cat
c. Lantai & Pondasi
Granit 60x60 & stross kedalaman 4M , sepatu 50x50, pondasi batu kumbung , sloff ukuran 15x20