ID Lokasi : SGB1420082022T002
SULAWESI TENGAH, KAB SIGI, Marawola, Baliase
PT KENNATA KARYA ABADI
REAL ESTATE INDONESIA
(REI)
Subsidi : 7 Unit
Terjual Subsidi : 162 Unit
Komersil : 0 Unit
Terjual Komersil : 0 Unit
Lihat Siteplan Digital




Harga: Rp 168.000.000
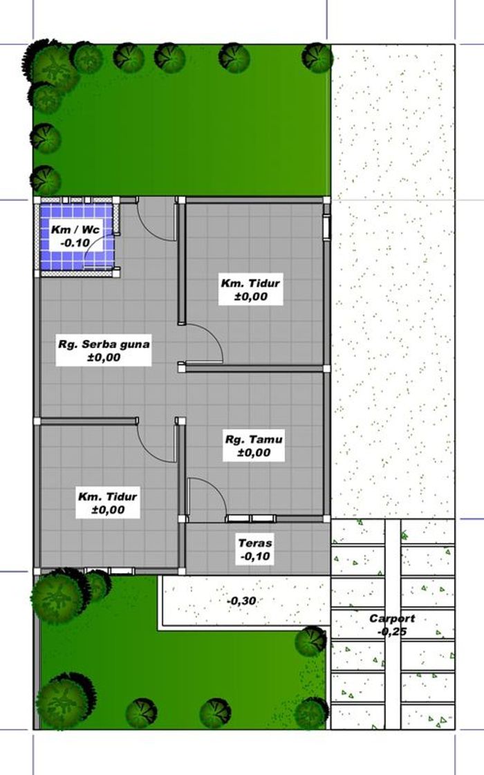
Luas Bangunan: 36m 2
Luas Lahan: 104m 2
Kamar Tidur: 2
Kamar Mandi: 1
a. Atap
Rangka Baja, Seng Spandek Mini
b. Dinding
Batako, Plester, Aci dan Cat
c. Lantai & Pondasi
Tegel 40x40 & Batu Gunung


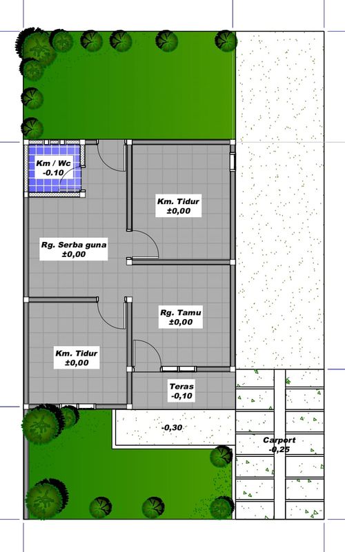
Harga: Rp 156.500.000
Luas Bangunan: 36m 2
Luas Lahan: 104m 2
Kamar Tidur: 2
Kamar Mandi: 1
a. Atap
Rangka Baja, Seng Spandek Mini
b. Dinding
Batako plester aci dan cat
c. Lantai & Pondasi
Tegel 40x40 & Batu Gunung