BUKIT BALIASE INDAH 5 TAHAP 2

ID Lokasi : SGB1420082024T005
SULAWESI TENGAH, KAB SIGI, Marawola, Baliase
KENNATA KARYA ABADI
REAL ESTATE INDONESIA (REI)


Status Rumah

Subsidi : 5 Unit

Terjual Subsidi : 69 Unit

Komersil : 0 Unit

Terjual Komersil : 0 Unit

Lihat Siteplan Digital

Peta Lokasi



Kantor Pemasaran

Perumahan Bukit Baliase Indah Ruko No 01 no. 01 SULAWESI TENGAH, KAB SIGI, Marawola, Baliase

Telp : 081340567895

Email : kennatakaryaabadi@gmail.com

Website :

Foto Lokasi


foto gerbang perumahan BUKIT BALIASE INDAH 5 TAHAP 2
Foto Gerbang/Jalan Utama
foto contoh rumah perumahan BUKIT BALIASE INDAH 5 TAHAP 2
Foto Rumah Contoh
foto posisi tengah perumahan BUKIT BALIASE INDAH 5 TAHAP 2
Foto Posisi Tengah Lokasi

Tipe Rumah


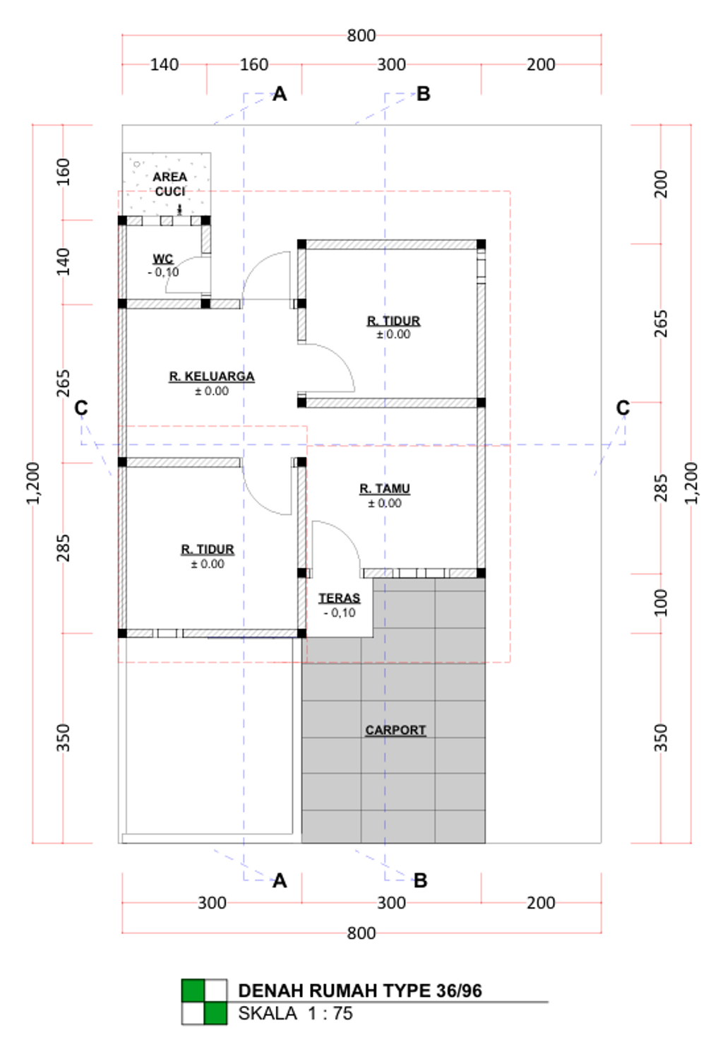
1. Tipe 36/96 (subsidi)
foto tampak rumah tipe 36/96 perumahan BUKIT BALIASE INDAH 5 TAHAP 2
foto denah rumah tipe 36/96 perumahan BUKIT BALIASE INDAH 5 TAHAP 2

Harga: Rp 173.000.000

Luas Bangunan: 36m 2

Luas Lahan: 96m 2

Kamar Tidur: 2

Kamar Mandi: 1

Spesifikasi Teknis

a. Atap
Rangka Baja, Seng, Spandek Mini

b. Dinding
Batako, Plesteran, Aci dan Cat

c. Lantai & Pondasi
Tegel 40x40 & Batu Gunung


Peta Lokasi


Kantor Pemasaran

Perumahan Bukit Baliase Indah Ruko No 01 no. 01 SULAWESI TENGAH, KAB SIGI, Marawola, Baliase

Telp : 081340567895

Email : kennatakaryaabadi@gmail.com

Website :