BERLIANLAND IV

ID Lokasi : SGB1420112023T005
SULAWESI TENGAH, KAB SIGI, Marawola, Tinggede Selatan
BERLIAN TIMUR KHATULISTIWA
REAL ESTATE INDONESIA (REI)


Status Rumah

Subsidi : 1 Unit

Terjual Subsidi : 66 Unit

Komersil : 5 Unit

Terjual Komersil : 0 Unit

Lihat Siteplan Digital

Peta Lokasi



Kantor Pemasaran

PERUMAHAN BERLIANLAND no. B/01 SULAWESI TENGAH, KAB SIGI, Marawola, Tinggede

Telp : 082296548431

Email : BERLIANTIMUR.CORP@GMAIL.COM

Website : WWW.BERLIANLAND.COM

Foto Lokasi


foto gerbang perumahan BERLIANLAND IV
Foto Gerbang/Jalan Utama
foto contoh rumah perumahan BERLIANLAND IV
Foto Rumah Contoh
foto posisi tengah perumahan BERLIANLAND IV
Foto Posisi Tengah Lokasi

Tipe Rumah


1. Tipe 36 (subsidi)
foto tampak rumah tipe 36 perumahan BERLIANLAND IV
foto denah rumah tipe 36 perumahan BERLIANLAND IV

Harga: Rp 168.000.000

Luas Bangunan: 36m 2

Luas Lahan: 112m 2

Kamar Tidur: 2

Kamar Mandi: 1

Spesifikasi Teknis

a. Atap
SOKA

b. Dinding
PLESTER LUAR DALAM

c. Lantai & Pondasi
TEGEKL 40X40 & BATU GUNUNG

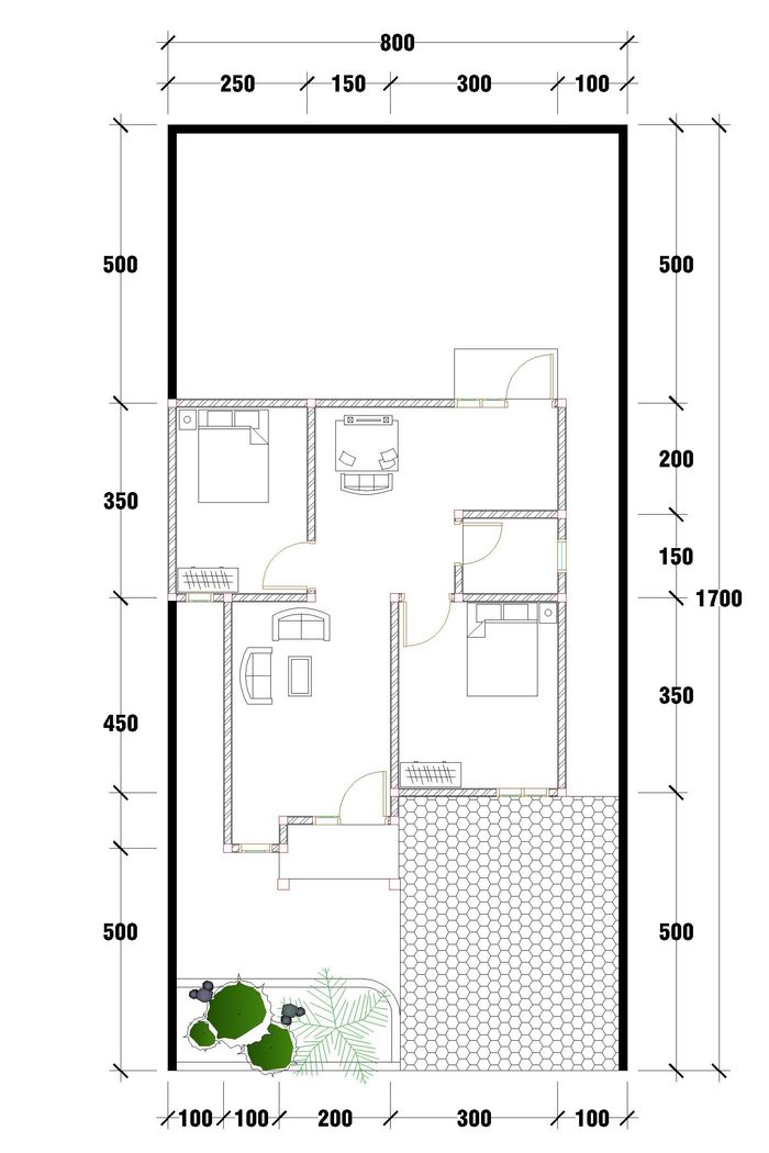
2. Tipe 50 (komersil)
foto tampak rumah tipe 50 perumahan BERLIANLAND IV
foto denah rumah tipe 50 perumahan BERLIANLAND IV

Harga: Rp 320.000.000

Luas Bangunan: 50m 2

Luas Lahan: 178m 2

Kamar Tidur: 2

Kamar Mandi: 1

Spesifikasi Teknis

a. Atap
SOKA JEMPOL

b. Dinding
PLESTER CAT LUAR DALAM

c. Lantai & Pondasi
TEGEL 50X50 & BATU GUNUNG


Peta Lokasi


Kantor Pemasaran

PERUMAHAN BERLIANLAND no. B/01 SULAWESI TENGAH, KAB SIGI, Marawola, Tinggede

Telp : 082296548431

Email : BERLIANTIMUR.CORP@GMAIL.COM

Website : WWW.BERLIANLAND.COM