ID Lokasi : SGL0110062025T001
KEPULAUAN BANGKA BELITUNG, KAB BANGKA, Sungailiat, Parit Padang
PT GIBSI HMS SEJAHTERA PERSADA
REAL ESTATE INDONESIA
(REI)
Subsidi : 36 Unit
Terjual Subsidi : 13 Unit
Komersil : 0 Unit
Terjual Komersil : 0 Unit
Lihat Siteplan Digital

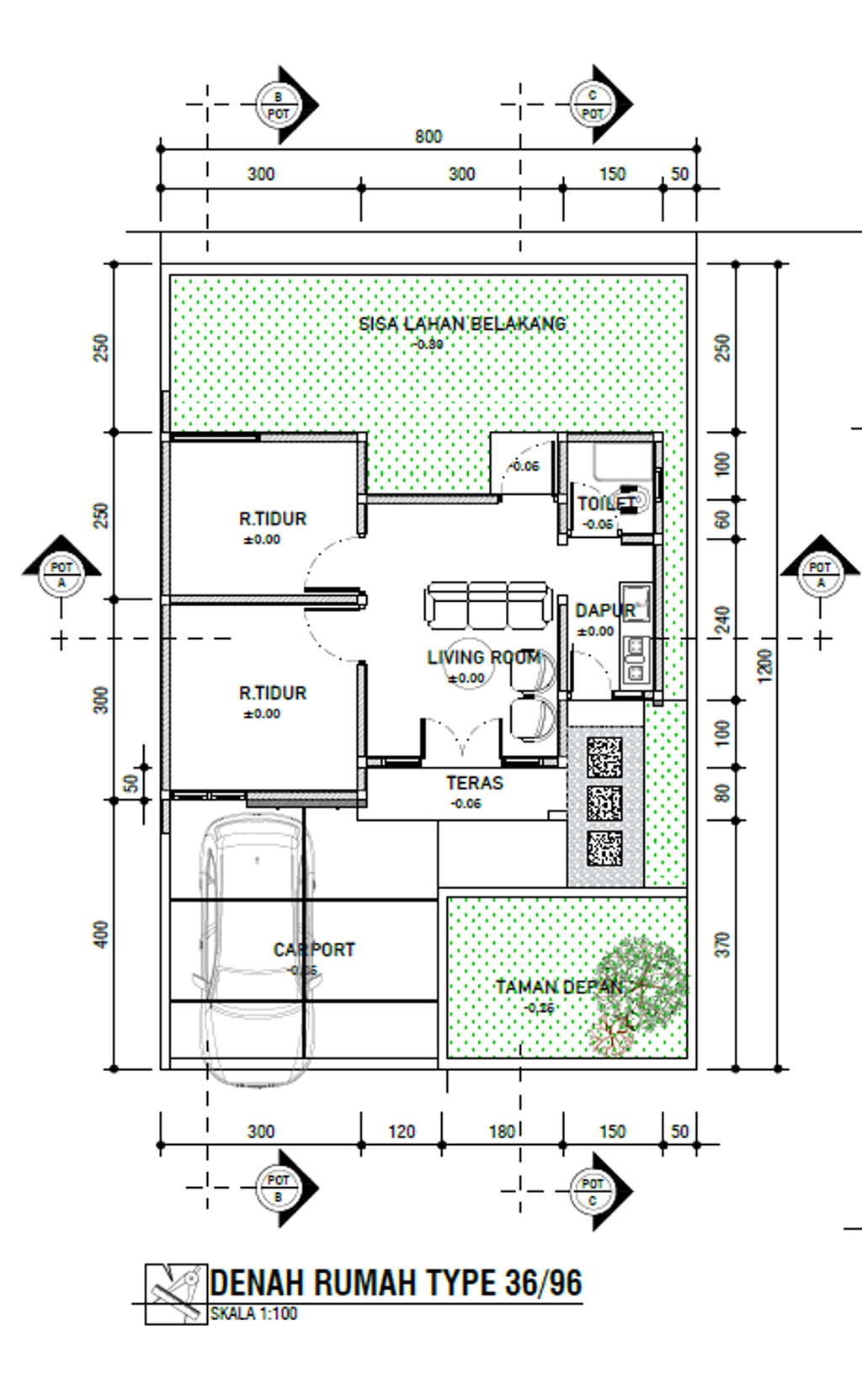
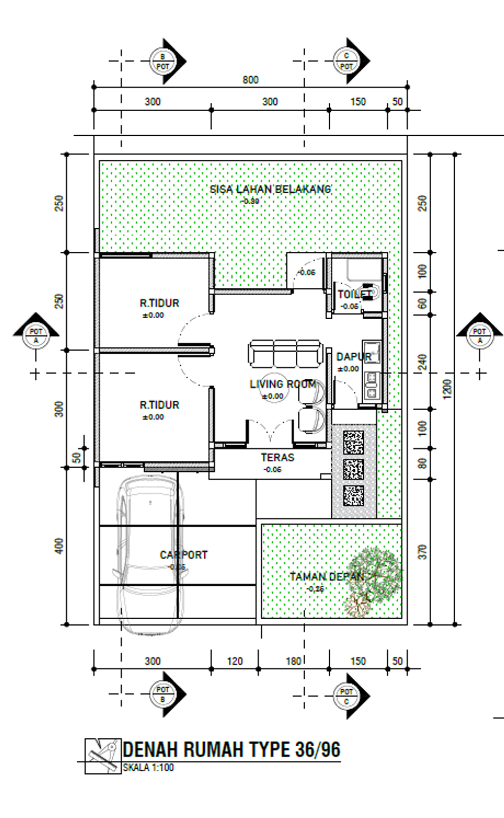
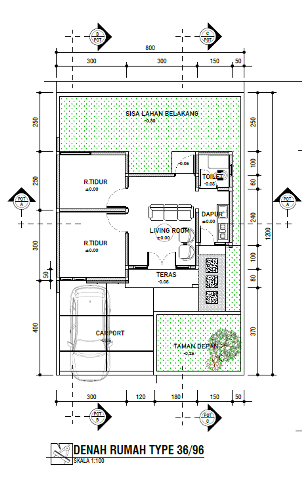
Harga: Rp 173.000.000
Luas Bangunan: 36m 2
Luas Lahan: 96m 2
Kamar Tidur: 2
Kamar Mandi: 1
a. Atap
spandek hitam rokan
b. Dinding
batako buntu , diplester dan di cat
c. Lantai & Pondasi
keramik 40x40 & cakar ayam sloof bertulang


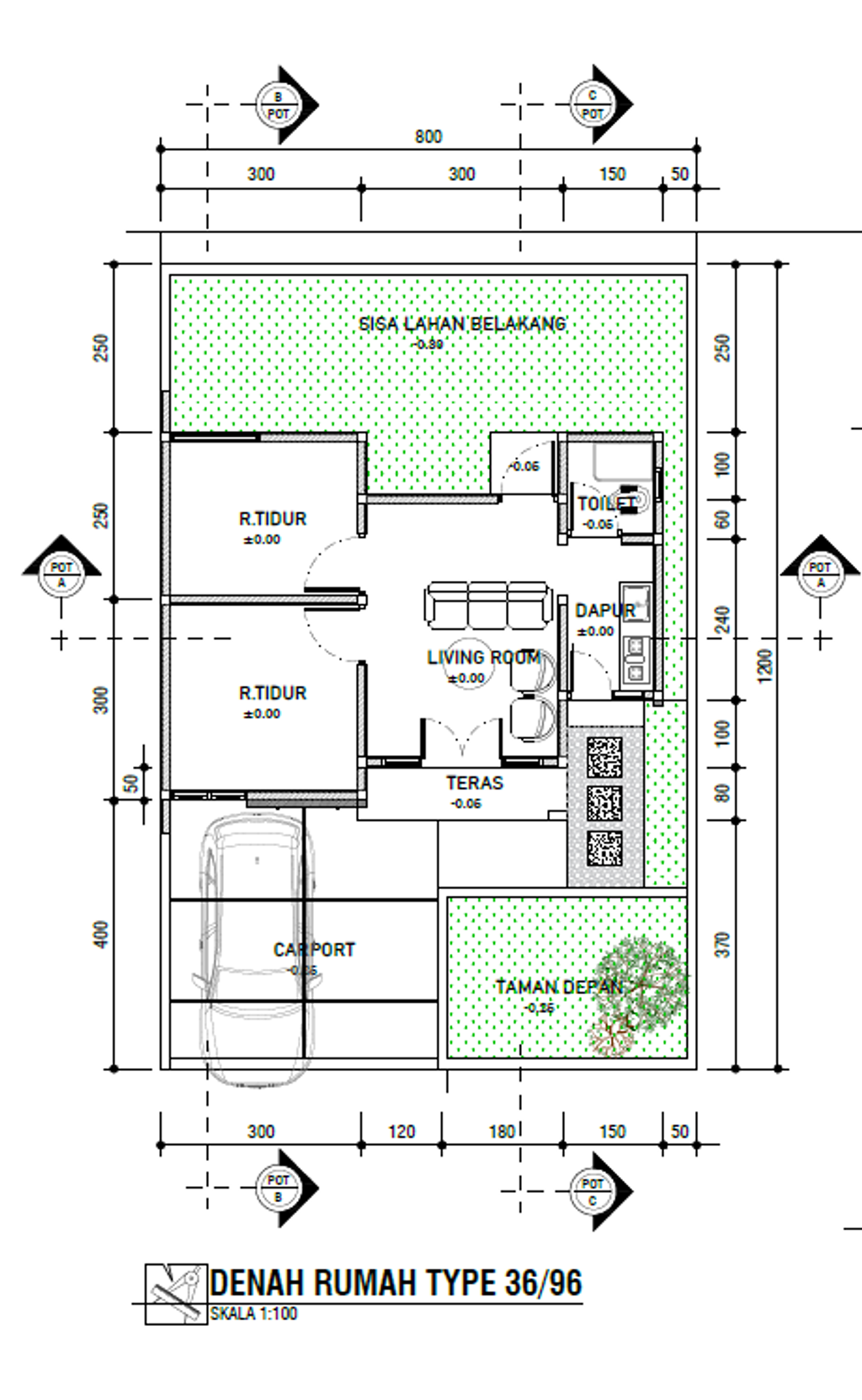
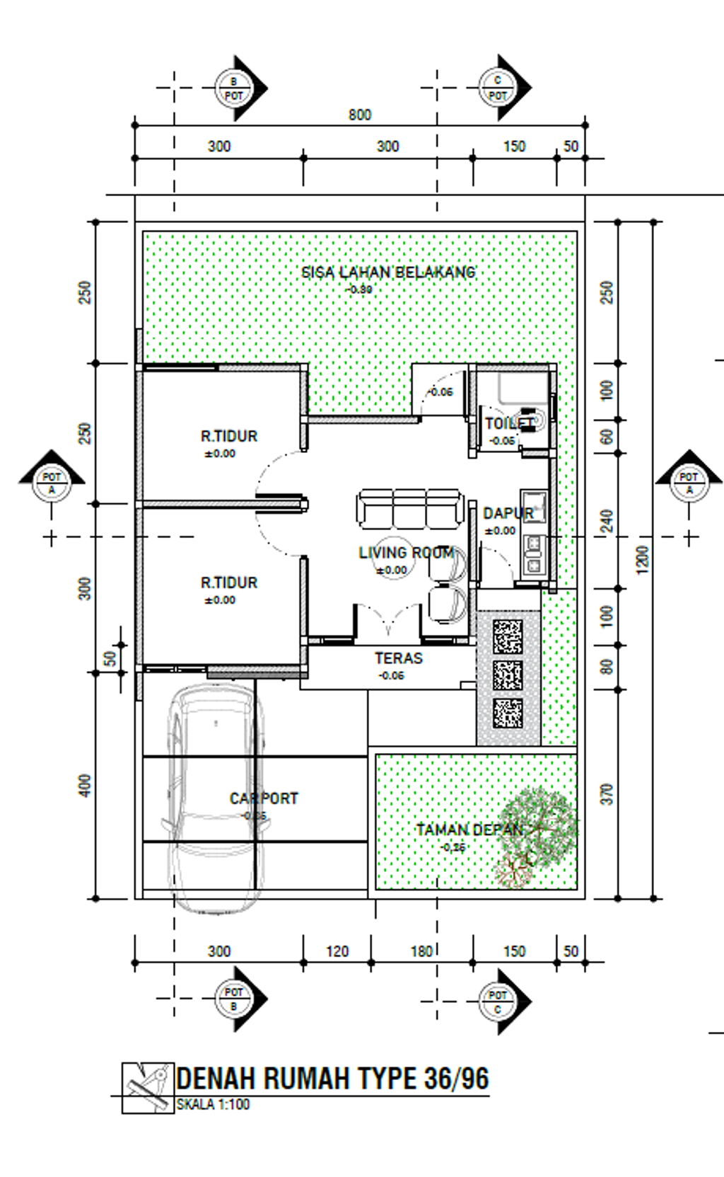
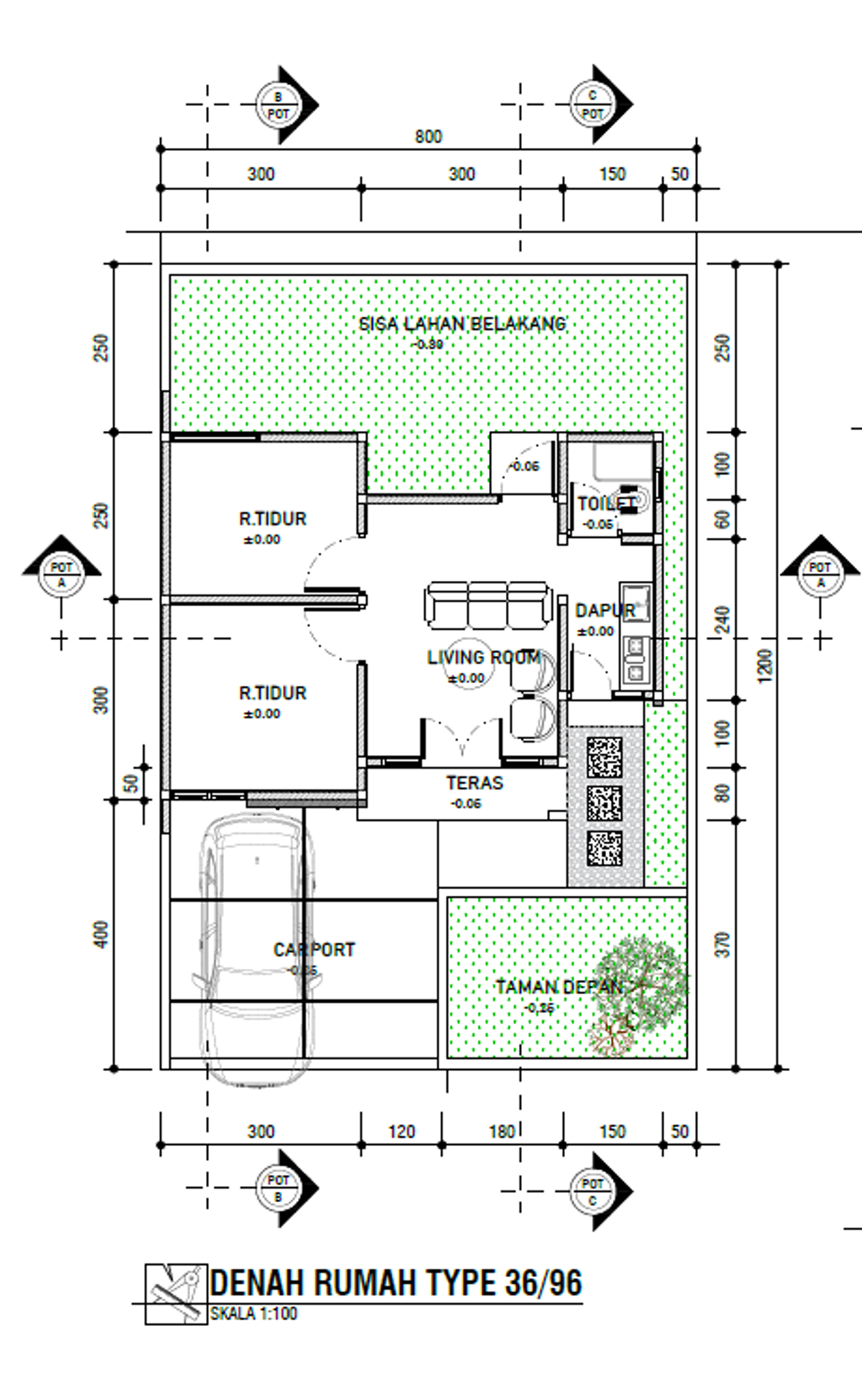
Harga: Rp 173.000.000
Luas Bangunan: 36m 2
Luas Lahan: 98m 2
Kamar Tidur: 2
Kamar Mandi: 1
a. Atap
spandek rokan hitam
b. Dinding
batako buntu diplester dan di cat
c. Lantai & Pondasi
keramik 40x40 & cakar ayam sloof bertulang


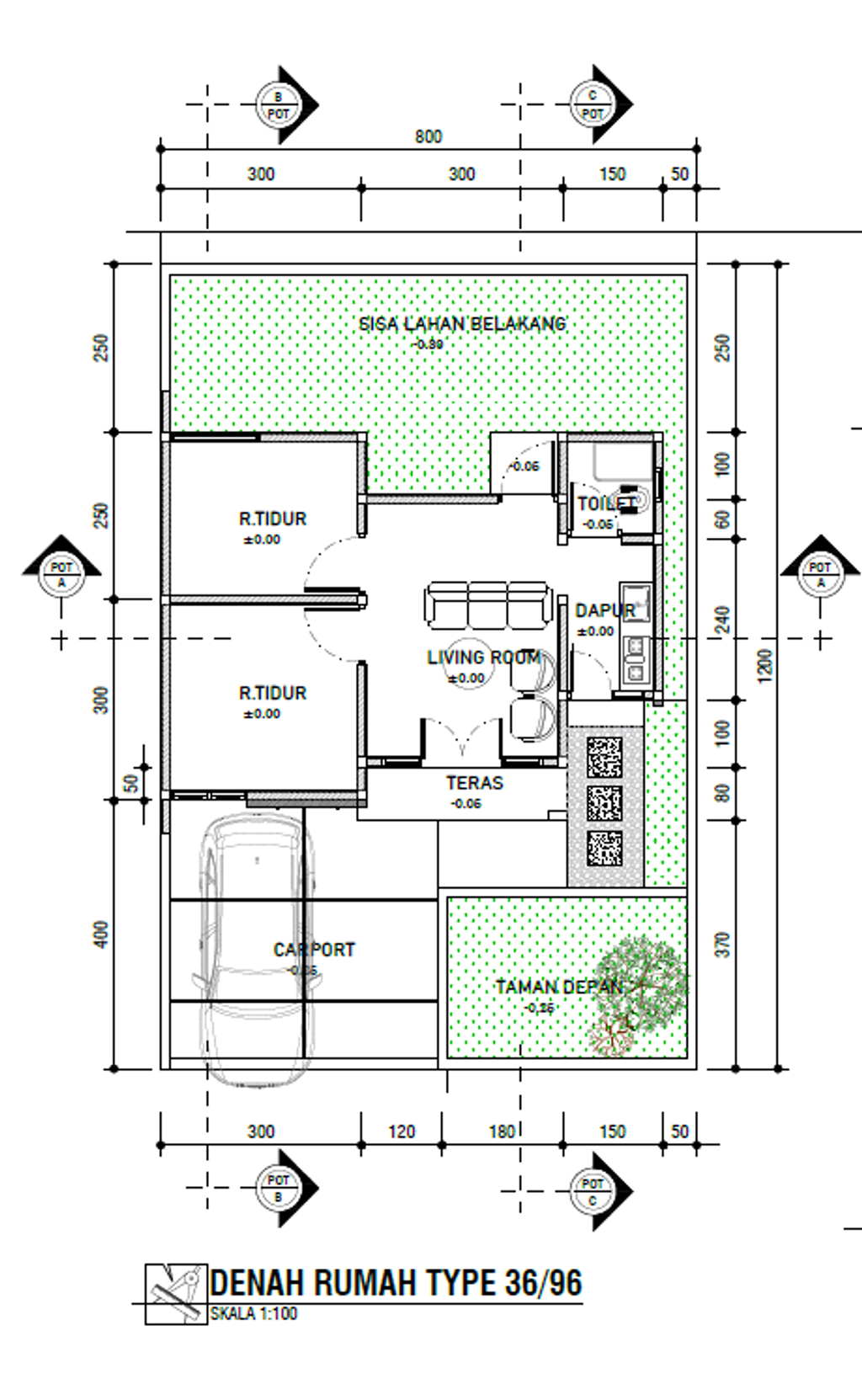
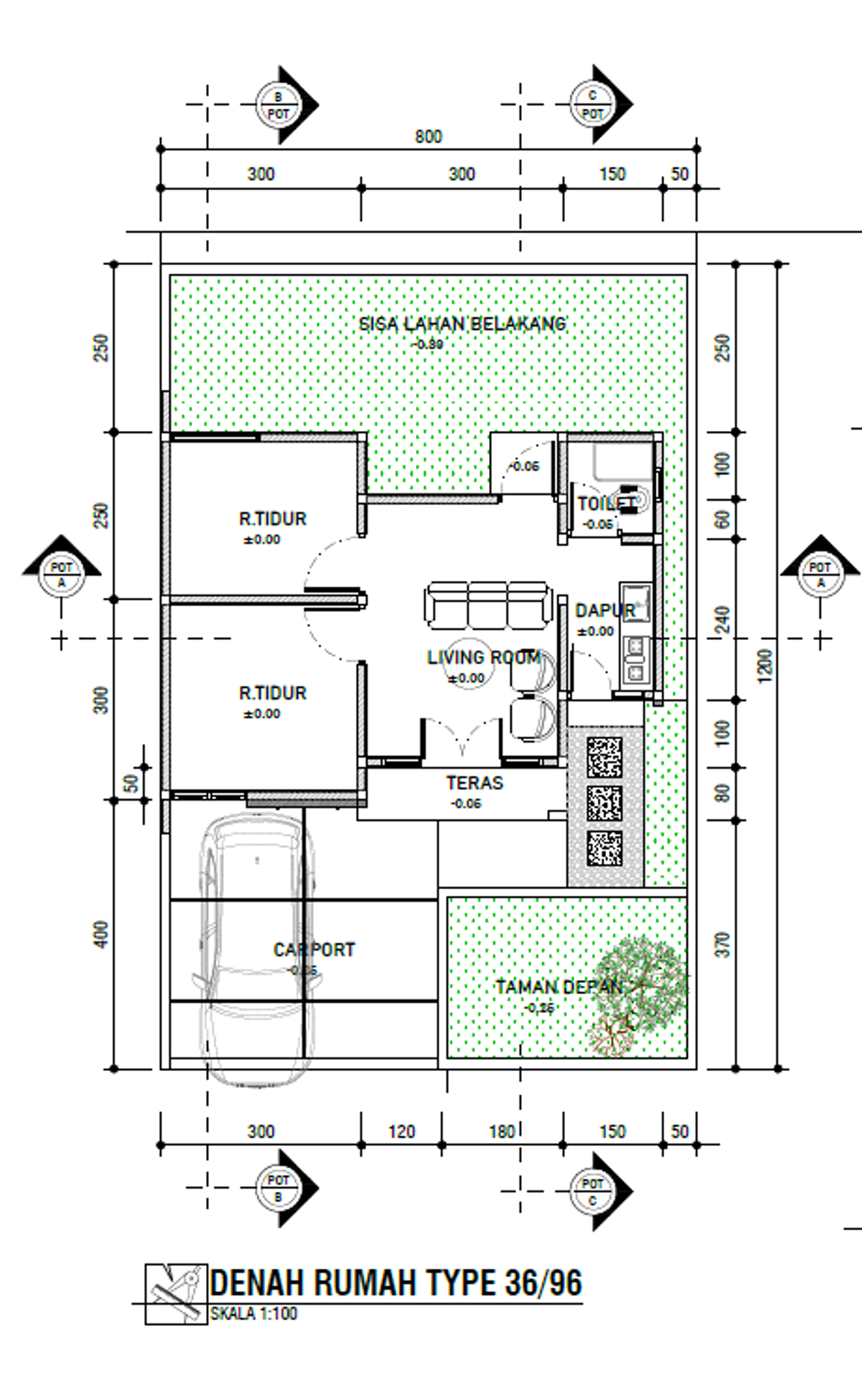
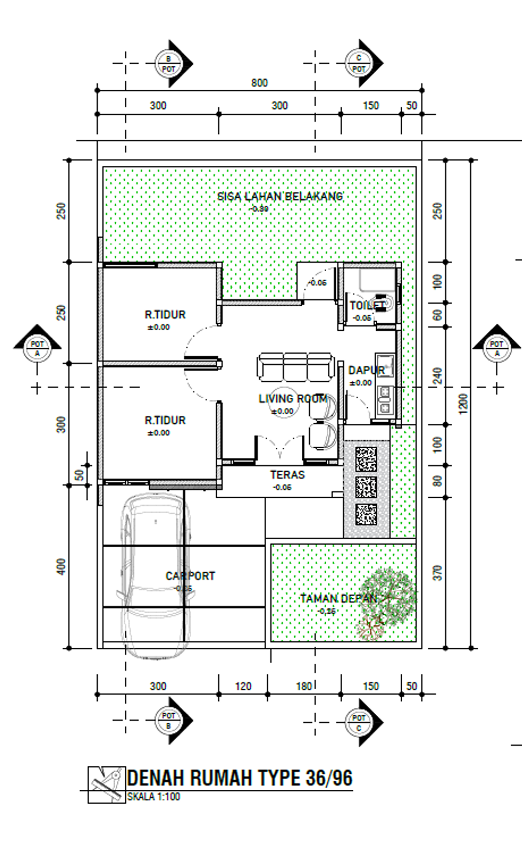
Harga: Rp 173.000.000
Luas Bangunan: 36m 2
Luas Lahan: 149m 2
Kamar Tidur: 2
Kamar Mandi: 1
a. Atap
spandek hitam
b. Dinding
batako buntu diplester dan cat
c. Lantai & Pondasi
keramik 40x40 & cakar ayam sloof bertulang


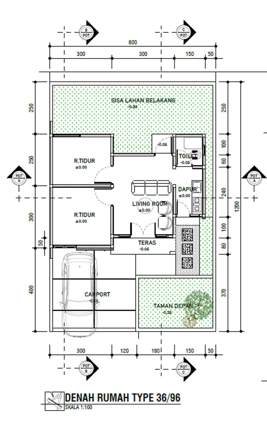
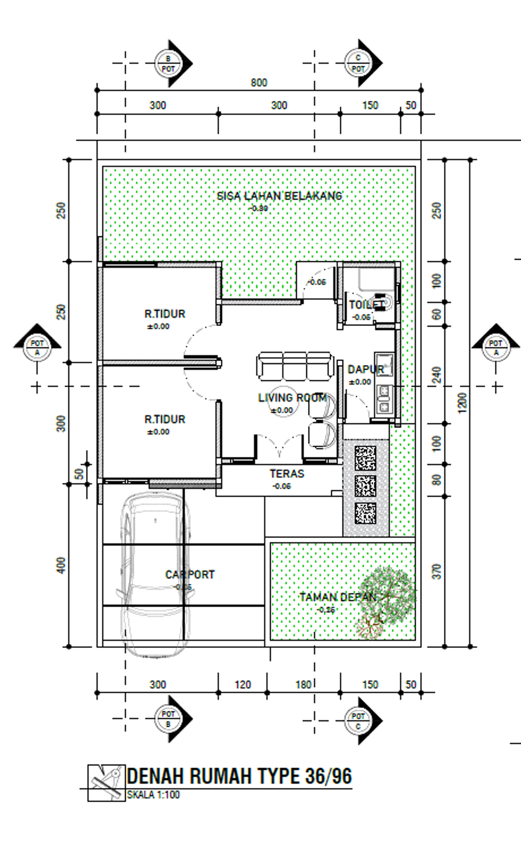
Harga: Rp 173.000.000
Luas Bangunan: 36m 2
Luas Lahan: 107m 2
Kamar Tidur: 2
Kamar Mandi: 1
a. Atap
spandek hitam
b. Dinding
batako buntu di plester dan di cat
c. Lantai & Pondasi
keramik 40x40 & cakar ayam sloof bertulang


Harga: Rp 173.000.000
Luas Bangunan: 36m 2
Luas Lahan: 99m 2
Kamar Tidur: 2
Kamar Mandi: 1
a. Atap
spandek rokan hitam
b. Dinding
batako buntu di plester dan di cat
c. Lantai & Pondasi
keramik 40x40 & cakar ayam sloof bertulang


Harga: Rp 173.000.000
Luas Bangunan: 36m 2
Luas Lahan: 101m 2
Kamar Tidur: 2
Kamar Mandi: 1
a. Atap
spandek hitam
b. Dinding
batako buntu
c. Lantai & Pondasi
keramik 40x40 & cakar ayam sloof bertulang


Harga: Rp 173.000.000
Luas Bangunan: 36m 2
Luas Lahan: 110m 2
Kamar Tidur: 2
Kamar Mandi: 1
a. Atap
spandek hitam rokan
b. Dinding
batako buntu diplester dan di cat
c. Lantai & Pondasi
keramik 40x40 & cakar ayam sloof bertulang


Harga: Rp 173.000.000
Luas Bangunan: 36m 2
Luas Lahan: 103m 2
Kamar Tidur: 2
Kamar Mandi: 1
a. Atap
spandek hitam
b. Dinding
batako buntu
c. Lantai & Pondasi
keraamik 40x40 & cakar ayam sloof bertulang


Harga: Rp 173.000.000
Luas Bangunan: 36m 2
Luas Lahan: 108m 2
Kamar Tidur: 2
Kamar Mandi: 1
a. Atap
spandek hitam rokan
b. Dinding
batako buntu di plester dan di cat
c. Lantai & Pondasi
keramik 40x40 & cakar ayam sloof bertulang


Harga: Rp 173.000.000
Luas Bangunan: 36m 2
Luas Lahan: 104m 2
Kamar Tidur: 2
Kamar Mandi: 1
a. Atap
spandek hitam rokan
b. Dinding
batako buntu di plester dan cat
c. Lantai & Pondasi
keramik 40x40 & cakar ayam sloof bertulang


Harga: Rp 173.000.000
Luas Bangunan: 36m 2
Luas Lahan: 111m 2
Kamar Tidur: 2
Kamar Mandi: 1
a. Atap
spandek hitam
b. Dinding
batako buntu diplester dan di cat
c. Lantai & Pondasi
keramik 40x40 & cakar ayam sloof bertulang