ID Lokasi : SGM0710032024T003
SULAWESI SELATAN, KAB GOWA, Palangga, Parangbanoa
HANA KONSTRUKSI MAJU JAYA
PERKUMPULAN ASOSIASI PENGEMBANG PERUMAHAN DAN PERMUKIMAN SELURUH INDONESIA
(APERSI)
Subsidi : 7 Unit
Terjual Subsidi : 1 Unit
Komersil : 0 Unit
Terjual Komersil : 0 Unit
Lihat Siteplan Digital




Harga: Rp 173.000.000
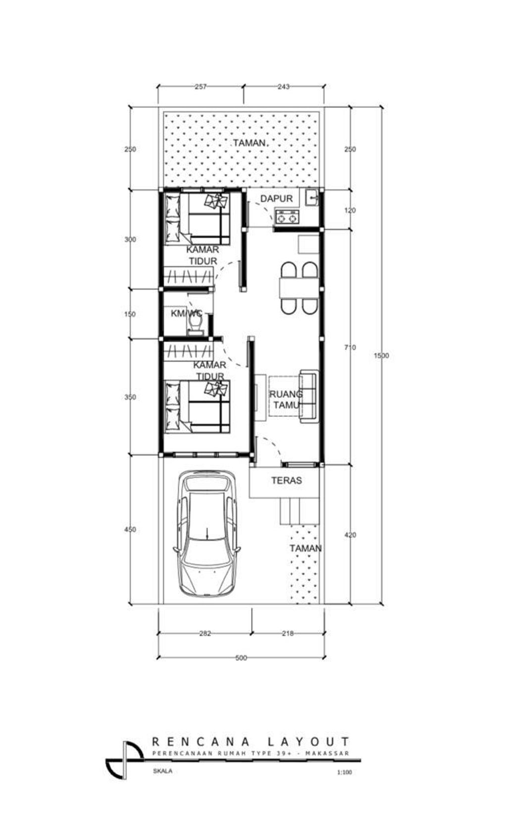
Luas Bangunan: 36m 2
Luas Lahan: 72m 2
Kamar Tidur: 2
Kamar Mandi: 1
a. Atap
ATAP SPANDEK
b. Dinding
BATA MERAH, PLESTER, ACIAN, CAT
c. Lantai & Pondasi
KERAMIK 40 X 40 & BATU KALI