ID Lokasi : SGM1210052025T005
SULAWESI SELATAN, KAB GOWA, Barombong, Lembang Parang
PT HIDAYAT ANUGRAH PRATAMA
PERKUMPULAN ASOSIASI PENGEMBANG PERUMAHAN DAN PERMUKIMAN SELURUH INDONESIA
(APERSI)
Subsidi : 25 Unit
Terjual Subsidi : 0 Unit
Komersil : 0 Unit
Terjual Komersil : 0 Unit
Lihat Siteplan Digital




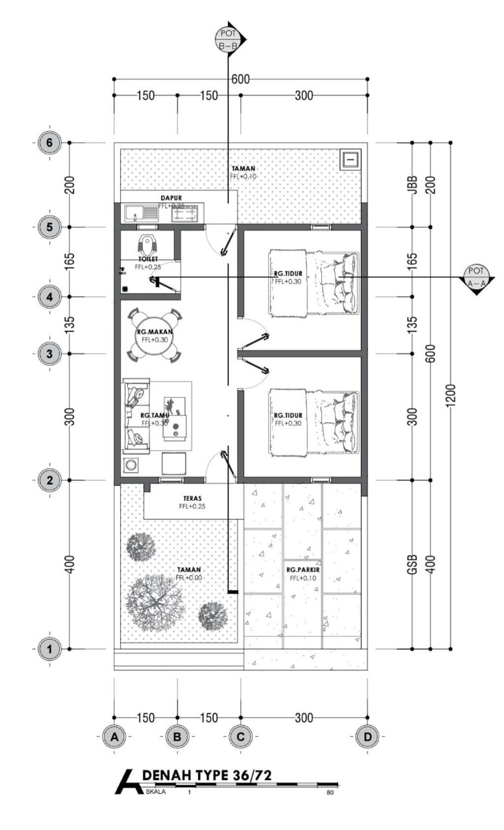
Harga: Rp 173.000.000
Luas Bangunan: 36m 2
Luas Lahan: 72m 2
Kamar Tidur: 2
Kamar Mandi: 1
a. Atap
BAJA RINGAN, ATAP SPANDEK
b. Dinding
PAS. BATA RINGAN, PLESTER ACI
c. Lantai & Pondasi
TEGEL PUTIH POLOS 40 X 40 & PAS. BATU KALI / BATU GUNUNG