ID Lokasi : SGM1320042025T008
SULAWESI SELATAN, KAB GOWA, Pattalasang, Paccellekang
PT BATARA MANDIRI PERKASA
PERKUMPULAN ASOSIASI PENGEMBANG PERUMAHAN DAN PERMUKIMAN SELURUH INDONESIA
(APERSI)
Subsidi : 85 Unit
Terjual Subsidi : 36 Unit
Komersil : 0 Unit
Terjual Komersil : 0 Unit
Lihat Siteplan DigitalMINASA INDAH RESIDENCE BLOK A no. 1 SULAWESI SELATAN, KOTA MAKASSAR, Rappocini, Minasa Upa
Telp : 08988226750
Email : heavenly.sales@bmperkasa.com
Website : bmperkasa.com





Harga: Rp 173.000.000
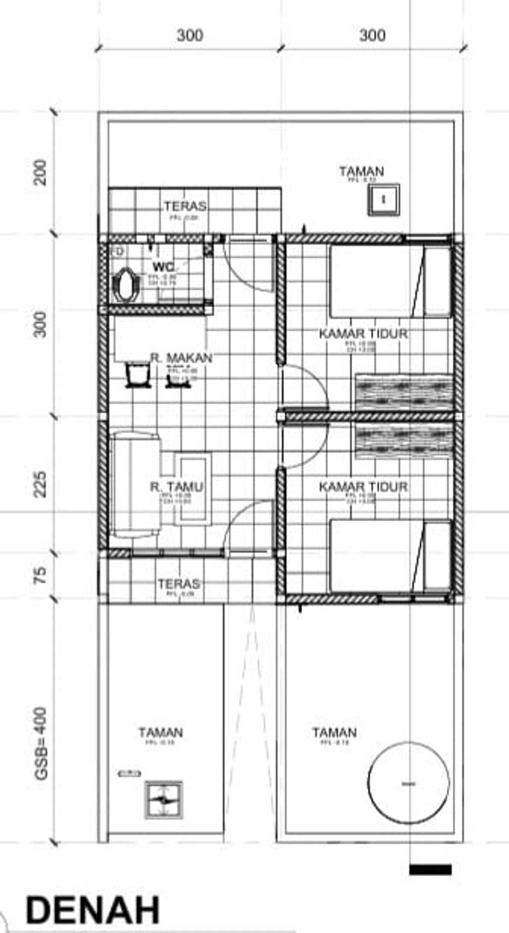
Luas Bangunan: 36m 2
Luas Lahan: 72m 2
Kamar Tidur: 2
Kamar Mandi: 1
a. Atap
Spandek
b. Dinding
Hebel, plester
c. Lantai & Pondasi
Keramik & Batu kali
MINASA INDAH RESIDENCE BLOK A no. 1 SULAWESI SELATAN, KOTA MAKASSAR, Rappocini, Minasa Upa
Telp : 08988226750
Email : heavenly.sales@bmperkasa.com
Website : bmperkasa.com