ID Lokasi : SGN0620012024T001
JAWA TENGAH, KAB SRAGEN, Gondang, Srimulyo
PT PUTRA BHINA KARYA
Himpunan Pengembang Permukiman dan Perumahan Rakyat
(HIMPERRA)
Subsidi : 6 Unit
Terjual Subsidi : 26 Unit
Komersil : 0 Unit
Terjual Komersil : 0 Unit
Lihat Siteplan Digital




Harga: Rp 166.000.000
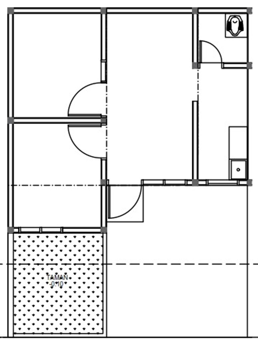
Luas Bangunan: 36m 2
Luas Lahan: 60m 2
Kamar Tidur: 2
Kamar Mandi: 1
a. Atap
Rangka Atap Baja Ringan, Genteng Metal Roof
b. Dinding
Bata Merah, Plester Aci, Finishing Cat
c. Lantai & Pondasi
Granit & Batu Kali