ID Lokasi : SGN0910092025T001
JAWA TENGAH, KAB SRAGEN, Karangmalang, Plumbungan
PT JAYA MULYA ABADI TUJUH PULUH
ASOSIASI PENGEMBANG PERUMAHAN INDONESIA
(APPERINDO)
Subsidi : 34 Unit
Terjual Subsidi : 5 Unit
Komersil : 10 Unit
Terjual Komersil : 0 Unit
Lihat Siteplan Digital



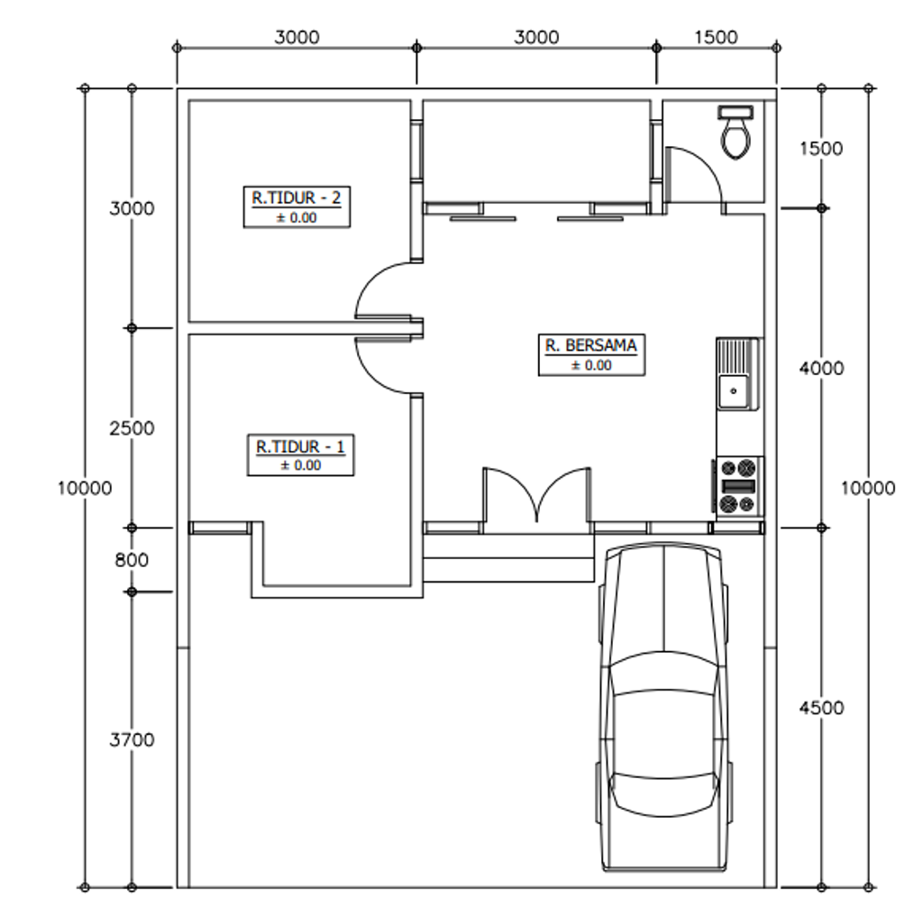
Harga: Rp 166.000.000
Luas Bangunan: 30m 2
Luas Lahan: 60m 2
Kamar Tidur: 2
Kamar Mandi: 1
a. Atap
BETON
b. Dinding
BATU BATA
c. Lantai & Pondasi
KERAMIK & CAKAR AYAM
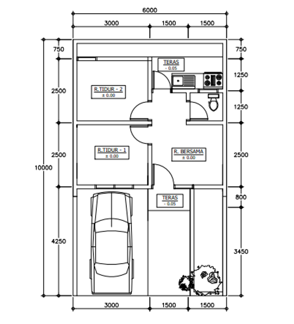
Harga: Rp 350.000.000
Luas Bangunan: 45m 2
Luas Lahan: 75m 2
Kamar Tidur: 2
Kamar Mandi: 1
a. Atap
BETON
b. Dinding
BATA MERAH
c. Lantai & Pondasi
GRANIT & CAKAR AYAM
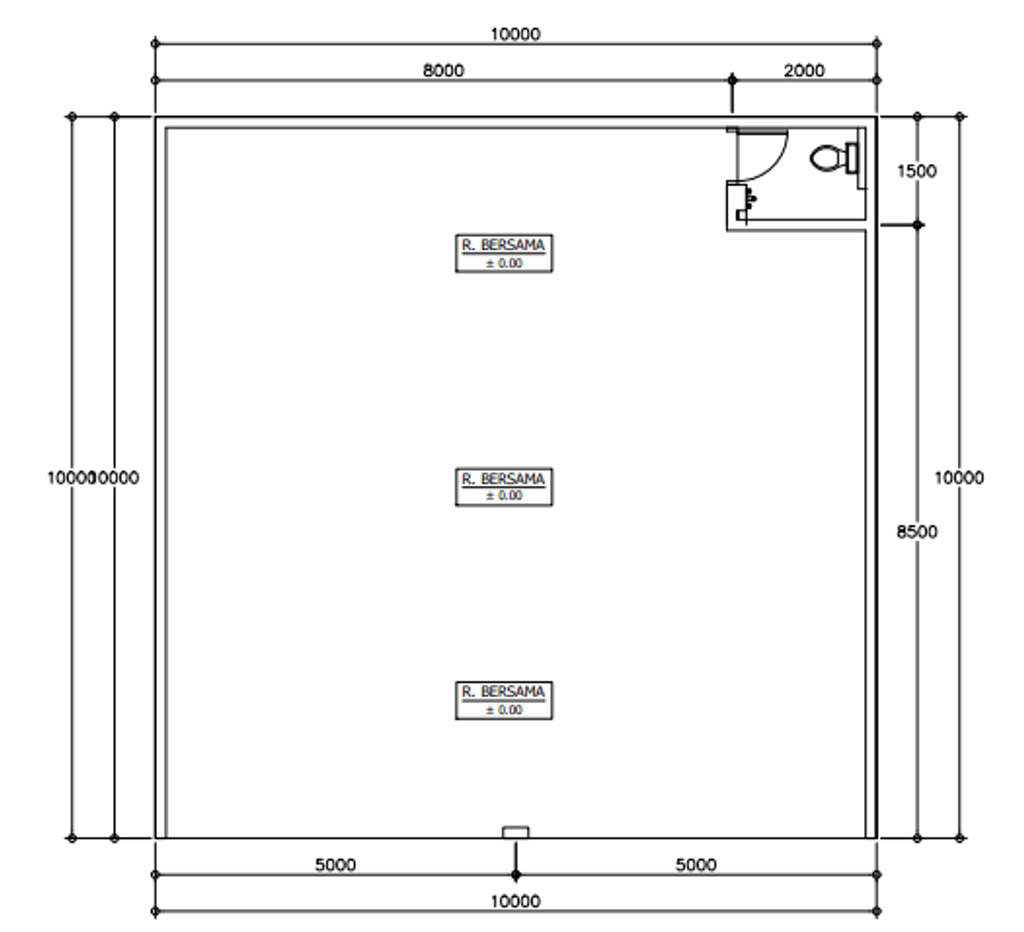
Harga: Rp 500.000.000
Luas Bangunan: 200m 2
Luas Lahan: 146m 2
Kamar Tidur: 0
Kamar Mandi: 1
a. Atap
BETON
b. Dinding
BATA MERAH
c. Lantai & Pondasi
KERAMIK & CAKAR AYAM
Harga: Rp 500.000.000
Luas Bangunan: 200m 2
Luas Lahan: 146m 2
Kamar Tidur: 0
Kamar Mandi: 1
a. Atap
BETON
b. Dinding
BATA MERAH
c. Lantai & Pondasi
KERAMIK & CAKAR AYAM