ID Lokasi : SGN0920042024T001
JAWA TENGAH, KAB SRAGEN, Karangmalang, Plosokerep
PT ANAK KOMANG MAKMUR
Developer Properti Indonesia
(DEPRINDO)
Subsidi : 80 Unit
Terjual Subsidi : 22 Unit
Komersil : 0 Unit
Terjual Komersil : 0 Unit
Lihat Siteplan Digital




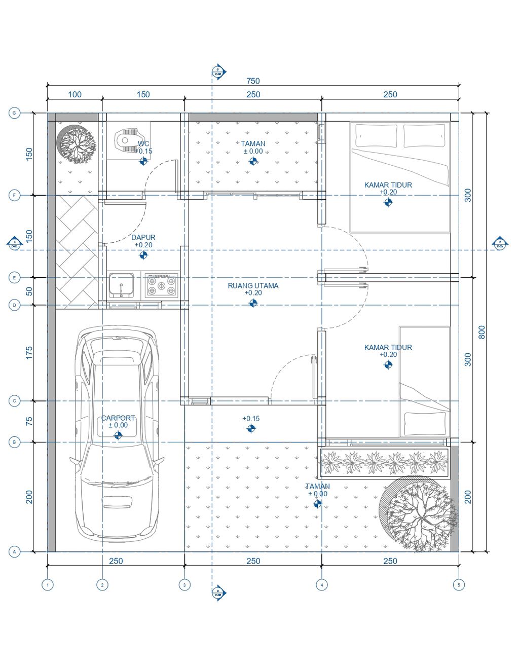
Harga: Rp 166.000.000
Luas Bangunan: 32m 2
Luas Lahan: 60m 2
Kamar Tidur: 2
Kamar Mandi: 1
a. Atap
Atap metal dengan Struktur atap baja ringan
b. Dinding
Dinding bata ringan
c. Lantai & Pondasi
lantai granit 60 x 60 & pondasi batu kali


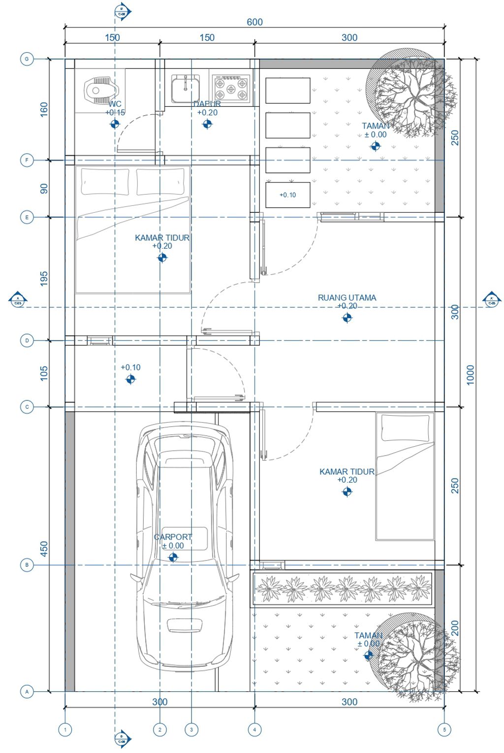
Harga: Rp 166.000.000
Luas Bangunan: 32m 2
Luas Lahan: 60m 2
Kamar Tidur: 2
Kamar Mandi: 1
a. Atap
atap metal dengan rangka atap baja ringan
b. Dinding
dinding bata ringan
c. Lantai & Pondasi
lantai granit 60 x 60 & pondasi batu kali