ID Lokasi : SGN0920062025T003
JAWA TENGAH, KAB SRAGEN, Karangmalang, Puro
PT IYANG INDOTEK SEJAHTERA
Himpunan Pengembang Permukiman dan Perumahan Rakyat
(HIMPERRA)
Subsidi : 23 Unit
Terjual Subsidi : 2 Unit
Komersil : 0 Unit
Terjual Komersil : 0 Unit
Lihat Siteplan Digital




Harga: Rp 166.000.000
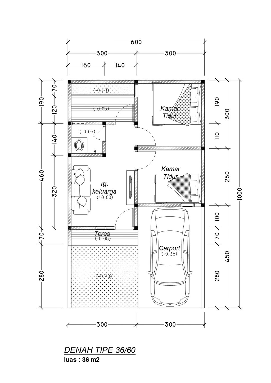
Luas Bangunan: 36m 2
Luas Lahan: 60m 2
Kamar Tidur: 2
Kamar Mandi: 1
a. Atap
Rangka Atap : Baja Ringan
Genteng : Tanah
b. Dinding
Bata Ringan, Plester Aci
c. Lantai & Pondasi
Keramik & Batu Kali


Harga: Rp 166.000.000
Luas Bangunan: 36m 2
Luas Lahan: 61m 2
Kamar Tidur: 2
Kamar Mandi: 1
a. Atap
Rangka Atap : Baja Ringan
Genteng : Tanah
b. Dinding
Bata Ringan, Plester Aci
c. Lantai & Pondasi
Keramik & Batu Kali


Harga: Rp 166.000.000
Luas Bangunan: 36m 2
Luas Lahan: 62m 2
Kamar Tidur: 2
Kamar Mandi: 1
a. Atap
Rangka Atap : Baja Ringan
Genteng : Tanah
b. Dinding
Bata Ringan, Plester Aci
c. Lantai & Pondasi
Keramik & Batu Kali


Harga: Rp 166.000.000
Luas Bangunan: 36m 2
Luas Lahan: 63m 2
Kamar Tidur: 2
Kamar Mandi: 1
a. Atap
Rangka Atap : Baja Ringan
Genteng : Tanah
b. Dinding
Bata Ringan, Plester Aci
c. Lantai & Pondasi
Keramik & Batu Kali


Harga: Rp 166.000.000
Luas Bangunan: 36m 2
Luas Lahan: 64m 2
Kamar Tidur: 2
Kamar Mandi: 1
a. Atap
Rangka Atap : Baja Ringan
Genteng : Tanah
b. Dinding
Bata Ringan, Plester Aci
c. Lantai & Pondasi
Keramik & Batu Kali


Harga: Rp 166.000.000
Luas Bangunan: 36m 2
Luas Lahan: 65m 2
Kamar Tidur: 2
Kamar Mandi: 1
a. Atap
Rangka Atap : Baja Ringan
Genteng : Tanah
b. Dinding
Bata Ringan, Plester Aci
c. Lantai & Pondasi
Keramik & Batu Kali


Harga: Rp 166.000.000
Luas Bangunan: 36m 2
Luas Lahan: 66m 2
Kamar Tidur: 2
Kamar Mandi: 1
a. Atap
Rangka Atap : Baja Ringan
Genteng : Tanah
b. Dinding
Bata Ringan, Plester Aci
c. Lantai & Pondasi
Keramik & Batu Kali


Harga: Rp 166.000.000
Luas Bangunan: 36m 2
Luas Lahan: 67m 2
Kamar Tidur: 2
Kamar Mandi: 1
a. Atap
Rangka Atap : Baja Ringan
Genteng : Tanah
b. Dinding
Bata Ringan, Plester Aci
c. Lantai & Pondasi
Keramik & Batu Kali


Harga: Rp 166.000.000
Luas Bangunan: 36m 2
Luas Lahan: 70m 2
Kamar Tidur: 2
Kamar Mandi: 1
a. Atap
Rangka Atap : Baja Ringan
Genteng : Tanah
b. Dinding
Bata Ringan, Plester Aci
c. Lantai & Pondasi
Keramik & Batu Kali