ID Lokasi : SGN1120022025T001
JAWA TENGAH, KAB SRAGEN, Sidoharjo, Purwosuman
PT SAMUDRA COUSIN BERKARYA
Himpunan Pengembang Permukiman dan Perumahan Rakyat
(HIMPERRA)
Subsidi : 81 Unit
Terjual Subsidi : 20 Unit
Komersil : 0 Unit
Terjual Komersil : 0 Unit
Lihat Siteplan Digital


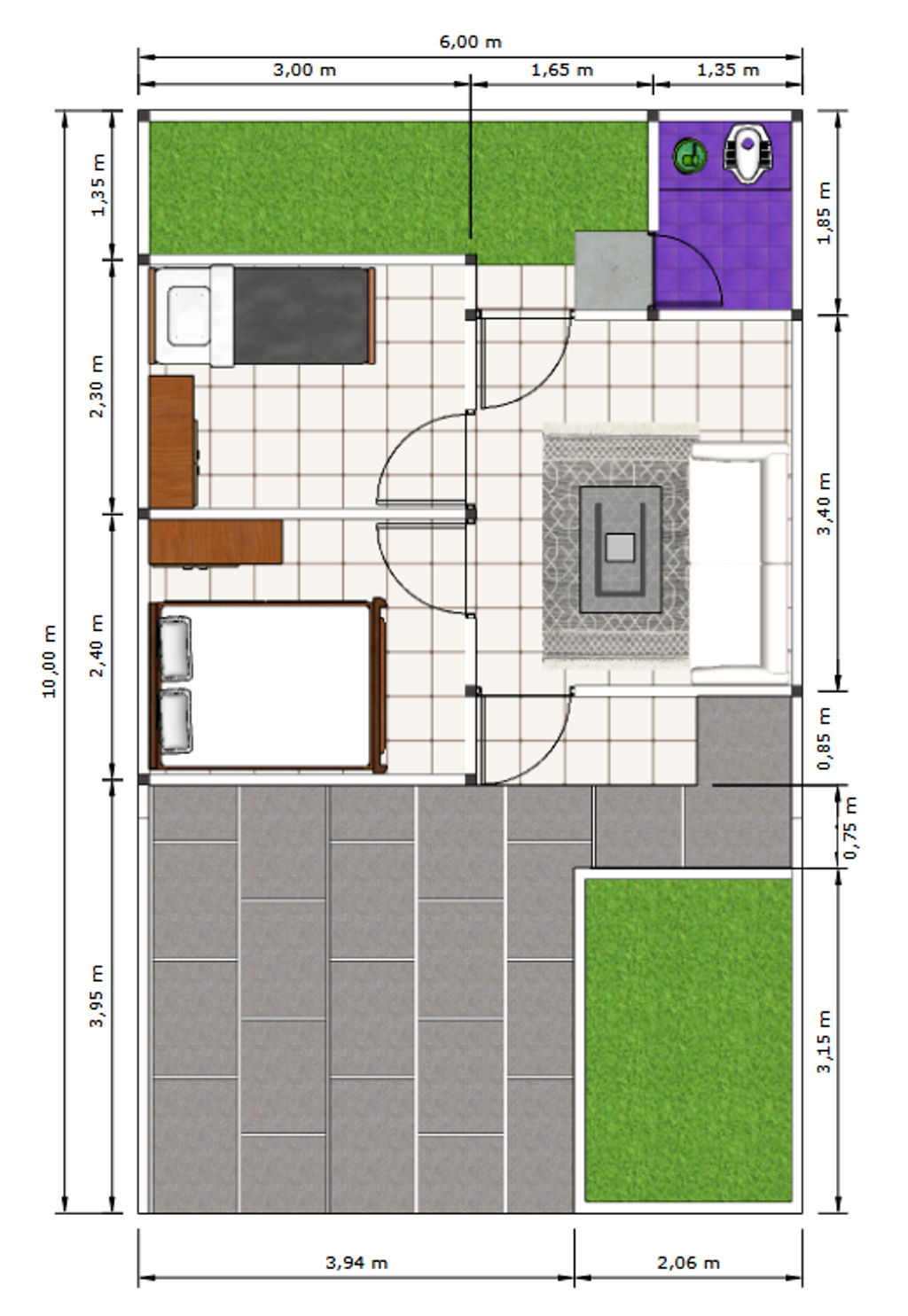
Harga: Rp 166.000.000
Luas Bangunan: 30m 2
Luas Lahan: 60m 2
Kamar Tidur: 2
Kamar Mandi: 1
a. Atap
Rangka Atap Baja Ringan dengan Galvalum Pasir
b. Dinding
Bata Ringan
c. Lantai & Pondasi
Keramik 20x20 & Pondasi Batu Kali, Struktur Beton Bertulang


Harga: Rp 166.000.000
Luas Bangunan: 30m 2
Luas Lahan: 60m 2
Kamar Tidur: 2
Kamar Mandi: 1
a. Atap
Rangka Atap Baja Ringan, Galvalum Pasir
b. Dinding
Bata Ringan
c. Lantai & Pondasi
Lantai Keramik 20x20 & Pondasi Batu Kali Struktur Beton Bertulang