ID Lokasi : SKH0920062024T003
JAWA TENGAH, KAB SUKOHARJO, Grogol, Gedangan
PT PONDOK SOLO PERMAI
REAL ESTATE INDONESIA
(REI)
Subsidi : 0 Unit
Terjual Subsidi : 0 Unit
Komersil : 0 Unit
Terjual Komersil : 2 Unit
Lihat Siteplan DigitalRuko Mariposa Blok FH 32-34, Jalan Djlopo, Solo Baru, Sukoharjo no. 32 JAWA TENGAH, KAB SUKOHARJO, Grogol, Gedangan
Telp : 0271 622441
Email : pt.pondok.solo.permai@gmail.com
Website : //www.solobaru.com





Harga: Rp 500.000.000
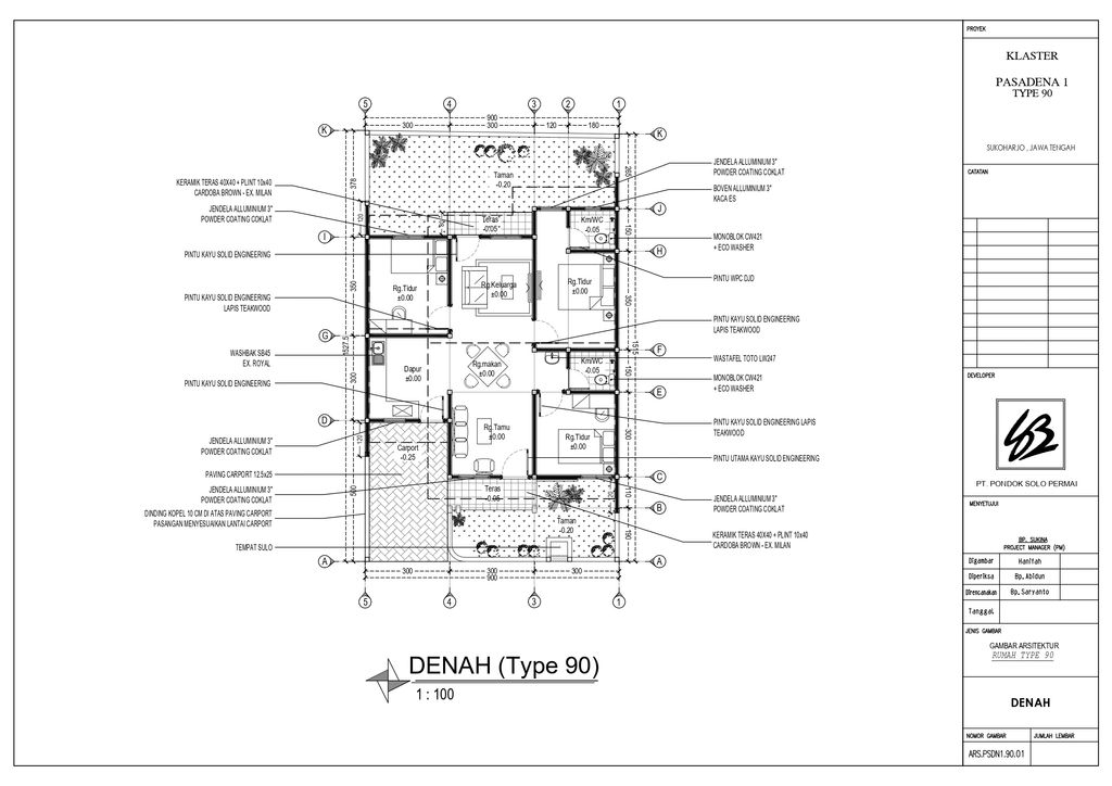
Luas Bangunan: 90m 2
Luas Lahan: 134m 2
Kamar Tidur: 3
Kamar Mandi: 2
a. Atap
Rangka atap baja ringan, genteng beton
b. Dinding
Bata 1/2 batu, kolom beton bertulang, finishing cat tembok
c. Lantai & Pondasi
Granit tile, keramik, carport paving & Batu kali, sloof beton bertulang
Ruko Mariposa Blok FH 32-34, Jalan Djlopo, Solo Baru, Sukoharjo no. 32 JAWA TENGAH, KAB SUKOHARJO, Grogol, Gedangan
Telp : 0271 622441
Email : pt.pondok.solo.permai@gmail.com
Website : //www.solobaru.com