ID Lokasi : SKH1020062021T001
            
            JAWA TENGAH, KAB SUKOHARJO, Baki, Kudu
            
            KARUNIA MULYA CIPTASARANA
            
            REAL ESTATE INDONESIA
            (REI)
          
Subsidi : 0 Unit
Terjual Subsidi : 0 Unit
Komersil : 17 Unit
Terjual Komersil : 72 Unit
Lihat Siteplan Digital




Harga: Rp 618.420.000
Luas Bangunan: 70m 2
Luas Lahan: 96m 2
Kamar Tidur: 3
Kamar Mandi: 1
a. Atap
                      
                      Genteng Beton
b. Dinding
                      
                      Bata Merah
c. Lantai & Pondasi
                      
                      Granit & Batu Kali


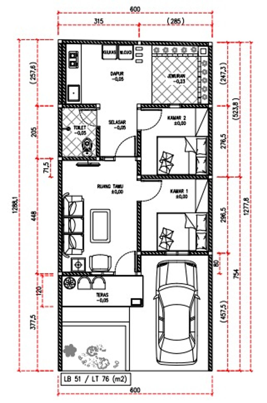
Harga: Rp 510.730.000
Luas Bangunan: 53m 2
Luas Lahan: 84m 2
Kamar Tidur: 2
Kamar Mandi: 1
a. Atap
                      
                      Genteng Beton
b. Dinding
                      
                      Bata Merah
c. Lantai & Pondasi
                      
                      Granit & Batu Kali


Harga: Rp 396.110.000
Luas Bangunan: 45m 2
Luas Lahan: 72m 2
Kamar Tidur: 2
Kamar Mandi: 1
a. Atap
                      
                      Genteng Beton
b. Dinding
                      
                      Bata Merah
c. Lantai & Pondasi
                      
                      Granit & Batu Kali


Harga: Rp 547.965.000
Luas Bangunan: 55m 2
Luas Lahan: 91m 2
Kamar Tidur: 2
Kamar Mandi: 1
a. Atap
                      
                      Genteng Beton
b. Dinding
                      
                      Bata Merah
c. Lantai & Pondasi
                      
                      Granit & Batu Kali


Harga: Rp 698.500.000
Luas Bangunan: 66m 2
Luas Lahan: 106m 2
Kamar Tidur: 2
Kamar Mandi: 1
a. Atap
                      
                      Genteng Beton
b. Dinding
                      
                      Bata Merah
c. Lantai & Pondasi
                      
                      Granit & Batu Kali


Harga: Rp 569.250.000
Luas Bangunan: 52m 2
Luas Lahan: 94m 2
Kamar Tidur: 2
Kamar Mandi: 1
a. Atap
                      
                      Genteng Beton
b. Dinding
                      
                      Bata Merah
c. Lantai & Pondasi
                      
                      Granit & Batu Kali


Harga: Rp 652.680.000
Luas Bangunan: 67m 2
Luas Lahan: 89m 2
Kamar Tidur: 1
Kamar Mandi: 1
a. Atap
                      
                      Genteng Beton
b. Dinding
                      
                      Bata Merah
c. Lantai & Pondasi
                      
                      Keramik & Batu kali


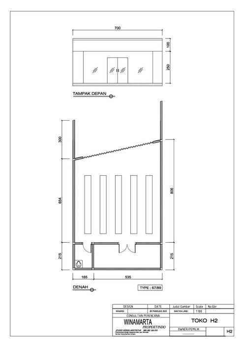
Harga: Rp 475.082.995
Luas Bangunan: 55m 2
Luas Lahan: 82m 2
Kamar Tidur: 2
Kamar Mandi: 1
a. Atap
                      
                      Genteng Beton
b. Dinding
                      
                      Bata Merah
c. Lantai & Pondasi
                      
                      Granit & Batu Kali


Harga: Rp 546.000.000
Luas Bangunan: 55m 2
Luas Lahan: 84m 2
Kamar Tidur: 2
Kamar Mandi: 1
a. Atap
                      
                      Genteng Benton
b. Dinding
                      
                      Bata Merah
c. Lantai & Pondasi
                      
                      Granit & Batu Kali


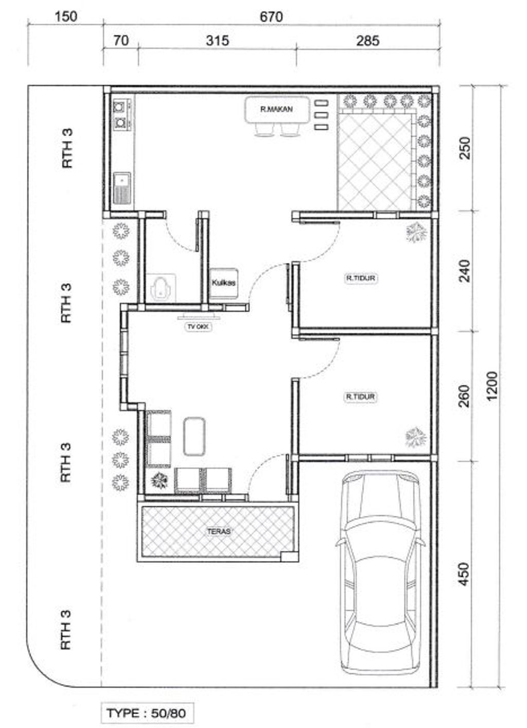
Harga: Rp 490.665.000
Luas Bangunan: 51m 2
Luas Lahan: 76m 2
Kamar Tidur: 2
Kamar Mandi: 1
a. Atap
                      
                      GENTENG BETON
b. Dinding
                      
                      BATA MERAH
c. Lantai & Pondasi
                      
                      GRANIT & BATU KALI

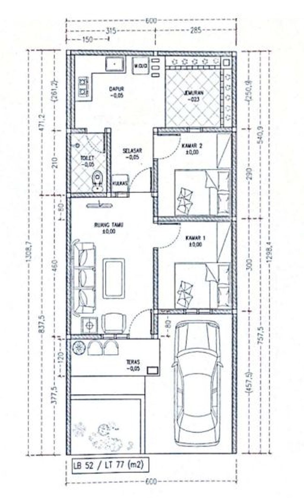
Harga: Rp 498.330.000
Luas Bangunan: 52m 2
Luas Lahan: 77m 2
Kamar Tidur: 2
Kamar Mandi: 1
a. Atap
                      
                      Genteng Beton
b. Dinding
                      
                      Bata Merah
c. Lantai & Pondasi
                      
                      Granit & Batu Kali

Harga: Rp 547.965.000
Luas Bangunan: 50m 2
Luas Lahan: 80m 2
Kamar Tidur: 2
Kamar Mandi: 1
a. Atap
                      
                      Genteng Beton
b. Dinding
                      
                      Bata Merah
c. Lantai & Pondasi
                      
                      Granit & Batu Kali


Harga: Rp 520.800.000
Luas Bangunan: 54m 2
Luas Lahan: 80m 2
Kamar Tidur: 2
Kamar Mandi: 1
a. Atap
                      
                      Genteng Beton
b. Dinding
                      
                      Bata Merah
c. Lantai & Pondasi
                      
                      Granit & Batu Kali