Mulia Residence 2

ID Lokasi : SKW0410012022T001
KALIMANTAN BARAT, KOTA SINGKAWANG, Singkawang Utara, Sungai Garam Hilir
KARYA MULIA KHATULISTIWA
REAL ESTATE INDONESIA (REI)


Status Rumah

Subsidi : 7 Unit

Terjual Subsidi : 15 Unit

Komersil : 0 Unit

Terjual Komersil : 0 Unit

Lihat Siteplan Digital

Peta Lokasi



Kantor Pemasaran

Jl. Semai Gg. Persatuan, RT. 012 RW. 004, Kelurahan Bukit Batu, Kecamatan Singkawang Tengah, Kota Singkawang no. 15A KALIMANTAN BARAT, KOTA SINGKAWANG, Singkawang Tengah, Bukit Batu

Telp : 085247065665

Email : dutakarya1982@gmail.com

Website :

Foto Lokasi


foto gerbang perumahan Mulia Residence 2
Foto Gerbang/Jalan Utama
foto contoh rumah perumahan Mulia Residence 2
Foto Rumah Contoh
foto posisi tengah perumahan Mulia Residence 2
Foto Posisi Tengah Lokasi

Tipe Rumah


1. Tipe 36/159 (subsidi)
foto tampak rumah tipe 36/159 perumahan Mulia Residence 2
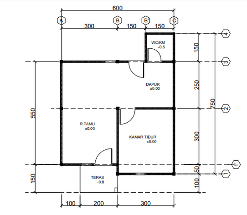
foto denah rumah tipe 36/159 perumahan Mulia Residence 2

Harga: Rp 164.500.000

Luas Bangunan: 36m 2

Luas Lahan: 159m 2

Kamar Tidur: 1

Kamar Mandi: 1

Spesifikasi Teknis

a. Atap
Kerangka Atap Menggunakan Kayu dan Penutup Atap Menggunakan Seng Metal dan List Plank GRC Motif

b. Dinding
Batako dan Plesteran Halus

c. Lantai & Pondasi
Finising Keramik & Sloof Beton Bertulang

2. Tipe 36/126 (subsidi)
foto tampak rumah tipe 36/126 perumahan Mulia Residence 2
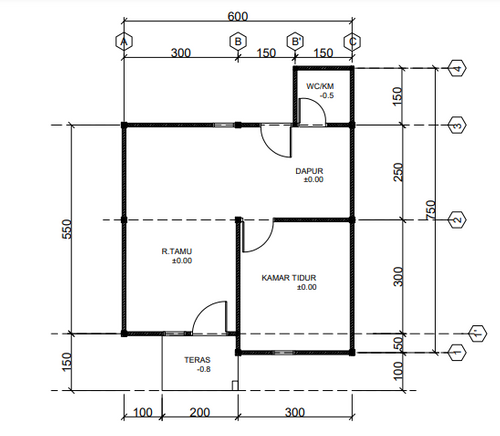
foto denah rumah tipe 36/126 perumahan Mulia Residence 2

Harga: Rp 164.500.000

Luas Bangunan: 36m 2

Luas Lahan: 126m 2

Kamar Tidur: 1

Kamar Mandi: 1

Spesifikasi Teknis

a. Atap
Kerangka Atap Menggunakan Kayu dan Penutup Atap Menggunakan Seng Metal dan List Plank GRC Motif

b. Dinding
Batako dan Plesteran Halus

c. Lantai & Pondasi
Finising Keramik & Sloof Beton Bertulang

3. Tipe 36/124 (subsidi)
foto tampak rumah tipe 36/124 perumahan Mulia Residence 2
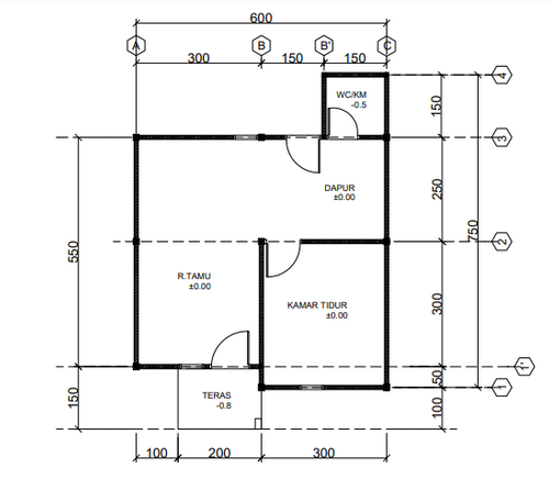
foto denah rumah tipe 36/124 perumahan Mulia Residence 2

Harga: Rp 164.500.000

Luas Bangunan: 36m 2

Luas Lahan: 124m 2

Kamar Tidur: 1

Kamar Mandi: 1

Spesifikasi Teknis

a. Atap
Kerangka Atap Menggunakan Kayu dan Penutup Atap Menggunakan Seng Metal dan List Plank GRC Motif

b. Dinding
Batako dan Plesteran Halus

c. Lantai & Pondasi
Finising Keramik & Sloof Beton Bertulang

4. Tipe 36/166 (subsidi)
foto tampak rumah tipe 36/166 perumahan Mulia Residence 2
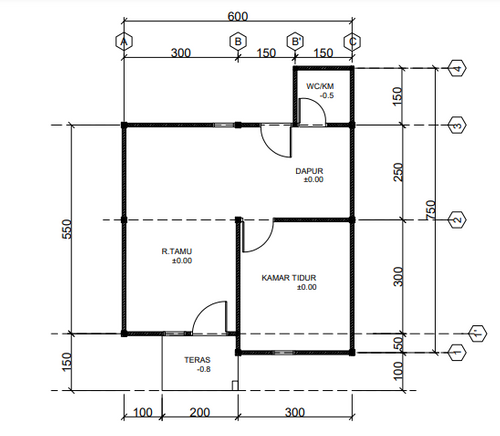
foto denah rumah tipe 36/166 perumahan Mulia Residence 2

Harga: Rp 164.500.000

Luas Bangunan: 36m 2

Luas Lahan: 166m 2

Kamar Tidur: 1

Kamar Mandi: 1

Spesifikasi Teknis

a. Atap
Kerangka Atap Menggunakan Kayu dan Penutup Atap Menggunakan Seng Metal dan List Plank GRC Motif

b. Dinding
Batako dan Plesteran Halus

c. Lantai & Pondasi
Finising Keramik & Sloof Beton Bertulang

5. Tipe 36/169 (subsidi)
foto tampak rumah tipe 36/169 perumahan Mulia Residence 2
foto denah rumah tipe 36/169 perumahan Mulia Residence 2

Harga: Rp 164.500.000

Luas Bangunan: 36m 2

Luas Lahan: 169m 2

Kamar Tidur: 1

Kamar Mandi: 1

Spesifikasi Teknis

a. Atap
Kerangka Atap Menggunakan Kayu dan Penutup Atap Menggunakan Seng Metal dan List Plank GRC Motif

b. Dinding
Batako dan Plesteran Halus

c. Lantai & Pondasi
Finising Keramik & Sloof Beton Bertulang

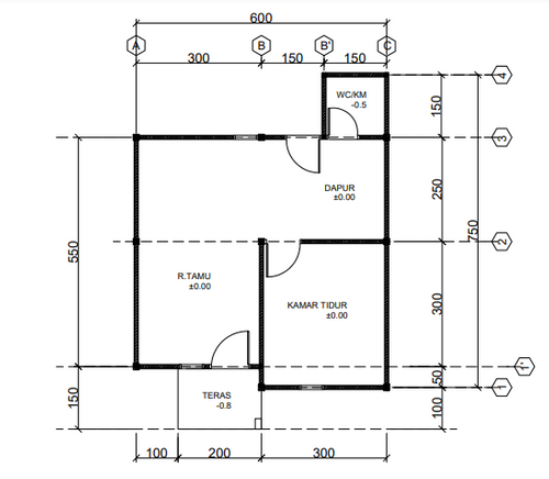
6. Tipe 36 (subsidi)
foto tampak rumah tipe 36 perumahan Mulia Residence 2
foto denah rumah tipe 36 perumahan Mulia Residence 2

Harga: Rp 182.000.000

Luas Bangunan: 36m 2

Luas Lahan: 126m 2

Kamar Tidur: 1

Kamar Mandi: 1

Spesifikasi Teknis

a. Atap
Rangka kayu atap genteng metal

b. Dinding
batako plester

c. Lantai & Pondasi
cor dan keramik & cakar ayam bertulang dan slop bertulang


Peta Lokasi


Kantor Pemasaran

Jl. Semai Gg. Persatuan, RT. 012 RW. 004, Kelurahan Bukit Batu, Kecamatan Singkawang Tengah, Kota Singkawang no. 15A KALIMANTAN BARAT, KOTA SINGKAWANG, Singkawang Tengah, Bukit Batu

Telp : 085247065665

Email : dutakarya1982@gmail.com

Website :