GRAND SEMAI CITY 2

ID Lokasi : SKW0410012023T001
KALIMANTAN BARAT, KOTA SINGKAWANG, Singkawang Utara, Sungai Garam Hilir
PASI RAYA PERSADA
REAL ESTATE INDONESIA (REI)


Status Rumah

Subsidi : 0 Unit

Terjual Subsidi : 25 Unit

Komersil : 0 Unit

Terjual Komersil : 14 Unit

Lihat Siteplan Digital

Peta Lokasi



Kantor Pemasaran

Jalan Ratu Sepudak no. 26 A KALIMANTAN BARAT, KOTA SINGKAWANG, Singkawang Utara, Sungai Garam Hilir

Telp : 089628122580

Email : andapropertiskw@gmail.com

Website :

Foto Lokasi


foto gerbang perumahan GRAND SEMAI CITY 2
Foto Gerbang/Jalan Utama
foto contoh rumah perumahan GRAND SEMAI CITY 2
Foto Rumah Contoh
foto posisi tengah perumahan GRAND SEMAI CITY 2
Foto Posisi Tengah Lokasi

Tipe Rumah


1. Tipe 36 (subsidi)
foto tampak rumah tipe 36 perumahan GRAND SEMAI CITY 2
foto denah rumah tipe 36 perumahan GRAND SEMAI CITY 2

Harga: Rp 182.000.000

Luas Bangunan: 36m 2

Luas Lahan: 115m 2

Kamar Tidur: 1

Kamar Mandi: 1

Spesifikasi Teknis

a. Atap
Baja Ringan dan Seng

b. Dinding
Batako Plester

c. Lantai & Pondasi
Keramik & Beton Bertulang

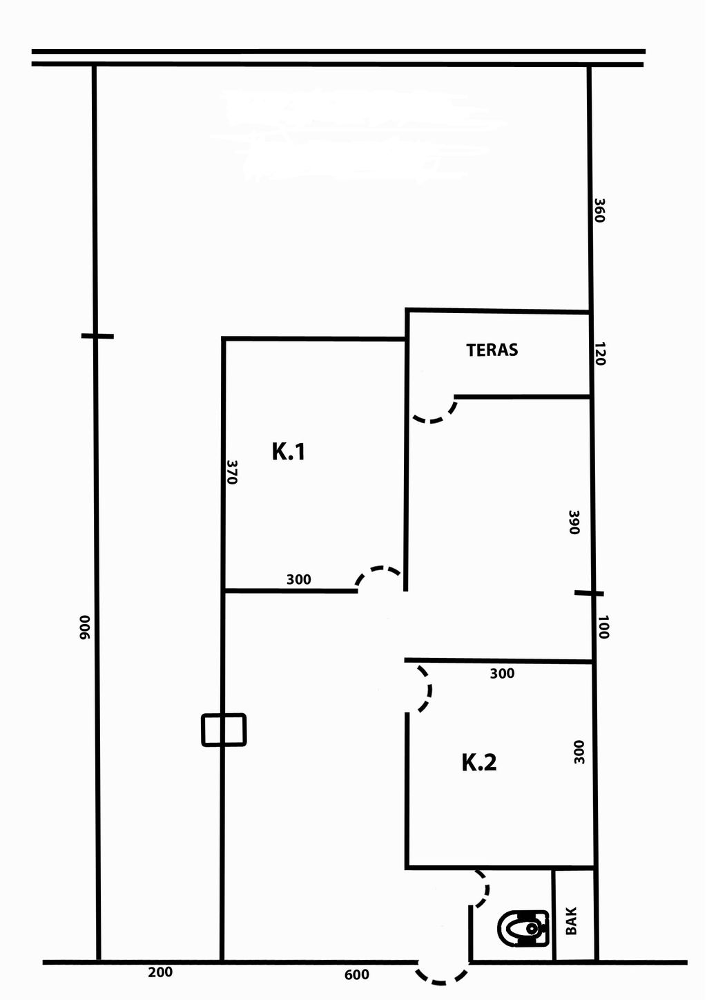
2. Tipe 54 (komersil)
foto tampak rumah tipe 54 perumahan GRAND SEMAI CITY 2
foto denah rumah tipe 54 perumahan GRAND SEMAI CITY 2

Harga: Rp 236.000.000

Luas Bangunan: 54m 2

Luas Lahan: 115m 2

Kamar Tidur: 2

Kamar Mandi: 1

Spesifikasi Teknis

a. Atap
Baja Ringan dan Seng

b. Dinding
Batako Plester

c. Lantai & Pondasi
Keramik & Beton Bertulang


Peta Lokasi


Kantor Pemasaran

Jalan Ratu Sepudak no. 26 A KALIMANTAN BARAT, KOTA SINGKAWANG, Singkawang Utara, Sungai Garam Hilir

Telp : 089628122580

Email : andapropertiskw@gmail.com

Website :