PALM SQUARE

ID Lokasi : SKW0410032021T004
KALIMANTAN BARAT, KOTA SINGKAWANG, Singkawang Utara, Sungai Bulan
JASMERAH
PROPERTY INDONESIA (PIN)


Status Rumah

Subsidi : 2 Unit

Terjual Subsidi : 32 Unit

Komersil : 0 Unit

Terjual Komersil : 0 Unit

Lihat Siteplan Digital

Peta Lokasi



Kantor Pemasaran

Jalan Tengah no. 34 KALIMANTAN BARAT, KOTA SINGKAWANG, Singkawang Barat, Tengah

Telp : 081225427182

Email : cv.jasmerah@gmail.com

Website :

Foto Lokasi


foto gerbang perumahan PALM SQUARE
Foto Gerbang/Jalan Utama
foto contoh rumah perumahan PALM SQUARE
Foto Rumah Contoh
foto posisi tengah perumahan PALM SQUARE
Foto Posisi Tengah Lokasi

Tipe Rumah


1. Tipe PS 36 (subsidi)
foto tampak rumah tipe PS 36 perumahan PALM SQUARE
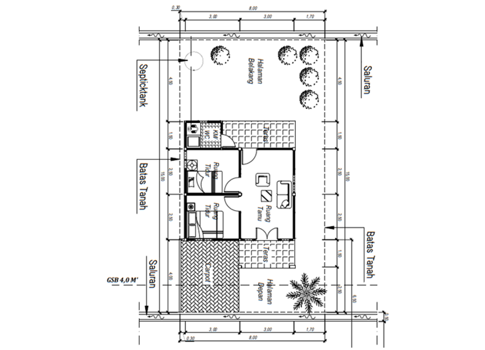
foto denah rumah tipe PS 36 perumahan PALM SQUARE

Harga: Rp 164.000.000

Luas Bangunan: 36m 2

Luas Lahan: 128m 2

Kamar Tidur: 2

Kamar Mandi: 1

Spesifikasi Teknis

a. Atap
Rangka Baja Ringan Penutup Atap Metal

b. Dinding
Batako diplester dan diaci

c. Lantai & Pondasi
Keramik & Cor Beton Bertulang


Peta Lokasi


Kantor Pemasaran

Jalan Tengah no. 34 KALIMANTAN BARAT, KOTA SINGKAWANG, Singkawang Barat, Tengah

Telp : 081225427182

Email : cv.jasmerah@gmail.com

Website :