ID Lokasi : SKY0120042025T002
SUMATERA SELATAN, KAB MUSI BANYUASIN, Sekayu, Kayu Ara
PT BERDIKARI BANGUN ABADI
REAL ESTATE INDONESIA
(REI)
Subsidi : 0 Unit
Terjual Subsidi : 0 Unit
Komersil : 11 Unit
Terjual Komersil : 0 Unit
Lihat Siteplan DigitalJln. Hokki Blok C no. 20 SUMATERA SELATAN, KOTA PALEMBANG, Ilir Barat I, Lorok Pakjo
Telp : 0711-3001075
Email : sikumbangbba2021@gmail.com
Website : ridgroup.id





Harga: Rp 499.000.000
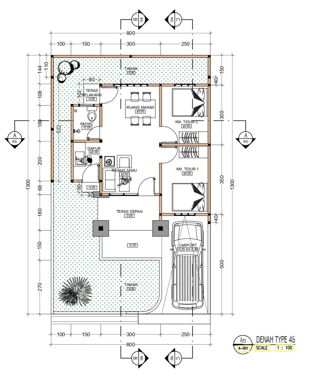
Luas Bangunan: 45m 2
Luas Lahan: 104m 2
Kamar Tidur: 2
Kamar Mandi: 1
a. Atap
KERANGKA BAJA ATAP MULTIROOF/SEJENISNYA
b. Dinding
BATU BATA MERAH PLASTER DAN CAT LUAR DALAM
c. Lantai & Pondasi
FULL KERAMIK & SLOOF COR BETON BERTULANG
Jln. Hokki Blok C no. 20 SUMATERA SELATAN, KOTA PALEMBANG, Ilir Barat I, Lorok Pakjo
Telp : 0711-3001075
Email : sikumbangbba2021@gmail.com
Website : ridgroup.id