ID Lokasi : SLW0920052025T001
JAWA TENGAH, KAB TEGAL, Pangkah, Penusupan
PT GRIYA SAMARA PERSADA
Himpunan Pengembang Permukiman dan Perumahan Rakyat
(HIMPERRA)
Subsidi : 252 Unit
Terjual Subsidi : 2 Unit
Komersil : 101 Unit
Terjual Komersil : 0 Unit
Lihat Siteplan Digital




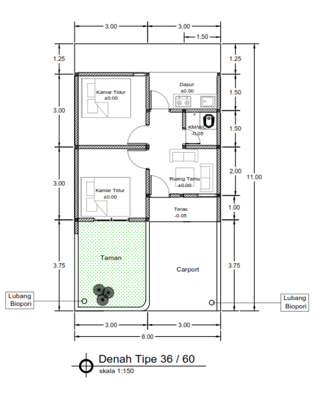
Harga: Rp 205.200.000
Luas Bangunan: 36m 2
Luas Lahan: 66m 2
Kamar Tidur: 2
Kamar Mandi: 1
a. Atap
Genteng Beton
b. Dinding
Bata Merah
c. Lantai & Pondasi
Keramik & Batu Belah


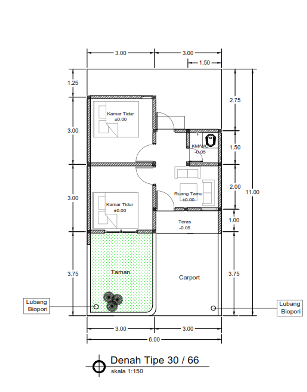
Harga: Rp 185.700.000
Luas Bangunan: 30m 2
Luas Lahan: 66m 2
Kamar Tidur: 2
Kamar Mandi: 1
a. Atap
Genteng
b. Dinding
Bata Merah
c. Lantai & Pondasi
Keramik & Batu Belah


Harga: Rp 166.000.000
Luas Bangunan: 30m 2
Luas Lahan: 60m 2
Kamar Tidur: 2
Kamar Mandi: 1
a. Atap
Genteng
b. Dinding
Bata Merah
c. Lantai & Pondasi
Keramik & Batu Belah