ID Lokasi : SLW0920052025T002
JAWA TENGAH, KAB TEGAL, Pangkah, Penusupan
PT MARIS BANGUN NASIONAL
PERKUMPULAN ASOSIASI PENGEMBANG PERUMAHAN DAN PERMUKIMAN SELURUH INDONESIA
(APERSI)
Subsidi : 73 Unit
Terjual Subsidi : 64 Unit
Komersil : 0 Unit
Terjual Komersil : 0 Unit
Lihat Siteplan DigitalMarison Regency Tegal, Kel. Penusupan, Kec. Pangkah, Kab. Tegal no. A-01 JAWA TENGAH, KAB TEGAL, Pangkah, Penusupan
Telp : 085122656605
Email : marisontegal@gmail.com
Website : https://www.marison.id/





Harga: Rp 166.000.000
Luas Bangunan: 30m 2
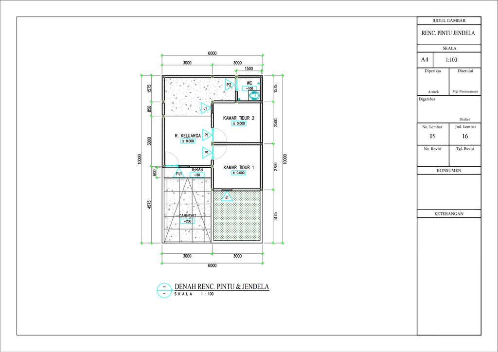
Luas Lahan: 60m 2
Kamar Tidur: 2
Kamar Mandi: 1
a. Atap
Galvalum Pasir
b. Dinding
Bata Merah
c. Lantai & Pondasi
Keramik & Batu Kali


Harga: Rp 166.000.000
Luas Bangunan: 30m 2
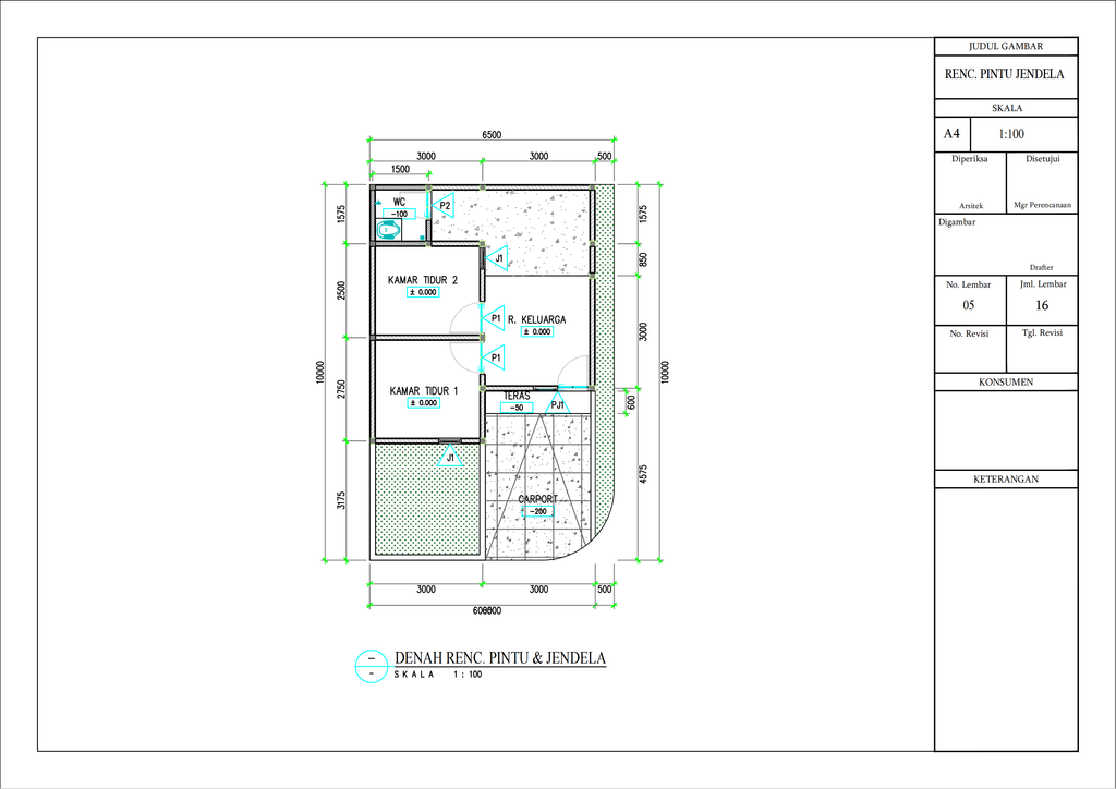
Luas Lahan: 79m 2
Kamar Tidur: 2
Kamar Mandi: 1
a. Atap
Galvalum Pasir
b. Dinding
Bata Merah
c. Lantai & Pondasi
Keramik & Batu Kali


Harga: Rp 166.000.000
Luas Bangunan: 30m 2
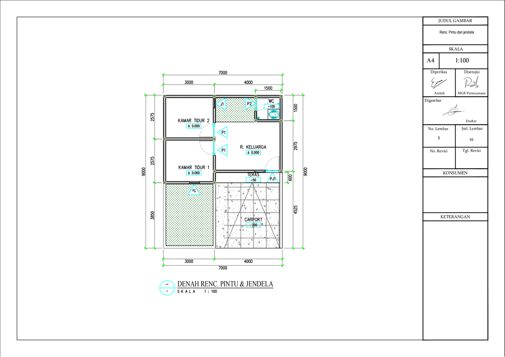
Luas Lahan: 64m 2
Kamar Tidur: 2
Kamar Mandi: 1
a. Atap
Galvalum Pasir
b. Dinding
Bata Merah
c. Lantai & Pondasi
Keramik & Batu Alam


Harga: Rp 166.000.000
Luas Bangunan: 30m 2
Luas Lahan: 78m 2
Kamar Tidur: 2
Kamar Mandi: 1
a. Atap
Galvalum Pasir
b. Dinding
Bata Merah
c. Lantai & Pondasi
Keramik & Batu Kali


Harga: Rp 166.000.000
Luas Bangunan: 30m 2
Luas Lahan: 63m 2
Kamar Tidur: 2
Kamar Mandi: 1
a. Atap
Galvalum pasir
b. Dinding
Bata merah
c. Lantai & Pondasi
keramik & Batu kali
Marison Regency Tegal, Kel. Penusupan, Kec. Pangkah, Kab. Tegal no. A-01 JAWA TENGAH, KAB TEGAL, Pangkah, Penusupan
Telp : 085122656605
Email : marisontegal@gmail.com
Website : https://www.marison.id/