Nura Asri

ID Lokasi : SLW1020022025T001
JAWA TENGAH, KAB TEGAL, Slawi, Dukuhwringin
NURA ABADI
Himpunan Pengembang Permukiman dan Perumahan Rakyat (HIMPERRA)


Status Rumah

Subsidi : 14 Unit

Terjual Subsidi : 9 Unit

Komersil : 1 Unit

Terjual Komersil : 0 Unit

Lihat Siteplan Digital

Peta Lokasi



Kantor Pemasaran

Jln. WR. Supratman - Perumahan Griya Indah RT 5 RW 3 no. A3-4 JAWA TENGAH, KAB TEGAL, Slawi, Dukuhwringin

Telp : 085742714708

Email : pt.nuraabadi@gmail.com

Website :

Foto Lokasi


foto gerbang perumahan Nura Asri
Foto Gerbang/Jalan Utama
foto contoh rumah perumahan Nura Asri
Foto Rumah Contoh
foto posisi tengah perumahan Nura Asri
Foto Posisi Tengah Lokasi

Tipe Rumah


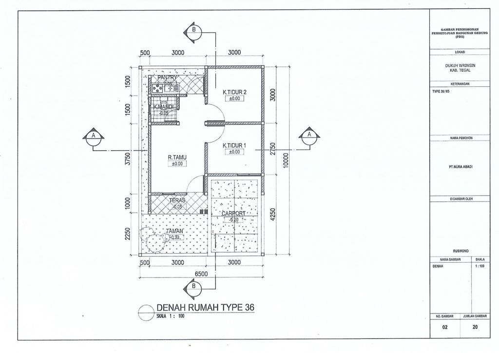
1. Tipe 36 (subsidi)
foto tampak rumah tipe 36 perumahan Nura Asri
foto denah rumah tipe 36 perumahan Nura Asri

Harga: Rp 166.000.000

Luas Bangunan: 36m 2

Luas Lahan: 60m 2

Kamar Tidur: 2

Kamar Mandi: 1

Spesifikasi Teknis

a. Atap
Atap menggunakan genteng metal dengan rangka baja ringan.

b. Dinding
Pasangan batu harbel dilapisi acian.

c. Lantai & Pondasi
Keramik ukuran 40*40 cm & Pasangan batu kali.

2. Tipe 42 (komersil)
foto tampak rumah tipe 42 perumahan Nura Asri
foto denah rumah tipe 42 perumahan Nura Asri

Harga: Rp 250.000.000

Luas Bangunan: 42m 2

Luas Lahan: 70m 2

Kamar Tidur: 2

Kamar Mandi: 1

Spesifikasi Teknis

a. Atap
Atap menggunakan genteng metal dengan kerangka baja ringan.

b. Dinding
Dinding pasangan bata herbel.

c. Lantai & Pondasi
Lantai keramik & Pasangan batu kali.


Peta Lokasi


Kantor Pemasaran

Jln. WR. Supratman - Perumahan Griya Indah RT 5 RW 3 no. A3-4 JAWA TENGAH, KAB TEGAL, Slawi, Dukuhwringin

Telp : 085742714708

Email : pt.nuraabadi@gmail.com

Website :