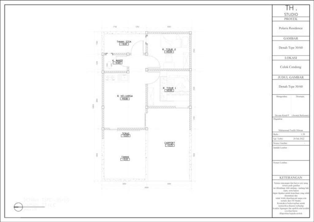
ID Lokasi : SMD1120102023T001
JAWA BARAT, KAB SUMEDANG, Tanjungsari, Gunung Manik
PT ALTHA LAND PROPERTY
ASOSIASI PENGEMBANG RUMAH SEDERHANA SEHAT NASIONAL
(APERNAS)
Subsidi : 137 Unit
Terjual Subsidi : 152 Unit
Komersil : 0 Unit
Terjual Komersil : 0 Unit
Lihat Siteplan Digitalj=Jl. Colokcondong Dusun Ranjeng Rt. 02 Rw. 05 no. 1-2 JAWA BARAT, KAB SUMEDANG, Tanjungsari, Gunung Manik
Telp : 022-7910559
Email : residencepolaris@gmail.com
Website : www.althaproperty.co.id





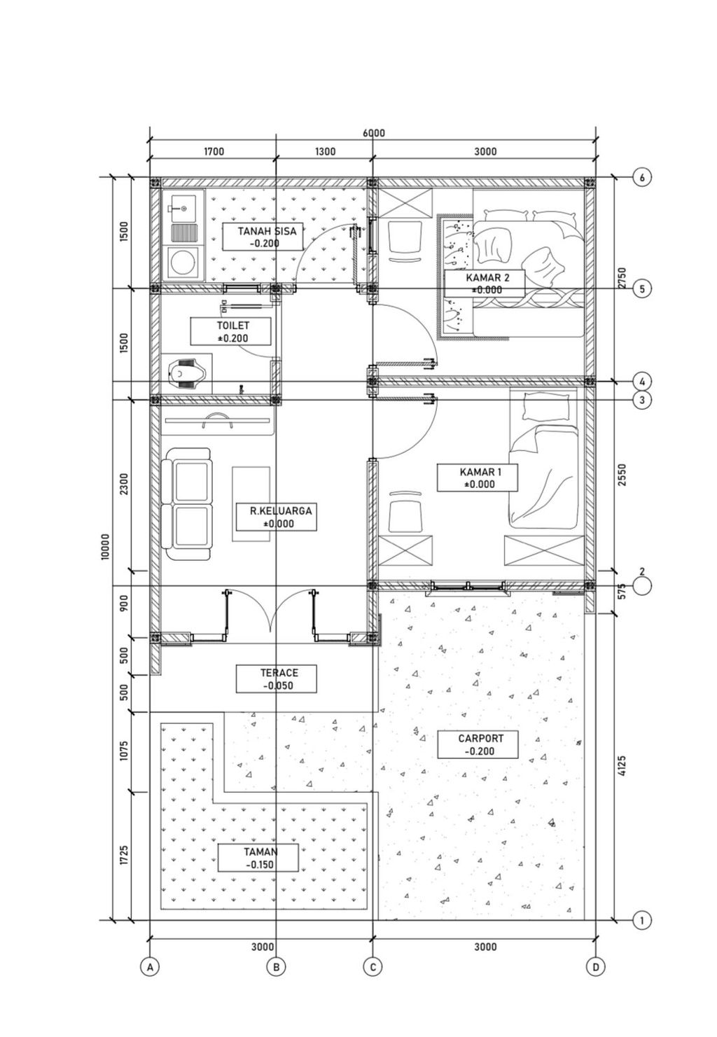
Harga: Rp 150.500.000
Luas Bangunan: 30m 2
Luas Lahan: 60m 2
Kamar Tidur: 2
Kamar Mandi: 1
a. Atap
Rangka atap baja ringan
b. Dinding
double dinding bermateri bata merah
c. Lantai & Pondasi
keramik lantai 40x40
keramik kamar mandi 20x20 & batu kali dan corsloof


Harga: Rp 150.500.000
Luas Bangunan: 30m 2
Luas Lahan: 60m 2
Kamar Tidur: 2
Kamar Mandi: 1
a. Atap
Rangka Atao Baja Ringan
b. Dinding
Double Dinding Bermateri Bata Merah
c. Lantai & Pondasi
lantai keramik 40x40
lantai kamar mandi 20x20 & batu kali dan corsloof


Harga: Rp 150.500.000
Luas Bangunan: 30m 2
Luas Lahan: 60m 2
Kamar Tidur: 2
Kamar Mandi: 1
a. Atap
Rangka atap baja ringan
b. Dinding
double dinding bermateri bata merah
c. Lantai & Pondasi
keramik lantai 40x40
keramik kamar mandi 20x20 & batu kali dan corsloof


Harga: Rp 165.999.999
Luas Bangunan: 30m 2
Luas Lahan: 60m 2
Kamar Tidur: 2
Kamar Mandi: 1
a. Atap
Baja Ringan dan Genteng merah
b. Dinding
Bata merah dan double dinding
c. Lantai & Pondasi
keramik 40x40 & pondasi batu kali dan coorslof


Harga: Rp 166.000.000
Luas Bangunan: 30m 2
Luas Lahan: 60m 2
Kamar Tidur: 2
Kamar Mandi: 1
a. Atap
BAJARINGAN
b. Dinding
BATA MERAH
c. Lantai & Pondasi
KRAMIK & BATU KALI


Harga: Rp 166.000.000
Luas Bangunan: 30m 2
Luas Lahan: 60m 2
Kamar Tidur: 2
Kamar Mandi: 1
a. Atap
Rangka Atap Baja Ringan
b. Dinding
Double Dinding Bermateri Bata Merah
c. Lantai & Pondasi
Lantai Keramik 40x40 lantai kamar mandi 20x20 & Batu kali dan corsloof
j=Jl. Colokcondong Dusun Ranjeng Rt. 02 Rw. 05 no. 1-2 JAWA BARAT, KAB SUMEDANG, Tanjungsari, Gunung Manik
Telp : 022-7910559
Email : residencepolaris@gmail.com
Website : www.althaproperty.co.id