ID Lokasi : SMG1410082023T001
JAWA TENGAH, KOTA SEMARANG, Mijen, Mijen
PT KARYADEKA ALAM LESTARI
REAL ESTATE INDONESIA
(REI)
Subsidi : 0 Unit
Terjual Subsidi : 0 Unit
Komersil : 17 Unit
Terjual Komersil : 10 Unit
Lihat Siteplan DigitalJl. RM Hadi Soebeno Sosrowardoyo Blok G9 No.2 no. 2 JAWA TENGAH, KOTA SEMARANG, Mijen, Pesantren
Telp : 0247711111
Email : sales.admin@bsb.city
Website : bsbcity.com





Harga: Rp 1.452.453.448
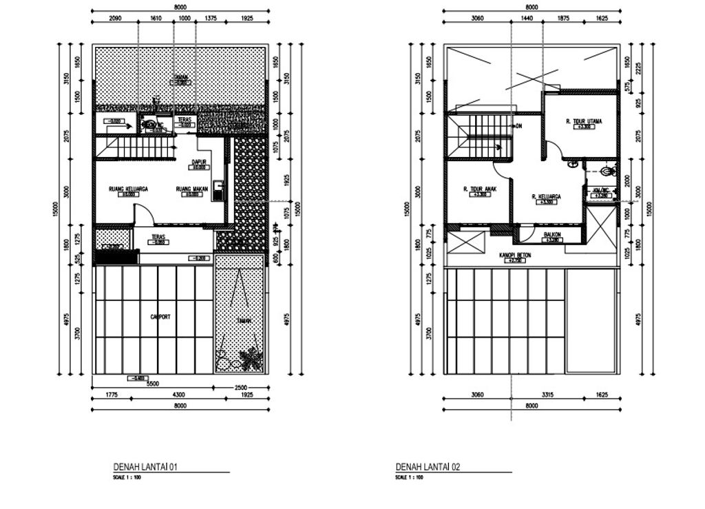
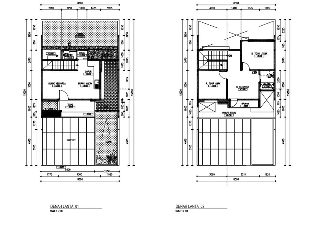
Luas Bangunan: 89m 2
Luas Lahan: 120m 2
Kamar Tidur: 3
Kamar Mandi: 2
a. Atap
Genteng Beton, Baja Ringan, Interior Gypsum Board, Eksterior GRC Board
b. Dinding
Bata Merah & Aci
c. Lantai & Pondasi
Granite Tile & Batu Kali & Footplat


Harga: Rp 1.538.110.828
Luas Bangunan: 82m 2
Luas Lahan: 120m 2
Kamar Tidur: 3
Kamar Mandi: 2
a. Atap
Genteng Beton, Baja Ringan Interior Gypsum Board, Eksterior GRC Board
b. Dinding
Bata Merah dan Aci
c. Lantai & Pondasi
Granite Tile & Batu kali dan Footplat


Harga: Rp 1.880.172.414
Luas Bangunan: 96m 2
Luas Lahan: 159m 2
Kamar Tidur: 3
Kamar Mandi: 2
a. Atap
Genteng Beton, Baja ringan Interior Gypsum Board Eksterior GRC Board
b. Dinding
Bata Merah dan Aci
c. Lantai & Pondasi
Granite Tile & Batu Kali dan Footplat


Harga: Rp 1.766.000.000
Luas Bangunan: 82m 2
Luas Lahan: 120m 2
Kamar Tidur: 3
Kamar Mandi: 2
a. Atap
Genteng Beton, Baja Ringan, Plafon Interior Gypsum Boar Eksterior GRC Board
b. Dinding
Bata Merah Pelester + Aci
c. Lantai & Pondasi
Granit Tile & Batu kali dan footplat


Harga: Rp 1.750.000.000
Luas Bangunan: 82m 2
Luas Lahan: 120m 2
Kamar Tidur: 3
Kamar Mandi: 2
a. Atap
Penutup atap Genteng Beton Rangka atap Baja Ringan
Plafon Interior Gypsum Board Eksterior GRC Board
b. Dinding
Dinding Bata merah plester dan aci
Dinding KM Keramik
c. Lantai & Pondasi
Lantai Ruang utama Granite Tile
Lantai kM Keramik & Pondasi Batu kali & Footplat


Harga: Rp 1.756.987.692
Luas Bangunan: 70m 2
Luas Lahan: 120m 2
Kamar Tidur: 2
Kamar Mandi: 2
a. Atap
Baja Ringan, Genteng Beton, Interior Gypsum Board, Eksterior GRC Board
b. Dinding
Bata Merah Plester+Aci
c. Lantai & Pondasi
Granite Tile & Batu Kali + Footplat


Harga: Rp 2.197.015.788
Luas Bangunan: 82m 2
Luas Lahan: 150m 2
Kamar Tidur: 3
Kamar Mandi: 2
a. Atap
Genteng Beton, Baja Ringan, Interior Gypsum Board Eksterior GRC Board
b. Dinding
Bata Merah Plester + Acig
c. Lantai & Pondasi
Granite Tile & Batu Kali + Footplat


Harga: Rp 1.927.226.347
Luas Bangunan: 82m 2
Luas Lahan: 120m 2
Kamar Tidur: 3
Kamar Mandi: 2
a. Atap
Genteng Beton, Baja Ringan, Interior Gypsum Board Eksterior GRC Board
b. Dinding
Bata Merah plester + Aci
c. Lantai & Pondasi
Granit Tile & Batu Kali + Footplat


Harga: Rp 1.921.461.962
Luas Bangunan: 82m 2
Luas Lahan: 120m 2
Kamar Tidur: 3
Kamar Mandi: 2
a. Atap
Genteng Beton, Baja Ringan, Interior Gypsum Board Eksterior GRC Board
b. Dinding
Bata Merah plester + Aci
c. Lantai & Pondasi
Granite Tile & Batu Kali + Footplat


Harga: Rp 1.915.714.817
Luas Bangunan: 82m 2
Luas Lahan: 120m 2
Kamar Tidur: 3
Kamar Mandi: 2
a. Atap
Genteng Beton, Baja Ringan, Interior Gypsum Board Eksterior GRC Board
b. Dinding
Bata Merah plester + Aci
c. Lantai & Pondasi
Granite Tile & Batu Kali + Footplat


Harga: Rp 1.909.984.863
Luas Bangunan: 82m 2
Luas Lahan: 120m 2
Kamar Tidur: 3
Kamar Mandi: 2
a. Atap
Genteng Beton, Baja Ringan, Interior Gypsum Board Eksterior GRC Board
b. Dinding
Bata Merah plester + Aci
c. Lantai & Pondasi
Granite Tile & Batu Kali + Footplat


Harga: Rp 2.937.088.817
Luas Bangunan: 82m 2
Luas Lahan: 165m 2
Kamar Tidur: 3
Kamar Mandi: 2
a. Atap
Genteng Beton, Baja Ringan, Interior Gypsum Board Eksterior GRC Board
b. Dinding
Bata Merah plester + Aci
c. Lantai & Pondasi
Granite Tile & Batu Kali + Footplat


Harga: Rp 2.998.862.527
Luas Bangunan: 70m 2
Luas Lahan: 174m 2
Kamar Tidur: 2
Kamar Mandi: 2
a. Atap
enteng Beton, Baja Ringan, Interior Gypsum Board Eksterior GRC Board
b. Dinding
Bata Merah plester + Aci
c. Lantai & Pondasi
Granite Tile & Batu Kali + Footplat


Harga: Rp 2.455.454.648
Luas Bangunan: 96m 2
Luas Lahan: 159m 2
Kamar Tidur: 3
Kamar Mandi: 2
a. Atap
Genteng Beton, Baja Ringan
b. Dinding
Bata merah plester, aci
c. Lantai & Pondasi
Granite Tile & Batu kali, footplat


Harga: Rp 2.553.672.834
Luas Bangunan: 96m 2
Luas Lahan: 159m 2
Kamar Tidur: 3
Kamar Mandi: 2
a. Atap
Genteng Beton, Rangka atap Baja Ringan
b. Dinding
Bata merah plester dan aci
c. Lantai & Pondasi
Granite Tile & Batu kali + Footplat


Harga: Rp 1.554.156.254
Luas Bangunan: 65m 2
Luas Lahan: 120m 2
Kamar Tidur: 2
Kamar Mandi: 1
a. Atap
Penutup atap Genteng Beton
Rangka atap Baja Ringan
Plafon Interior Gypsum Board, eksterior GRC Board
b. Dinding
Bata Merag plester Aci
c. Lantai & Pondasi
Granite Tile & Batu kali + Footplat struktur Konstruksi Beton


Harga: Rp 2.050.816.697
Luas Bangunan: 82m 2
Luas Lahan: 120m 2
Kamar Tidur: 3
Kamar Mandi: 2
a. Atap
Genteng Beton Rangka atapbaja ringan
b. Dinding
Bata merah plester +Aci
c. Lantai & Pondasi
Granite Tile & Batu Kali + Footplat
Jl. RM Hadi Soebeno Sosrowardoyo Blok G9 No.2 no. 2 JAWA TENGAH, KOTA SEMARANG, Mijen, Pesantren
Telp : 0247711111
Email : sales.admin@bsb.city
Website : bsbcity.com