ID Lokasi : SMR0610042025T001
KALIMANTAN TIMUR, KOTA SAMARINDA, Sungai Kunjang, Lok Bahu
PT GRIYA RAYYAN DEVELOPMENT
Himpunan Pengembang Permukiman dan Perumahan Rakyat
(HIMPERRA)
Subsidi : 10 Unit
Terjual Subsidi : 27 Unit
Komersil : 0 Unit
Terjual Komersil : 0 Unit
Lihat Siteplan Digital




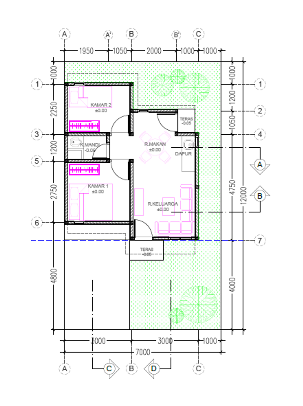
Harga: Rp 182.000.000
Luas Bangunan: 36m 2
Luas Lahan: 84m 2
Kamar Tidur: 2
Kamar Mandi: 1
a. Atap
Spandek
b. Dinding
Batako Full Finish
c. Lantai & Pondasi
Keramik 40x40 & Batu Padas Kolom Beton