ID Lokasi : SNT0120072023T001
JAMBI, KAB MUARO JAMBI, Jambi Luar Kota, Pematang Gajah
PT ARZA PUTRA WAHID PERSADA
PERKUMPULAN ASOSIASI PENGEMBANG PERUMAHAN DAN PERMUKIMAN SELURUH INDONESIA
(APERSI)
Subsidi : 69 Unit
Terjual Subsidi : 79 Unit
Komersil : 0 Unit
Terjual Komersil : 0 Unit
Lihat Siteplan DigitalJLN.JAMBI MUARA BULIAN KM.13 no. 00 JAMBI, KAB MUARO JAMBI, Jambi Luar Kota, Mendalo Darat
Telp : 081324276933
Email : apwp01@gmail.com
Website : -





Harga: Rp 150.500.000
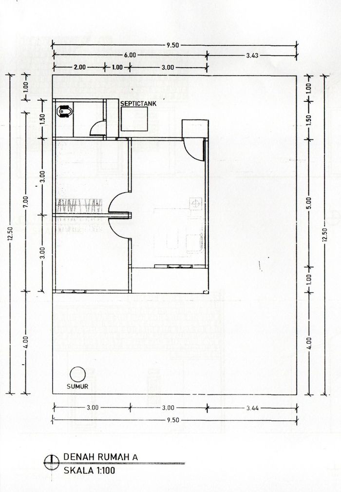
Luas Bangunan: 36m 2
Luas Lahan: 118m 2
Kamar Tidur: 2
Kamar Mandi: 1
a. Atap
multiroof
b. Dinding
batu bata, palster, plamir, full cat
c. Lantai & Pondasi
keramik & batu bata


Harga: Rp 166.000.000
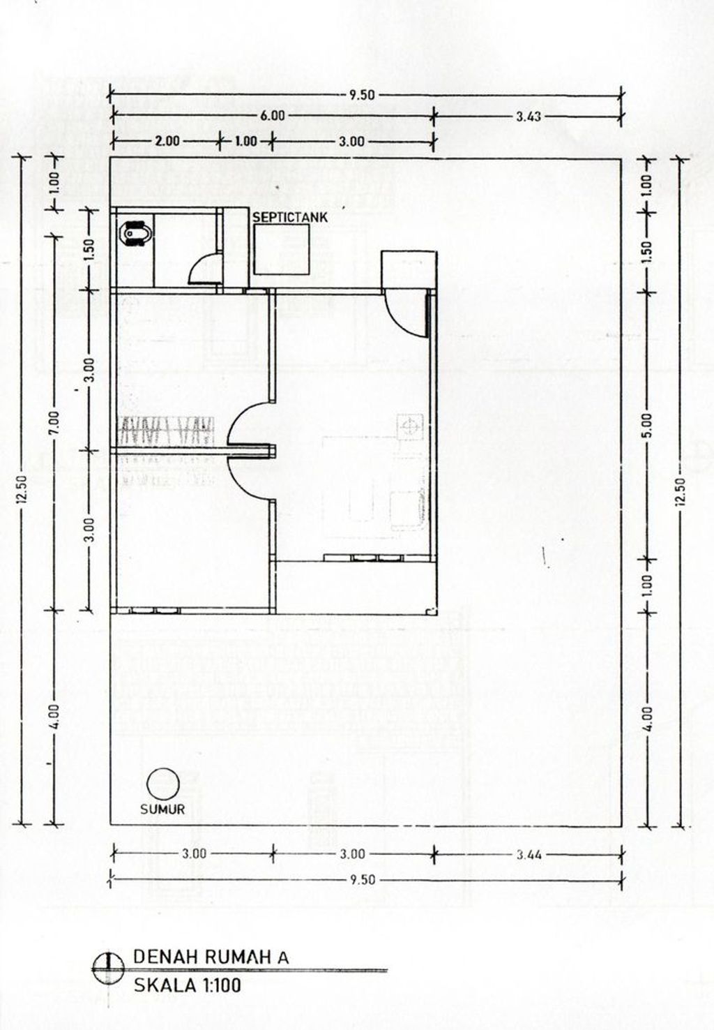
Luas Bangunan: 36m 2
Luas Lahan: 118m 2
Kamar Tidur: 2
Kamar Mandi: 1
a. Atap
Seng Metal
b. Dinding
Batu Bata, Full Cat
c. Lantai & Pondasi
Keramik & Beton Bertulang
JLN.JAMBI MUARA BULIAN KM.13 no. 00 JAMBI, KAB MUARO JAMBI, Jambi Luar Kota, Mendalo Darat
Telp : 081324276933
Email : apwp01@gmail.com
Website : -