ID Lokasi : SNT0620052020T016
JAMBI, KAB MUARO JAMBI, Kumpeh Ulu, Kasang Pudak
PT PANTASIRU LEGUNA TIJAR
PERKUMPULAN ASOSIASI PENGEMBANG PERUMAHAN DAN PERMUKIMAN SELURUH INDONESIA
(APERSI)
Subsidi : 7 Unit
Terjual Subsidi : 26 Unit
Komersil : 2 Unit
Terjual Komersil : 14 Unit
Lihat Siteplan Digital




Harga: Rp 130.000.000
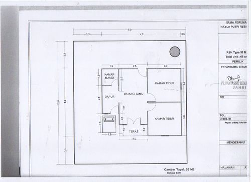
Luas Bangunan: 36m 2
Luas Lahan: 108m 2
Kamar Tidur: 2
Kamar Mandi: 1
a. Atap
spandek lurus, rangka baja ringan
b. Dinding
batu bata diplaster dan dicat
c. Lantai & Pondasi
Tapak Beton lapis keramik & tapak beton bertulang