ID Lokasi : SNT0620052023T005
JAMBI, KAB MUARO JAMBI, Kumpeh Ulu, Kasang Pudak
PT SELINCAH MANDIRI SEJAHTERA
PERKUMPULAN ASOSIASI PENGEMBANG PERUMAHAN DAN PERMUKIMAN SELURUH INDONESIA
(APERSI)
Subsidi : 4 Unit
Terjual Subsidi : 24 Unit
Komersil : 0 Unit
Terjual Komersil : 0 Unit
Lihat Siteplan Digital

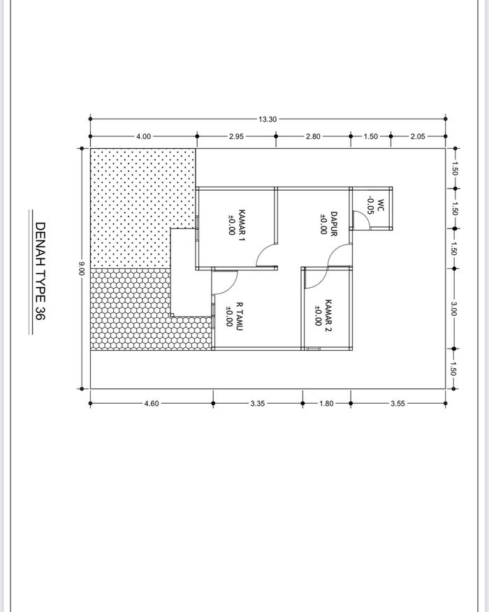
Harga: Rp 150.500.000
Luas Bangunan: 36m 2
Luas Lahan: 105m 2
Kamar Tidur: 2
Kamar Mandi: 1
a. Atap
multirup
b. Dinding
bata plester cat
c. Lantai & Pondasi
keramik & batu bata