ID Lokasi : SNT0820132023T010
JAMBI, KAB MUARO JAMBI, Sungai Gelam, Mekar Jaya
REZEKI FALIN MELATI
REAL ESTATE INDONESIA
(REI)
Subsidi : 6 Unit
Terjual Subsidi : 3 Unit
Komersil : 0 Unit
Terjual Komersil : 0 Unit
Lihat Siteplan Digital




Harga: Rp 162.000.000
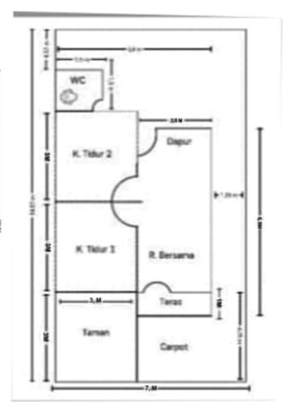
Luas Bangunan: 36m 2
Luas Lahan: 100m 2
Kamar Tidur: 2
Kamar Mandi: 1
a. Atap
METAL ROOP
b. Dinding
CAT
c. Lantai & Pondasi
KERAMIK & COR SLOOP