ID Lokasi : SOR0820012025T005
JAWA BARAT, KAB BANDUNG, Bojongsoang, Lengkong
PT PESONA MITRA KEMBAR MAS
REAL ESTATE INDONESIA
(REI)
Subsidi : 0 Unit
Terjual Subsidi : 0 Unit
Komersil : 23 Unit
Terjual Komersil : 8 Unit
Lihat Siteplan DigitalJalan Podomoro Boulevard Utara no. 1 JAWA BARAT, KAB BANDUNG, Bojongsoang, Lengkong
Telp : 022-71520888
Email : accounting.tax@podomoropark.com
Website : www.podomoropark.com





Harga: Rp 1.229.500.000
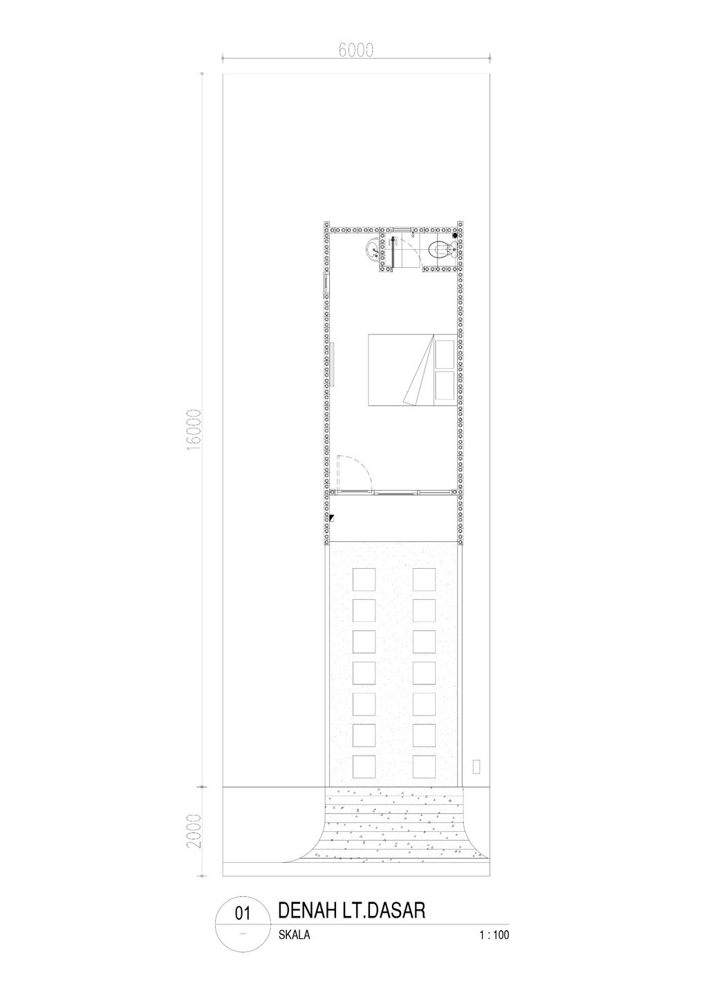
Luas Bangunan: 21m 2
Luas Lahan: 96m 2
Kamar Tidur: 1
Kamar Mandi: 1
a. Atap
Rangka Atap : Baja Ringan
Penutup Atap : Spandek Pasir
b. Dinding
Bata Interlock
c. Lantai & Pondasi
Ruang Utama : Keramik
KM Utama & WC : Keramik
Carport : Stepping Concrete & Pondasi Setempat
Jalan Podomoro Boulevard Utara no. 1 JAWA BARAT, KAB BANDUNG, Bojongsoang, Lengkong
Telp : 022-71520888
Email : accounting.tax@podomoropark.com
Website : www.podomoropark.com