ID Lokasi : SOR1020022026T001
JAWA BARAT, KAB BANDUNG, Margaasih, Lagadar
PT SURYA KHARISMA PARAHYANGAN
PERKUMPULAN ASOSIASI PENGEMBANG PERUMAHAN DAN PERMUKIMAN SELURUH INDONESIA
(APERSI)
Subsidi : 0 Unit
Terjual Subsidi : 0 Unit
Komersil : 28 Unit
Terjual Komersil : 0 Unit
Lihat Siteplan DigitalJL. NANJUNG - LAGADAR no. - JAWA BARAT, KAB BANDUNG, Margaasih, Lagadar
Telp : 081122335757
Email : ptsuryakharismaparahyangan@gmail.com
Website : www.parahyangangardencity.com





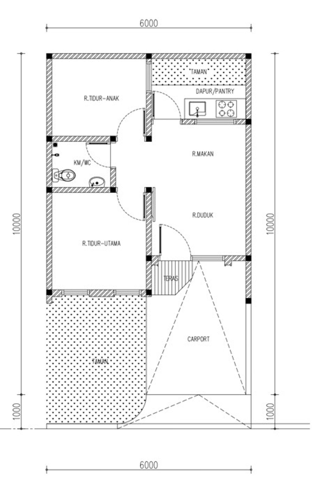
Harga: Rp 642.918.000
Luas Bangunan: 36m 2
Luas Lahan: 60m 2
Kamar Tidur: 2
Kamar Mandi: 1
a. Atap
Rangka Atap : Rangka Baja Ringan
Penutup Atap : Genteng Beton
b. Dinding
Dinding Luar : Bata Ringan
Dinding Dalam : Bata Ringan
c. Lantai & Pondasi
Ruang Dalam : Homogenius Tile 60x60
Kamar Mandi : Keramik 25x25
Balkon dan Teras : Keramik 30x30 & Pondasi : Batu Kali


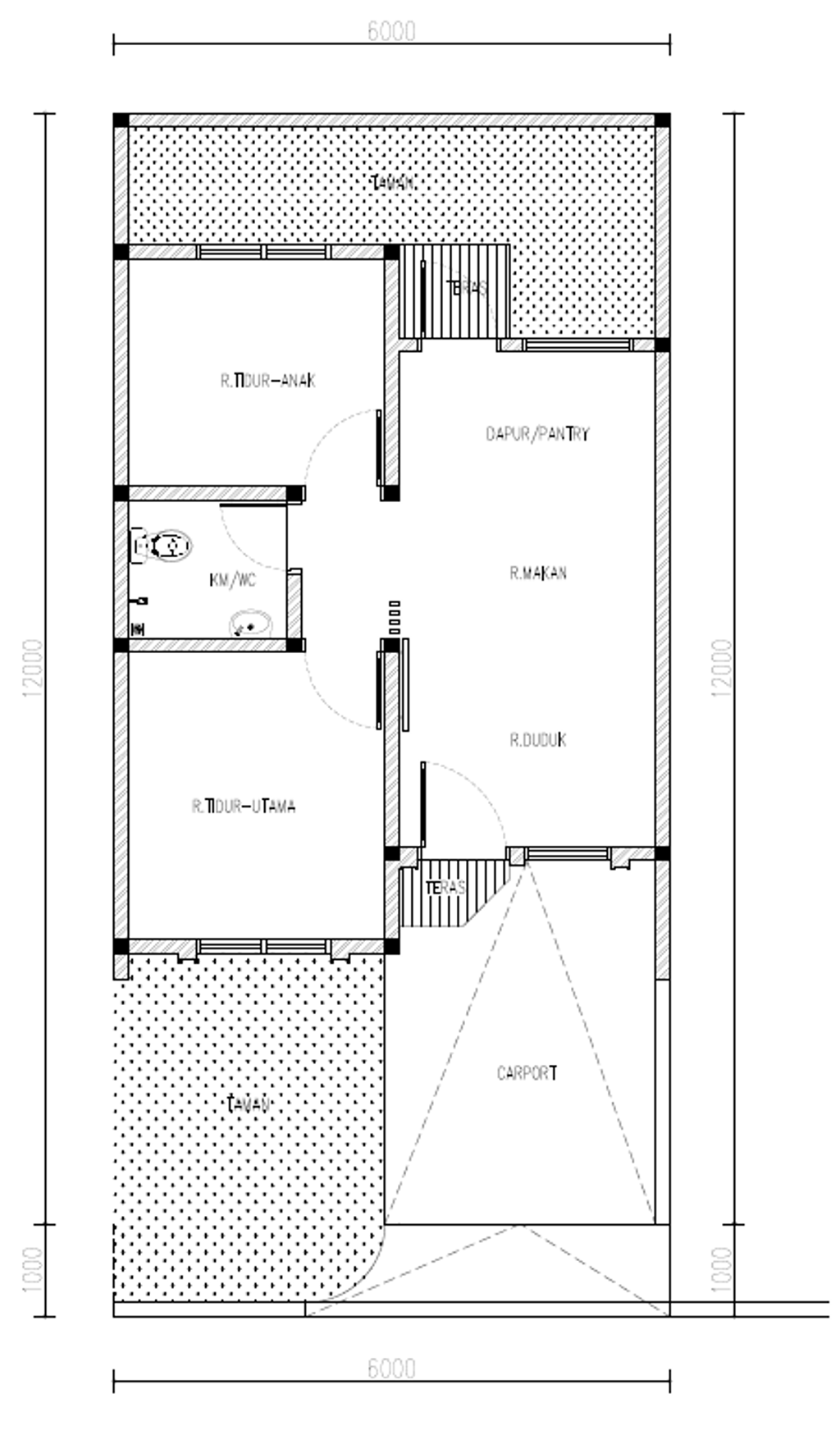
Harga: Rp 740.925.000
Luas Bangunan: 40m 2
Luas Lahan: 72m 2
Kamar Tidur: 2
Kamar Mandi: 1
a. Atap
Rangka Atap : Rangka Baja Ringan
Penutup Atap : Genteng Beton
b. Dinding
Ruang Dalam : Plester Aci dan Cat
Kamar Mandi : Plester Aci Cat dan Keramik
Luar : Plester Aci dan Cat Weather Shield
c. Lantai & Pondasi
Ruang Dalam : Homogenius Tile 60x60
Kamar Mandi : Keramik 25x25
Balkon dan Teras : Keramik 30x30 & PONDASI : Batu Kali


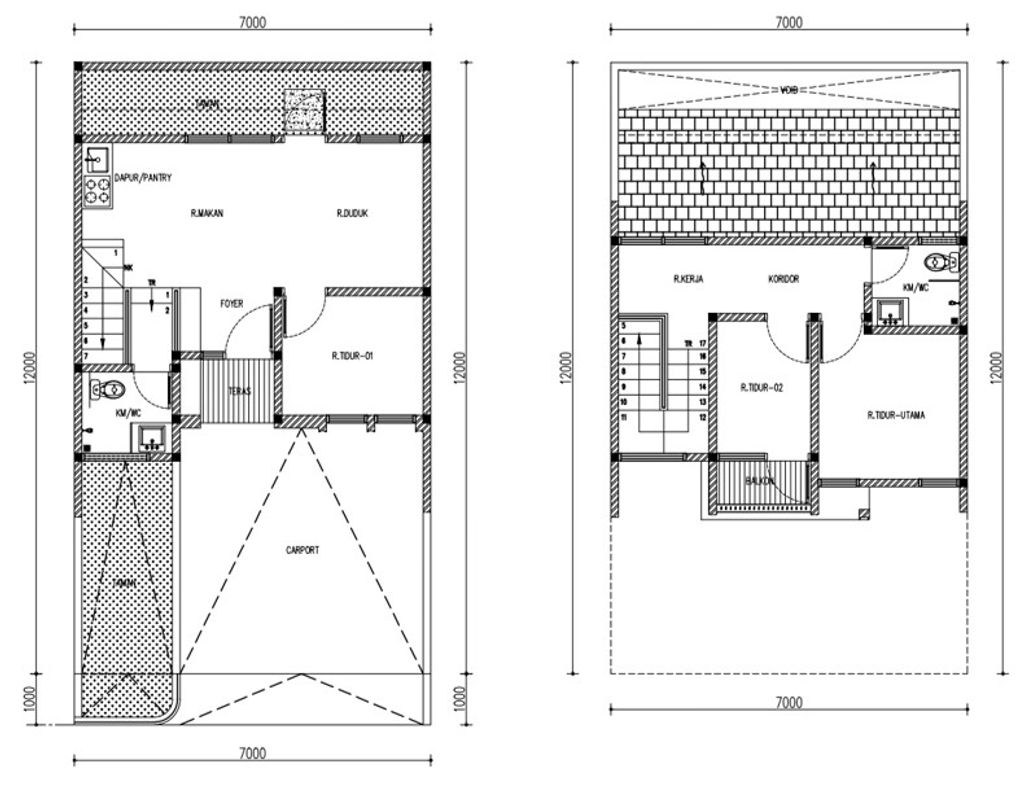
Harga: Rp 1.083.804.000
Luas Bangunan: 71m 2
Luas Lahan: 84m 2
Kamar Tidur: 3
Kamar Mandi: 2
a. Atap
Rangka Atap : Rangka Baja Ringan
Penutup Atap : Genteng Beton
b. Dinding
Ruang Dalam : Plester Aci dan Cat
Kamar Mandi : Plester Aci Cat dan Keramik
Luar : Plester Aci dan Cat Weather Shield
c. Lantai & Pondasi
Ruang Dalam : Homogenius Tile 60x60
Kamar Mandi : Keramik 25x25
Balkon dan Teras : Keramik 30x30
& PONDASI : Batu Kali
JL. NANJUNG - LAGADAR no. - JAWA BARAT, KAB BANDUNG, Margaasih, Lagadar
Telp : 081122335757
Email : ptsuryakharismaparahyangan@gmail.com
Website : www.parahyangangardencity.com