ID Lokasi : SOR1120082021T001
JAWA BARAT, KAB BANDUNG, Katapang, Pangauban
PT PAJAJARAN MULIA JAYA
REAL ESTATE INDONESIA
(REI)
Subsidi : 0 Unit
Terjual Subsidi : 0 Unit
Komersil : 0 Unit
Terjual Komersil : 22 Unit
Lihat Siteplan DigitalJl. Raya Kopo Soreang no. 84 JAWA BARAT, KAB BANDUNG, Soreang, Sekarwangi
Telp : 081232385000
Email : admin@ganproperti.com
Website : www.ganproperti.com





Harga: Rp 430
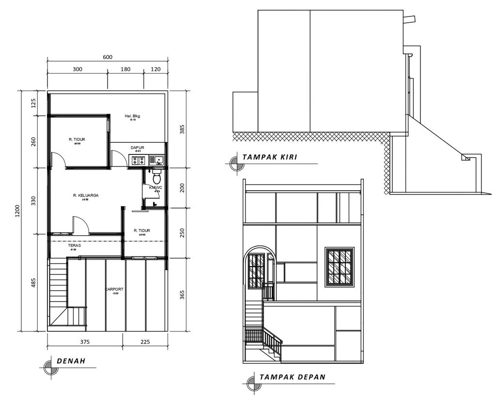
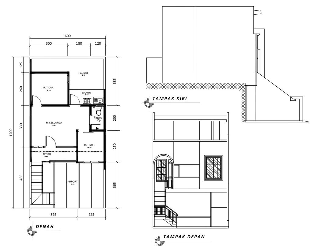
Luas Bangunan: 60m 2
Luas Lahan: 72m 2
Kamar Tidur: 3
Kamar Mandi: 2
a. Atap
Atap baja ringan + genteng
b. Dinding
Bata ringan + cor kolom beton
c. Lantai & Pondasi
Granit & Batu kali + struktur cakar ayam dan strauss pile


Harga: Rp 364.000.000
Luas Bangunan: 47m 2
Luas Lahan: 63m 2
Kamar Tidur: 2
Kamar Mandi: 2
a. Atap
Atap baja ringan + genteng
b. Dinding
Bata ringan + cor kolom beton
c. Lantai & Pondasi
Granit & Batu kali + struktur cakar ayam dan strauss pile


Harga: Rp 379.000.000
Luas Bangunan: 50m 2
Luas Lahan: 61m 2
Kamar Tidur: 2
Kamar Mandi: 2
a. Atap
Atap baja ringan + genteng
b. Dinding
Bata ringan + cor kolom beton
c. Lantai & Pondasi
Granit & Batu kali + struktur cakar ayam dan strauss pile


Harga: Rp 464.000.000
Luas Bangunan: 60m 2
Luas Lahan: 72m 2
Kamar Tidur: 3
Kamar Mandi: 2
a. Atap
Baja ringan + genteng beton cisangkan
b. Dinding
Bata Hebel + Plester Aci Cat
c. Lantai & Pondasi
Granit 60x60 & Cakar Ayam + Batu Kali


Harga: Rp 365.000.000
Luas Bangunan: 50m 2
Luas Lahan: 60m 2
Kamar Tidur: 2
Kamar Mandi: 2
a. Atap
Baja ringan + genteng beton cisangkan
b. Dinding
Bata Hebel + Plester Aci Cat
c. Lantai & Pondasi
Granit 60x60
& Cakar Ayam + Batu Kali


Harga: Rp 469.000.000
Luas Bangunan: 50m 2
Luas Lahan: 83m 2
Kamar Tidur: 2
Kamar Mandi: 2
a. Atap
Baja ringan + genteng beton cisangkan
b. Dinding
Bata Hebel + Plester Aci Cat
c. Lantai & Pondasi
Granit 60x60
& Cakar Ayam + Batu Kali


Harga: Rp 387.000.000
Luas Bangunan: 47m 2
Luas Lahan: 63m 2
Kamar Tidur: 2
Kamar Mandi: 2
a. Atap
Baja ringan + genteng beton cisangkan
b. Dinding
Bata Hebel + Plester Aci Cat
c. Lantai & Pondasi
Granit 60x60
& Cakar Ayam + Batu Kali


Harga: Rp 389.000.000
Luas Bangunan: 50m 2
Luas Lahan: 62m 2
Kamar Tidur: 2
Kamar Mandi: 2
a. Atap
Baja ringan + genteng beton cisangkan
b. Dinding
Bata Hebel + Plester Aci Cat
c. Lantai & Pondasi
Granit 60x60
& Cakar Ayam + Batu Kali


Harga: Rp 423.000.000
Luas Bangunan: 50m 2
Luas Lahan: 63m 2
Kamar Tidur: 2
Kamar Mandi: 2
a. Atap
Atap baja ringan + genteng
b. Dinding
Bata ringan + cor kolom beton
c. Lantai & Pondasi
Granit
& Batu kali + struktur cakar ayam dan strauss pile


Harga: Rp 419.000.000
Luas Bangunan: 47m 2
Luas Lahan: 67m 2
Kamar Tidur: 2
Kamar Mandi: 2
a. Atap
Atap baja ringan + genteng
b. Dinding
Bata ringan + cor kolom beton
c. Lantai & Pondasi
Granit
& Batu kali + struktur cakar ayam dan strauss pile


Harga: Rp 403.000.000
Luas Bangunan: 47m 2
Luas Lahan: 63m 2
Kamar Tidur: 2
Kamar Mandi: 2
a. Atap
Atap baja ringan + genteng
b. Dinding
Bata ringan + cor kolom beton
c. Lantai & Pondasi
Granit
& Batu kali + struktur cakar ayam dan strauss pile


Harga: Rp 567.000.000
Luas Bangunan: 60m 2
Luas Lahan: 90m 2
Kamar Tidur: 2
Kamar Mandi: 2
a. Atap
Atap baja ringan + genteng
b. Dinding
Bata ringan + cor kolom beton
c. Lantai & Pondasi
Granit
& Batu kali + struktur cakar ayam dan strauss pile


Harga: Rp 404.000.000
Luas Bangunan: 50m 2
Luas Lahan: 62m 2
Kamar Tidur: 2
Kamar Mandi: 2
a. Atap
Atap baja ringan + genteng
b. Dinding
Bata ringan + cor kolom beton
c. Lantai & Pondasi
Granit
& Batu kali + struktur cakar ayam dan strauss pile


Harga: Rp 642.000.000
Luas Bangunan: 60m 2
Luas Lahan: 94m 2
Kamar Tidur: 2
Kamar Mandi: 2
a. Atap
Atap baja ringan + genteng
b. Dinding
Bata ringan + cor kolom beton
c. Lantai & Pondasi
Granit
& Batu kali + struktur cakar ayam dan strauss pile


Harga: Rp 419.000.000
Luas Bangunan: 50m 2
Luas Lahan: 63m 2
Kamar Tidur: 2
Kamar Mandi: 2
a. Atap
Atap baja ringan + genteng
b. Dinding
Bata ringan + cor kolom beton
c. Lantai & Pondasi
Granit & Batu kali + struktur cakar ayam dan strauss pile


Harga: Rp 509.000.000
Luas Bangunan: 50m 2
Luas Lahan: 65m 2
Kamar Tidur: 2
Kamar Mandi: 1
a. Atap
Baja ringan + genteng beton cisangkan
b. Dinding
Bata Hebel + Plester Aci Cat
c. Lantai & Pondasi
Granit
& Batu kali + struktur cakar ayam dan strauss pile


Harga: Rp 454.000.000
Luas Bangunan: 50m 2
Luas Lahan: 62m 2
Kamar Tidur: 3
Kamar Mandi: 2
a. Atap
Baja ringan + genteng beton
b. Dinding
Bata hebel + plester aci cat
c. Lantai & Pondasi
Granit & Batu kali + struktur cakar ayam dan strauss pile


Harga: Rp 573.000.000
Luas Bangunan: 46m 2
Luas Lahan: 96m 2
Kamar Tidur: 3
Kamar Mandi: 2
a. Atap
Baja ringan + genteng beton
b. Dinding
Bata hebel + plester aci cat
c. Lantai & Pondasi
Granit & Batu kali + struktur cakar ayam dan strauss pile


Harga: Rp 489.000.000
Luas Bangunan: 50m 2
Luas Lahan: 62m 2
Kamar Tidur: 3
Kamar Mandi: 2
a. Atap
Baja ringan + genteng beton
b. Dinding
Bata hebel + plester aci cat
c. Lantai & Pondasi
Granit
& Batu kali + struktur cakar ayam dan strauss pile


Harga: Rp 506.000.000
Luas Bangunan: 50m 2
Luas Lahan: 62m 2
Kamar Tidur: 3
Kamar Mandi: 2
a. Atap
Baja ringan + genteng beton
b. Dinding
Bata hebel + plester aci cat
c. Lantai & Pondasi
Granit
& Batu kali + struktur cakar ayam dan strauss pile


Harga: Rp 441.000.000
Luas Bangunan: 47m 2
Luas Lahan: 72m 2
Kamar Tidur: 3
Kamar Mandi: 2
a. Atap
Baja ringan + genteng beton
b. Dinding
Bata hebel + plester aci cat
c. Lantai & Pondasi
Granit
& Batu kali + struktur cakar ayam dan strauss pile


Harga: Rp 384.000.000
Luas Bangunan: 46m 2
Luas Lahan: 65m 2
Kamar Tidur: 3
Kamar Mandi: 2
a. Atap
Baja ringan + genteng beton
b. Dinding
Bata hebel + plester aci cat
c. Lantai & Pondasi
Granit
& Batu kali + struktur cakar ayam dan strauss pile
Jl. Raya Kopo Soreang no. 84 JAWA BARAT, KAB BANDUNG, Soreang, Sekarwangi
Telp : 081232385000
Email : admin@ganproperti.com
Website : www.ganproperti.com