ID Lokasi : SOR1120082021T002
JAWA BARAT, KAB BANDUNG, Katapang, Pangauban
PT GRAHA ADICIPTA NUGRAHA
REAL ESTATE INDONESIA
(REI)
Subsidi : 0 Unit
Terjual Subsidi : 0 Unit
Komersil : 0 Unit
Terjual Komersil : 123 Unit
Lihat Siteplan DigitalJl. Pangauban no. - JAWA BARAT, KAB BANDUNG, Katapang, Pangauban
Telp : 081232385000
Email : admin@ganproperti.com
Website : www.ganproperti.com





Harga: Rp 373.000.000
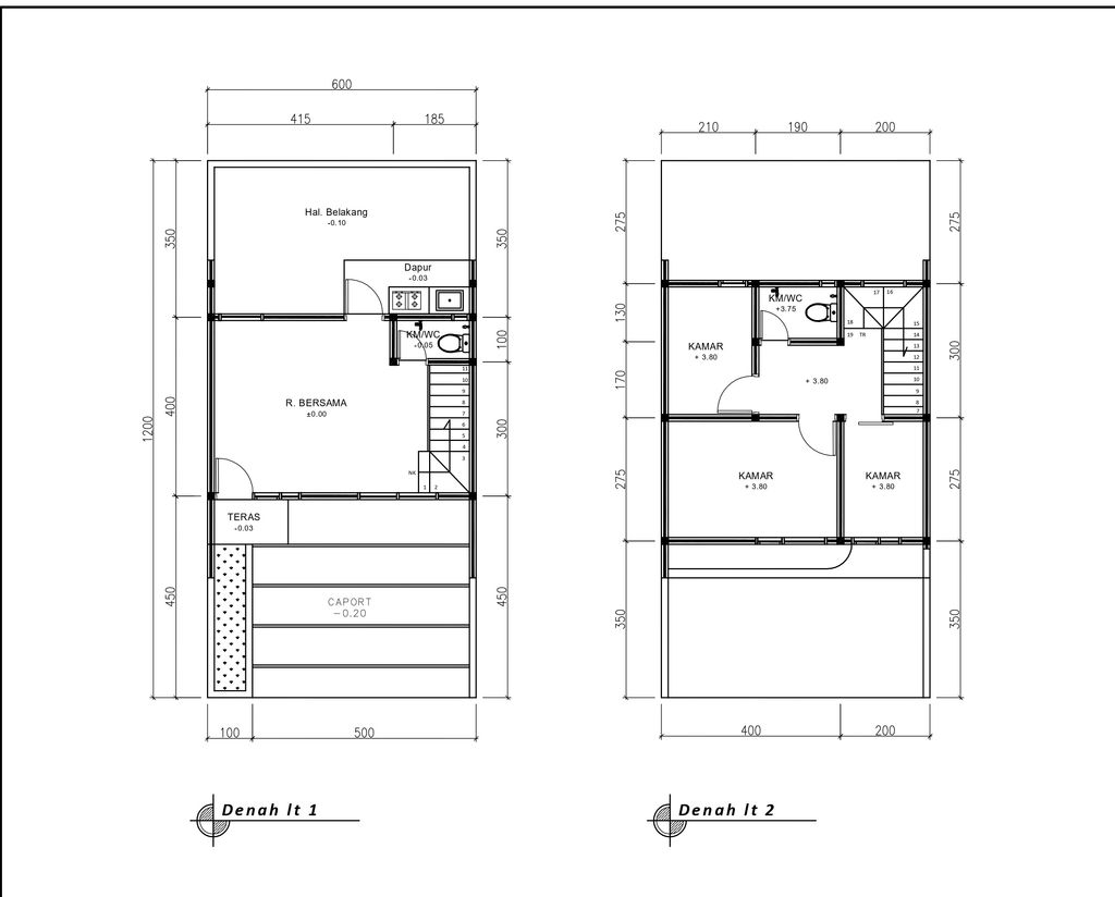
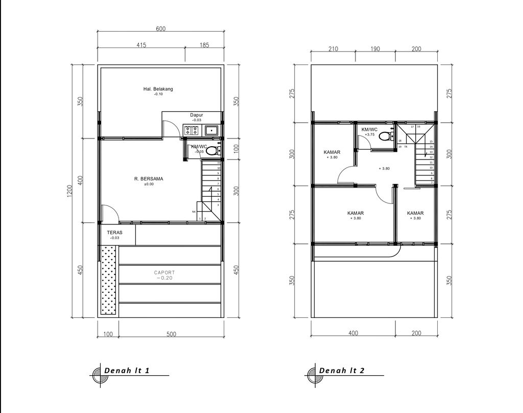
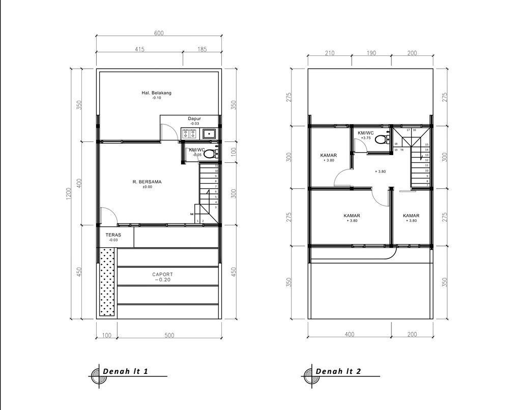
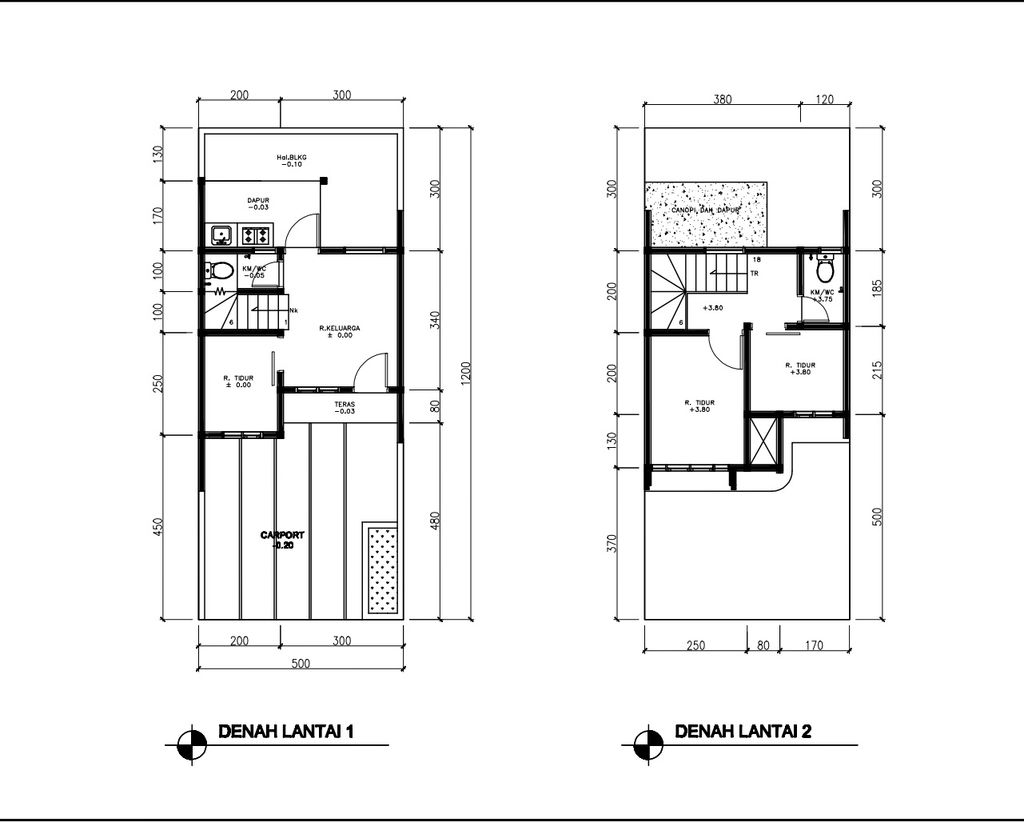
Luas Bangunan: 36m 2
Luas Lahan: 67m 2
Kamar Tidur: 2
Kamar Mandi: 1
a. Atap
Baja ringan + genteng beton cisangkan
b. Dinding
Bata Hebel + Plester Aci Cat
c. Lantai & Pondasi
Granit 60x60
& Cakar Ayam + Batu Kali


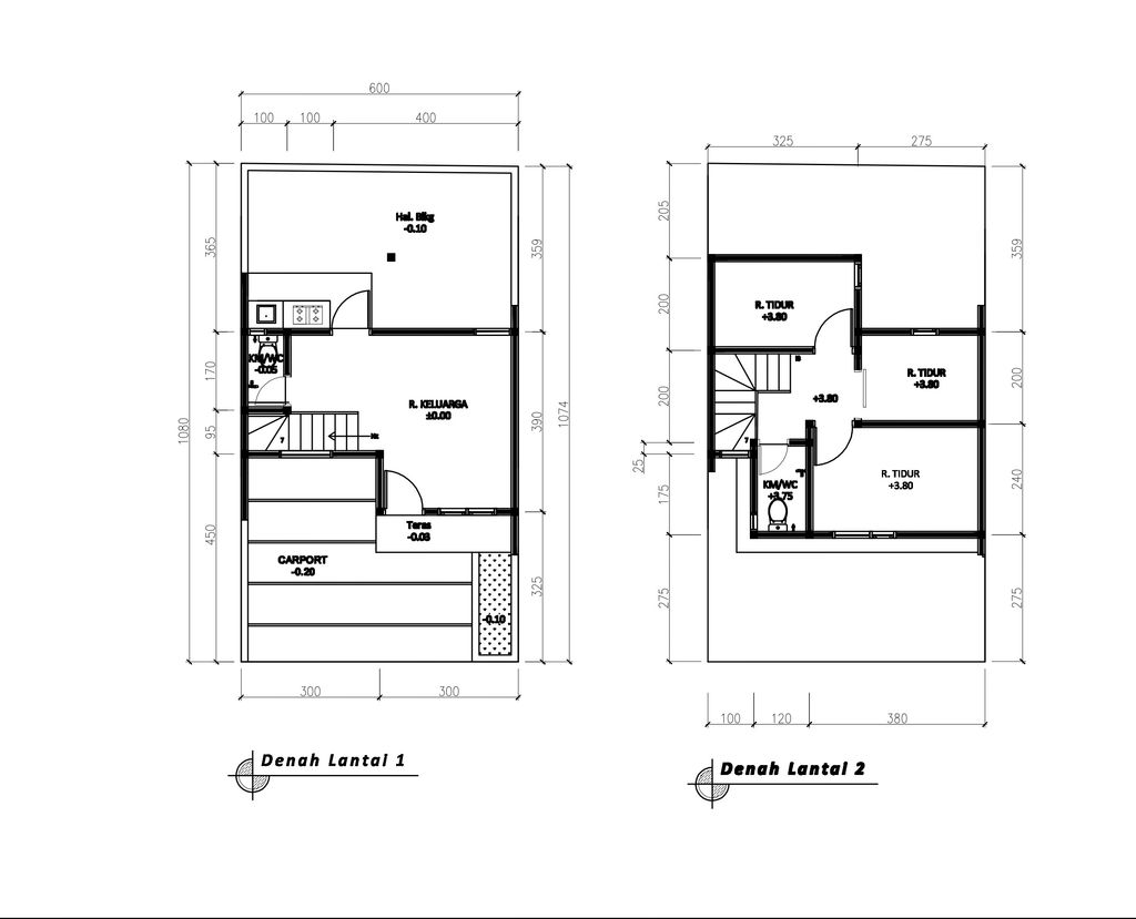
Harga: Rp 356.000.000
Luas Bangunan: 36m 2
Luas Lahan: 60m 2
Kamar Tidur: 2
Kamar Mandi: 1
a. Atap
Baja ringan + genteng beton cisangkan
b. Dinding
Bata Hebel + Plester Aci Cat
c. Lantai & Pondasi
Granit 60x60
& Cakar Ayam + Batu Kali


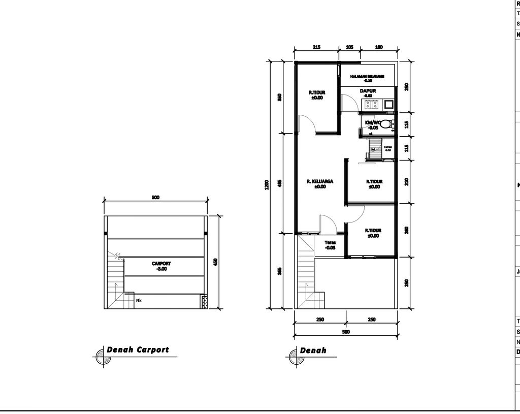
Harga: Rp 359.000.000
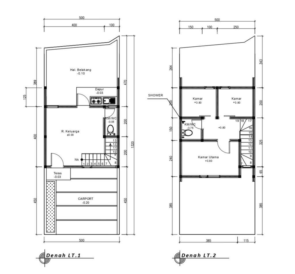
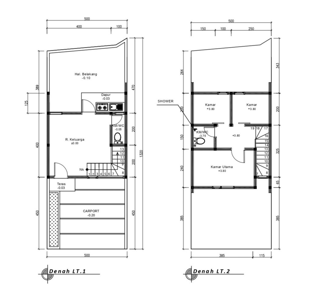
Luas Bangunan: 47m 2
Luas Lahan: 60m 2
Kamar Tidur: 3
Kamar Mandi: 2
a. Atap
Atap baja ringan + genteng
b. Dinding
Bata ringan + cor kolom beton
c. Lantai & Pondasi
Granit & Batu kali + struktur cakar ayam dan strauss pile


Harga: Rp 459.000.000
Luas Bangunan: 47m 2
Luas Lahan: 63m 2
Kamar Tidur: 3
Kamar Mandi: 2
a. Atap
Atap baja ringan + genteng
b. Dinding
Bata ringan + cor kolom beton
c. Lantai & Pondasi
Granit
& Batu kali + struktur cakar ayam dan strauss pile


Harga: Rp 425.000.000
Luas Bangunan: 45m 2
Luas Lahan: 60m 2
Kamar Tidur: 3
Kamar Mandi: 2
a. Atap
Atap baja ringan + genteng
b. Dinding
Bata ringan + cor kolom beton
c. Lantai & Pondasi
Granit
& Batu kali + struktur cakar ayam dan strauss pile


Harga: Rp 368.000.000
Luas Bangunan: 36m 2
Luas Lahan: 60m 2
Kamar Tidur: 2
Kamar Mandi: 1
a. Atap
Baja ringan + genteng beton cisangkan
b. Dinding
Bata Hebel + Plester Aci Cat
c. Lantai & Pondasi
Granit 60x60
& Cakar Ayam + Batu Kali


Harga: Rp 485.000.000
Luas Bangunan: 54m 2
Luas Lahan: 62m 2
Kamar Tidur: 3
Kamar Mandi: 2
a. Atap
Atap baja ringan + genteng
b. Dinding
Bata ringan + cor kolom beton
c. Lantai & Pondasi
Granit
& Batu kali + struktur cakar ayam dan strauss pile


Harga: Rp 363.000.000
Luas Bangunan: 36m 2
Luas Lahan: 65m 2
Kamar Tidur: 2
Kamar Mandi: 1
a. Atap
Baja ringan + genteng beton cisangkan
b. Dinding
Bata Hebel + Plester Aci Cat
c. Lantai & Pondasi
Granit 60x60
& Cakar Ayam + Batu Kali


Harga: Rp 371.000.000
Luas Bangunan: 36m 2
Luas Lahan: 68m 2
Kamar Tidur: 2
Kamar Mandi: 1
a. Atap
Baja ringan + genteng beton cisangkan
b. Dinding
Bata Hebel + Plester Aci Cat
c. Lantai & Pondasi
Granit 60x60
& Cakar Ayam + Batu Kali


Harga: Rp 405.000.000
Luas Bangunan: 36m 2
Luas Lahan: 75m 2
Kamar Tidur: 2
Kamar Mandi: 1
a. Atap
Baja ringan + genteng beton cisangkan
b. Dinding
Bata Hebel + Plester Aci Cat
c. Lantai & Pondasi
Granit 60x60
& Cakar Ayam + Batu Kali


Harga: Rp 271.000.000
Luas Bangunan: 30m 2
Luas Lahan: 60m 2
Kamar Tidur: 2
Kamar Mandi: 1
a. Atap
Atap baja ringan + genteng
b. Dinding
Bata ringan + cor kolom beton
c. Lantai & Pondasi
Granit & Batu kali


Harga: Rp 288.000.000
Luas Bangunan: 36m 2
Luas Lahan: 60m 2
Kamar Tidur: 2
Kamar Mandi: 1
a. Atap
Atap baja ringan + genteng
b. Dinding
Bata ringan + cor kolom beton
c. Lantai & Pondasi
Granit & Batu kali


Harga: Rp 327.000.000
Luas Bangunan: 36m 2
Luas Lahan: 60m 2
Kamar Tidur: 2
Kamar Mandi: 1
a. Atap
Atap baja ringan + genteng
b. Dinding
Bata ringan + cor kolom beton
c. Lantai & Pondasi
Granit & Batu kali


Harga: Rp 329.000.000
Luas Bangunan: 36m 2
Luas Lahan: 61m 2
Kamar Tidur: 2
Kamar Mandi: 1
a. Atap
Atap baja ringan + genteng
b. Dinding
Bata ringan + cor kolom beton
c. Lantai & Pondasi
Granit
& Batu kali


Harga: Rp 332.000.000
Luas Bangunan: 36m 2
Luas Lahan: 60m 2
Kamar Tidur: 2
Kamar Mandi: 1
a. Atap
Atap baja ringan + genteng
b. Dinding
Bata ringan + cor kolom beton
c. Lantai & Pondasi
Granit
& Batu kali


Harga: Rp 287.000.000
Luas Bangunan: 30m 2
Luas Lahan: 60m 2
Kamar Tidur: 2
Kamar Mandi: 1
a. Atap
Baja ringan + genteng beton cisangkan
b. Dinding
Bata Hebel + Plester Aci Cat
c. Lantai & Pondasi
Granit 60x60
& Batu Kali


Harga: Rp 280.000.000
Luas Bangunan: 30m 2
Luas Lahan: 60m 2
Kamar Tidur: 2
Kamar Mandi: 1
a. Atap
Baja ringan + genteng beton cisangkan
b. Dinding
Bata Hebel + Plester Aci Cat
c. Lantai & Pondasi
Granit 60x60
& Batu Kali


Harga: Rp 366.000.000
Luas Bangunan: 36m 2
Luas Lahan: 60m 2
Kamar Tidur: 2
Kamar Mandi: 1
a. Atap
Baja ringan + genteng beton cisangkan
b. Dinding
Bata Hebel + Plester Aci Cat
c. Lantai & Pondasi
Granit 60x60
& Cakar Ayam + Batu Kali


Harga: Rp 368.000.000
Luas Bangunan: 36m 2
Luas Lahan: 67m 2
Kamar Tidur: 2
Kamar Mandi: 1
a. Atap
Baja ringan + genteng beton cisangkan
b. Dinding
Bata Hebel + Plester Aci Cat
c. Lantai & Pondasi
Granit 60x60
& Cakar Ayam + Batu Kali


Harga: Rp 365.000.000
Luas Bangunan: 36m 2
Luas Lahan: 66m 2
Kamar Tidur: 2
Kamar Mandi: 1
a. Atap
Baja ringan + genteng beton cisangkan
b. Dinding
Bata Hebel + Plester Aci Cat
c. Lantai & Pondasi
Granit 60x60
& Cakar Ayam + Batu Kali


Harga: Rp 403.000.000
Luas Bangunan: 47m 2
Luas Lahan: 60m 2
Kamar Tidur: 3
Kamar Mandi: 2
a. Atap
Atap baja ringan + genteng
b. Dinding
Bata ringan + cor kolom beton
c. Lantai & Pondasi
Granit
& Batu kali + struktur cakar ayam dan strauss pile


Harga: Rp 456.000.000
Luas Bangunan: 38m 2
Luas Lahan: 79m 2
Kamar Tidur: 2
Kamar Mandi: 1
a. Atap
Baja ringan + genteng beton cisangkan
b. Dinding
Bata Hebel + Plester Aci Cat
c. Lantai & Pondasi
Granit 60x60
& Cakar Ayam + Batu Kali


Harga: Rp 423.000.000
Luas Bangunan: 39m 2
Luas Lahan: 61m 2
Kamar Tidur: 2
Kamar Mandi: 1
a. Atap
Baja ringan + genteng beton cisangkan
b. Dinding
Bata Hebel + Plester Aci Cat
c. Lantai & Pondasi
Granit 60x60
& Cakar Ayam + Batu Kali


Harga: Rp 517.000.000
Luas Bangunan: 54m 2
Luas Lahan: 60m 2
Kamar Tidur: 2
Kamar Mandi: 1
a. Atap
Baja ringan + genteng beton cisangkan
b. Dinding
Bata Hebel + Plester Aci Cat
c. Lantai & Pondasi
Granit
& Batu kali + struktur cakar ayam dan strauss pile


Harga: Rp 517.000.000
Luas Bangunan: 54m 2
Luas Lahan: 60m 2
Kamar Tidur: 2
Kamar Mandi: 1
a. Atap
Baja ringan + genteng beton cisangkan
b. Dinding
Bata Hebel + Plester Aci Cat
c. Lantai & Pondasi
Granit
& Batu kali + struktur cakar ayam dan strauss pile


Harga: Rp 517.000.000
Luas Bangunan: 54m 2
Luas Lahan: 60m 2
Kamar Tidur: 3
Kamar Mandi: 2
a. Atap
Baja ringan + genteng beton cisangkan
b. Dinding
Bata Hebel + Plester Aci Cat
c. Lantai & Pondasi
Granit
& Batu kali + struktur cakar ayam dan strauss pile


Harga: Rp 484.000.000
Luas Bangunan: 45m 2
Luas Lahan: 60m 2
Kamar Tidur: 2
Kamar Mandi: 1
a. Atap
Baja ringan + genteng beton
b. Dinding
Bata Hebel + Plester Aci Cat
c. Lantai & Pondasi
Granit
& Batu kali + struktur cakar ayam dan strauss pile


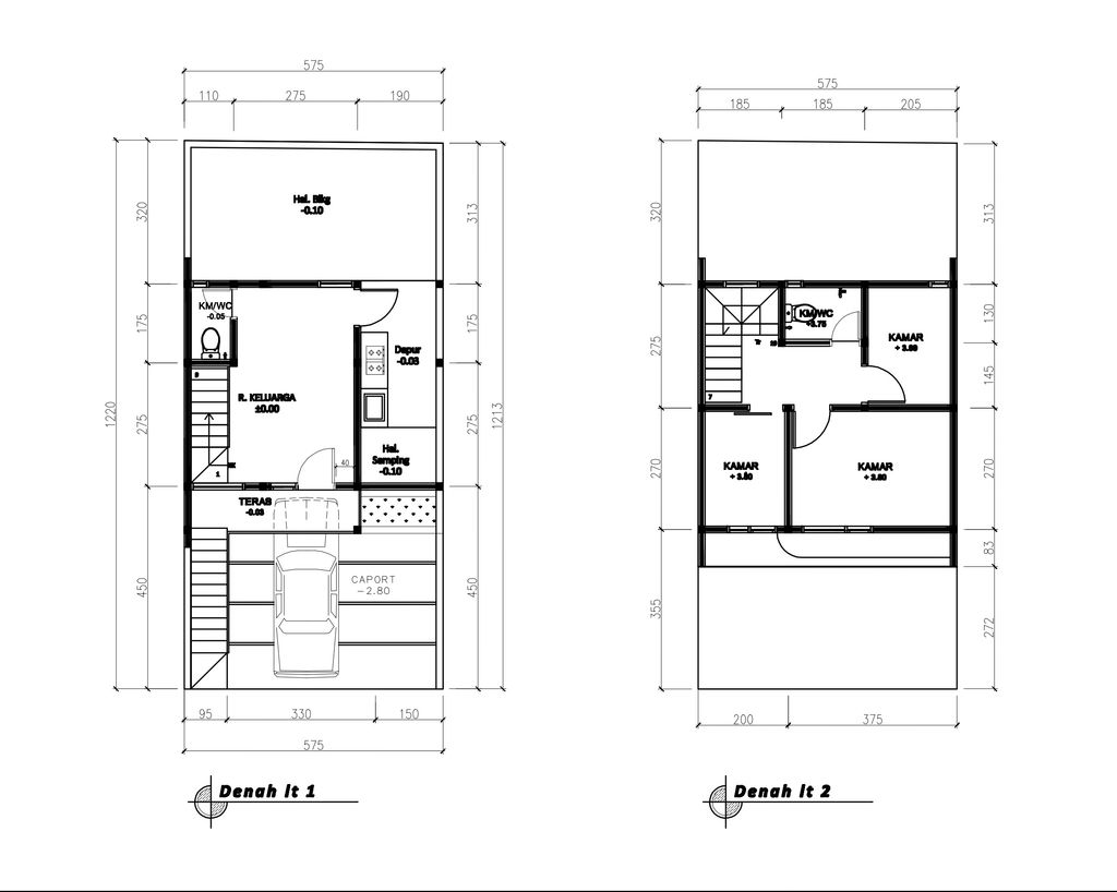
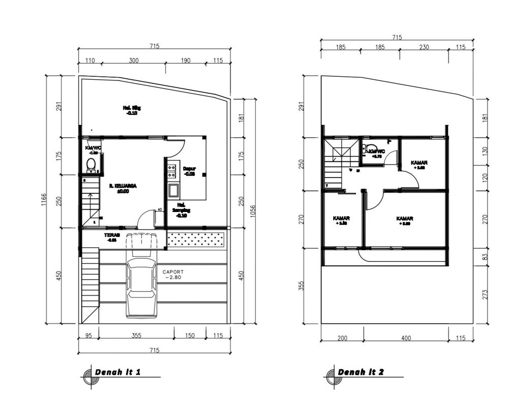
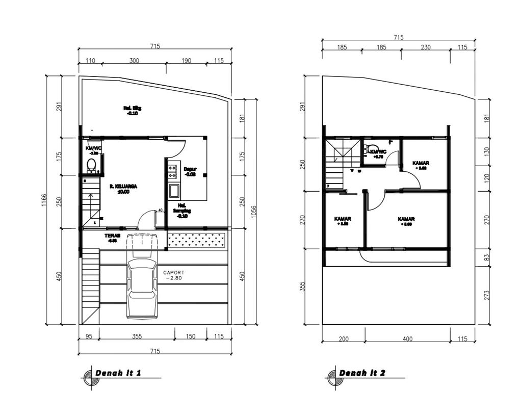
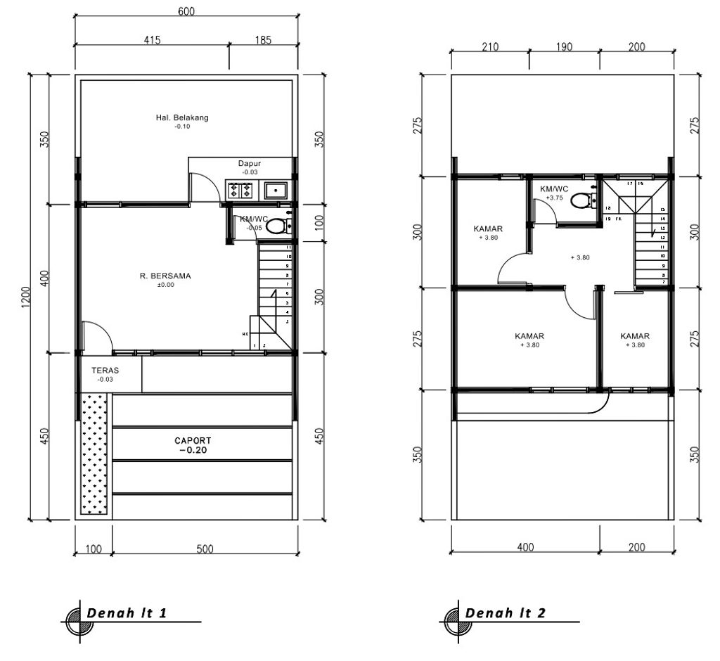
Harga: Rp 709.000.000
Luas Bangunan: 60m 2
Luas Lahan: 96m 2
Kamar Tidur: 3
Kamar Mandi: 2
a. Atap
Baja ringan + genteng beton
b. Dinding
Bata hebel + plester aci cat
c. Lantai & Pondasi
Granit & Batu kali + struktur cakar ayam dan strauss pile


Harga: Rp 556.000.000
Luas Bangunan: 60m 2
Luas Lahan: 72m 2
Kamar Tidur: 3
Kamar Mandi: 2
a. Atap
Baja ringan + genteng beton
b. Dinding
Bata hebel + plester aci cat
c. Lantai & Pondasi
Granit & Batu kali + struktur cakar ayam dan strauss pile


Harga: Rp 482.000.000
Luas Bangunan: 50m 2
Luas Lahan: 60m 2
Kamar Tidur: 3
Kamar Mandi: 2
a. Atap
Baja ringan + genteng beton
b. Dinding
Bata hebel + plester aci cat
c. Lantai & Pondasi
Granit & Batu kali + struktur cakar ayam dan strauss pile


Harga: Rp 517.000.000
Luas Bangunan: 54m 2
Luas Lahan: 60m 2
Kamar Tidur: 2
Kamar Mandi: 1
a. Atap
Baja ringan + genteng beton cisangkan
b. Dinding
Bata Hebel + Plester Aci Cat
c. Lantai & Pondasi
Granit
& Batu kali + struktur cakar ayam dan strauss pile


Harga: Rp 517.000.000
Luas Bangunan: 54m 2
Luas Lahan: 60m 2
Kamar Tidur: 2
Kamar Mandi: 1
a. Atap
Baja ringan + genteng beton cisangkan
b. Dinding
Bata Hebel + Plester Aci Cat
c. Lantai & Pondasi
Granit 60x60
& Cakar Ayam + Batu Kali


Harga: Rp 500.000.000
Luas Bangunan: 39m 2
Luas Lahan: 83m 2
Kamar Tidur: 3
Kamar Mandi: 1
a. Atap
Baja ringan , Genteng Beton
b. Dinding
Bata Hebel , Plester Acicat
c. Lantai & Pondasi
Granit & Batu kali


Harga: Rp 592.000.000
Luas Bangunan: 60m 2
Luas Lahan: 72m 2
Kamar Tidur: 3
Kamar Mandi: 2
a. Atap
Baja ringan, Genteng beton
b. Dinding
Bata hebel, Plester Acicat
c. Lantai & Pondasi
Granit & Batu kali + struktur cakar ayam, strauss pile


Harga: Rp 491.000.000
Luas Bangunan: 47m 2
Luas Lahan: 60m 2
Kamar Tidur: 2
Kamar Mandi: 2
a. Atap
Baja ringan + genteng beton
b. Dinding
Bata hebel + plester aci cat
c. Lantai & Pondasi
Granit & Batu kali + struktur cakar ayam dan strauss pile


Harga: Rp 517.000.000
Luas Bangunan: 54m 2
Luas Lahan: 60m 2
Kamar Tidur: 2
Kamar Mandi: 2
a. Atap
Baja ringan + genteng beton cisangkan
b. Dinding
Baja ringan + genteng beton cisangkan
c. Lantai & Pondasi
Baja ringan + genteng beton cisangkan
& Baja ringan + genteng beton cisangkan


Harga: Rp 592.000.000
Luas Bangunan: 62m 2
Luas Lahan: 72m 2
Kamar Tidur: 2
Kamar Mandi: 2
a. Atap
Baja ringan + genteng beton cisangkan
b. Dinding
Baja ringan + genteng beton cisangkan
c. Lantai & Pondasi
Baja ringan + genteng beton cisangkan
& Baja ringan + genteng beton cisangkan


Harga: Rp 665.000.000
Luas Bangunan: 59m 2
Luas Lahan: 84m 2
Kamar Tidur: 2
Kamar Mandi: 2
a. Atap
Baja ringan + genteng beton cisangkan
b. Dinding
Baja ringan + genteng beton cisangkan
c. Lantai & Pondasi
Baja ringan + genteng beton cisangkan
& Baja ringan + genteng beton cisangkan


Harga: Rp 445.000.000
Luas Bangunan: 39m 2
Luas Lahan: 61m 2
Kamar Tidur: 2
Kamar Mandi: 2
a. Atap
Baja ringan + genteng beton cisangkan
b. Dinding
Bata Hebel + Plester Aci Cat
c. Lantai & Pondasi
Granit
& Batu kali + struktur cakar ayam dan strauss pile


Harga: Rp 592.000.000
Luas Bangunan: 60m 2
Luas Lahan: 72m 2
Kamar Tidur: 2
Kamar Mandi: 2
a. Atap
Baja ringan + genteng beton cisangkan
b. Dinding
Baja ringan + genteng beton cisangkan
c. Lantai & Pondasi
Baja ringan + genteng beton cisangkan
& Baja ringan + genteng beton cisangkan


Harga: Rp 592.000.000
Luas Bangunan: 60m 2
Luas Lahan: 72m 2
Kamar Tidur: 2
Kamar Mandi: 2
a. Atap
Baja ringan + genteng beton cisangkan
b. Dinding
Baja ringan + genteng beton cisangkan
c. Lantai & Pondasi
Baja ringan + genteng beton cisangkan
& Baja ringan + genteng beton cisangkan


Harga: Rp 626.000.000
Luas Bangunan: 54m 2
Luas Lahan: 83m 2
Kamar Tidur: 2
Kamar Mandi: 2
a. Atap
Baja ringan + genteng beton cisangkan
b. Dinding
Baja ringan + genteng beton cisangkan
c. Lantai & Pondasi
Baja ringan + genteng beton cisangkan
& Baja ringan + genteng beton cisangkan


Harga: Rp 626.000.000
Luas Bangunan: 54m 2
Luas Lahan: 83m 2
Kamar Tidur: 2
Kamar Mandi: 2
a. Atap
Baja ringan + genteng beton cisangkan
b. Dinding
Bata Hebel + Plester Aci Cat
c. Lantai & Pondasi
Granit
& Batu kali + struktur cakar ayam dan strauss pile


Harga: Rp 517.000.000
Luas Bangunan: 54m 2
Luas Lahan: 60m 2
Kamar Tidur: 2
Kamar Mandi: 2
a. Atap
Baja ringan + genteng beton cisangkan
b. Dinding
Bata Hebel + Plester Aci Cat
c. Lantai & Pondasi
Granit
& Batu kali + struktur cakar ayam dan strauss pile


Harga: Rp 563.000.000
Luas Bangunan: 54m 2
Luas Lahan: 67m 2
Kamar Tidur: 2
Kamar Mandi: 2
a. Atap
Baja ringan + genteng beton cisangkan
b. Dinding
Baja ringan + genteng beton cisangkan
c. Lantai & Pondasi
Baja ringan + genteng beton cisangkan
& Baja ringan + genteng beton cisangkan


Harga: Rp 592.000.000
Luas Bangunan: 60m 2
Luas Lahan: 72m 2
Kamar Tidur: 2
Kamar Mandi: 2
a. Atap
Baja ringan + genteng beton cisangkan
b. Dinding
Bata Hebel + Plester Aci Cat
c. Lantai & Pondasi
Granit
& Batu kali + struktur cakar ayam dan strauss pile


Harga: Rp 535.000.000
Luas Bangunan: 60m 2
Luas Lahan: 54m 2
Kamar Tidur: 3
Kamar Mandi: 2
a. Atap
Baja ringan, Genteng beton
b. Dinding
Bata hebel, Plester Acicat
c. Lantai & Pondasi
Granit & Batu kali + struktur cakar ayam, strauss pile


Harga: Rp 412.000.000
Luas Bangunan: 64m 2
Luas Lahan: 39m 2
Kamar Tidur: 3
Kamar Mandi: 1
a. Atap
Baja ringan, Genteng beton
b. Dinding
Bata hebel, Plester Acicat
c. Lantai & Pondasi
Granit & Batu kali


Harga: Rp 415.000.000
Luas Bangunan: 73m 2
Luas Lahan: 43m 2
Kamar Tidur: 3
Kamar Mandi: 1
a. Atap
Baja ringan, Genteng beton
b. Dinding
Bata hebel, Plester Acicat
c. Lantai & Pondasi
Granit & Batu kali


Harga: Rp 404.000.000
Luas Bangunan: 36m 2
Luas Lahan: 79m 2
Kamar Tidur: 2
Kamar Mandi: 1
a. Atap
Baja ringan, Genteng beton
b. Dinding
Bata hebel, Plester Acicat
c. Lantai & Pondasi
Granit & Batu kali


Harga: Rp 506.000.000
Luas Bangunan: 50m 2
Luas Lahan: 62m 2
Kamar Tidur: 3
Kamar Mandi: 2
a. Atap
Baja ringan, Genteng beton
b. Dinding
Bata hebel, Plester Acicat
c. Lantai & Pondasi
Granit & Batu kali + struktur cakar ayam, strauss pile


Harga: Rp 594.000.000
Luas Bangunan: 50m 2
Luas Lahan: 84m 2
Kamar Tidur: 3
Kamar Mandi: 2
a. Atap
Baja ringan, Genteng beton
b. Dinding
Bata hebel, Plester Acicat
c. Lantai & Pondasi
Granit & Batu kali + struktur cakar ayam, strauss pile


Harga: Rp 517.000.000
Luas Bangunan: 54m 2
Luas Lahan: 60m 2
Kamar Tidur: 3
Kamar Mandi: 2
a. Atap
Baja ringan, Genteng beton
b. Dinding
Bata hebel, Plester Acicat
c. Lantai & Pondasi
Granit & Batu kali + struktur cakar ayam, strauss pile


Harga: Rp 631.000.000
Luas Bangunan: 54m 2
Luas Lahan: 83m 2
Kamar Tidur: 3
Kamar Mandi: 2
a. Atap
Baja ringan + genteng beton
b. Dinding
Bata hebel + plester aci cat
c. Lantai & Pondasi
Granit
& Batu kali + struktur cakar ayam dan strauss pile


Harga: Rp 482.000.000
Luas Bangunan: 50m 2
Luas Lahan: 60m 2
Kamar Tidur: 3
Kamar Mandi: 2
a. Atap
Baja ringan + genteng beton
b. Dinding
Bata hebel + plester aci cat
c. Lantai & Pondasi
Granit
& Batu kali + struktur cakar ayam dan strauss pile


Harga: Rp 487.000.000
Luas Bangunan: 50m 2
Luas Lahan: 60m 2
Kamar Tidur: 3
Kamar Mandi: 2
a. Atap
Baja ringan + genteng beton
b. Dinding
Bata hebel + plester aci cat
c. Lantai & Pondasi
Granit
& Batu kali + struktur cakar ayam dan strauss pile


Harga: Rp 539.000.000
Luas Bangunan: 54m 2
Luas Lahan: 60m 2
Kamar Tidur: 3
Kamar Mandi: 2
a. Atap
Baja ringan + genteng beton
b. Dinding
Bata hebel + plester aci cat
c. Lantai & Pondasi
Granit
& Batu kali + struktur cakar ayam dan strauss pile


Harga: Rp 620.000.000
Luas Bangunan: 60m 2
Luas Lahan: 72m 2
Kamar Tidur: 3
Kamar Mandi: 2
a. Atap
Baja ringan + genteng beton
b. Dinding
Bata hebel + plester aci cat
c. Lantai & Pondasi
Granit
& Batu kali + struktur cakar ayam dan strauss pile


Harga: Rp 498.000.000
Luas Bangunan: 50m 2
Luas Lahan: 60m 2
Kamar Tidur: 3
Kamar Mandi: 2
a. Atap
Baja ringan + genteng beton
b. Dinding
Bata hebel + plester aci cat
c. Lantai & Pondasi
Granit
& Batu kali + struktur cakar ayam dan strauss pile


Harga: Rp 522.000.000
Luas Bangunan: 50m 2
Luas Lahan: 63m 2
Kamar Tidur: 3
Kamar Mandi: 2
a. Atap
Baja ringan + genteng beton
b. Dinding
Bata hebel + plester aci cat
c. Lantai & Pondasi
Granit
& Batu kali + struktur cakar ayam dan strauss pile


Harga: Rp 609.000.000
Luas Bangunan: 60m 2
Luas Lahan: 72m 2
Kamar Tidur: 3
Kamar Mandi: 2
a. Atap
Baja ringan + genteng beton
b. Dinding
Bata hebel + plester aci cat
c. Lantai & Pondasi
Granit
& Batu kali + struktur cakar ayam dan strauss pile


Harga: Rp 596.000.000
Luas Bangunan: 60m 2
Luas Lahan: 72m 2
Kamar Tidur: 3
Kamar Mandi: 2
a. Atap
Baja ringan + genteng beton
b. Dinding
Bata hebel + plester aci cat
c. Lantai & Pondasi
Granit
& Batu kali + struktur cakar ayam dan strauss pile


Harga: Rp 392.000.000
Luas Bangunan: 38m 2
Luas Lahan: 60m 2
Kamar Tidur: 2
Kamar Mandi: 2
a. Atap
Baja ringan + genteng beton
b. Dinding
Bata hebel + plester aci cat
c. Lantai & Pondasi
Granit
& Batu kali + struktur cakar ayam dan strauss pile


Harga: Rp 504.000.000
Luas Bangunan: 50m 2
Luas Lahan: 63m 2
Kamar Tidur: 3
Kamar Mandi: 2
a. Atap
Baja ringan + genteng beton
b. Dinding
Bata hebel + plester aci cat
c. Lantai & Pondasi
Granit
& Batu kali + struktur cakar ayam dan strauss pile


Harga: Rp 512.000.000
Luas Bangunan: 50m 2
Luas Lahan: 65m 2
Kamar Tidur: 3
Kamar Mandi: 2
a. Atap
Baja ringan + genteng beton
b. Dinding
Bata hebel + plester aci cat
c. Lantai & Pondasi
Granit
& Batu kali + struktur cakar ayam dan strauss pile


Harga: Rp 577.000.000
Luas Bangunan: 60m 2
Luas Lahan: 67m 2
Kamar Tidur: 3
Kamar Mandi: 2
a. Atap
Baja ringan + genteng beton
b. Dinding
Bata hebel + plester aci cat
c. Lantai & Pondasi
Batu kali
& Batu kali + struktur cakar ayam dan strauss pile


Harga: Rp 493.000.000
Luas Bangunan: 50m 2
Luas Lahan: 60m 2
Kamar Tidur: 3
Kamar Mandi: 2
a. Atap
Baja ringan + genteng beton
b. Dinding
Bata hebel + plester aci cat
c. Lantai & Pondasi
Granit
& Batu kali + struktur cakar ayam dan strauss pile


Harga: Rp 508.000.000
Luas Bangunan: 50m 2
Luas Lahan: 64m 2
Kamar Tidur: 3
Kamar Mandi: 2
a. Atap
Baja ringan + genteng beton
b. Dinding
Bata hebel + plester aci cat
c. Lantai & Pondasi
Granit
& Batu kali + struktur cakar ayam dan strauss pile


Harga: Rp 607.000.000
Luas Bangunan: 60m 2
Luas Lahan: 72m 2
Kamar Tidur: 3
Kamar Mandi: 2
a. Atap
Baja ringan + genteng beton
b. Dinding
Bata hebel + plester aci cat
c. Lantai & Pondasi
Granit
& Batu kali + struktur cakar ayam dan strauss pile


Harga: Rp 453.000.000
Luas Bangunan: 39m 2
Luas Lahan: 63m 2
Kamar Tidur: 3
Kamar Mandi: 1
a. Atap
Baja ringan + genteng beton
b. Dinding
Bata hebel + plester aci cat
c. Lantai & Pondasi
Granit
& Batu kali + struktur cakar ayam dan strauss pile


Harga: Rp 550.000.000
Luas Bangunan: 50m 2
Luas Lahan: 70m 2
Kamar Tidur: 3
Kamar Mandi: 2
a. Atap
Baja ringan + genteng beton
b. Dinding
Bata hebel + plester aci cat
c. Lantai & Pondasi
Granit
& Batu kali + struktur cakar ayam dan strauss pile


Harga: Rp 601.000.000
Luas Bangunan: 60m 2
Luas Lahan: 72m 2
Kamar Tidur: 3
Kamar Mandi: 2
a. Atap
Baja ringan + genteng beton
b. Dinding
Bata hebel + plester aci cat
c. Lantai & Pondasi
Granit
& Batu kali + struktur cakar ayam dan strauss pile


Harga: Rp 715.000.000
Luas Bangunan: 60m 2
Luas Lahan: 96m 2
Kamar Tidur: 3
Kamar Mandi: 2
a. Atap
Baja ringan + genteng beton
b. Dinding
Bata hebel + plester aci cat
c. Lantai & Pondasi
Granit
& Batu kali + struktur cakar ayam dan strauss pile


Harga: Rp 532.000.000
Luas Bangunan: 50m 2
Luas Lahan: 64m 2
Kamar Tidur: 3
Kamar Mandi: 2
a. Atap
Baja ringan + genteng beton
b. Dinding
Bata hebel + plester aci cat
c. Lantai & Pondasi
Granit
& Batu kali + struktur cakar ayam dan strauss pile


Harga: Rp 651.000.000
Luas Bangunan: 50m 2
Luas Lahan: 82m 2
Kamar Tidur: 3
Kamar Mandi: 2
a. Atap
Baja ringan + genteng beton
b. Dinding
Bata hebel + plester aci cat
c. Lantai & Pondasi
Granit
& Batu kali + struktur cakar ayam dan strauss pile


Harga: Rp 595.000.000
Luas Bangunan: 60m 2
Luas Lahan: 69m 2
Kamar Tidur: 3
Kamar Mandi: 2
a. Atap
Baja ringan + genteng beton
b. Dinding
Bata hebel + plester aci cat
c. Lantai & Pondasi
Granit
& Batu kali + struktur cakar ayam dan strauss pile


Harga: Rp 614.000.000
Luas Bangunan: 60m 2
Luas Lahan: 72m 2
Kamar Tidur: 3
Kamar Mandi: 2
a. Atap
Baja ringan + genteng beton
b. Dinding
Bata hebel + plester aci cat
c. Lantai & Pondasi
Granit
& Batu kali + struktur cakar ayam dan strauss pile


Harga: Rp 567.000.000
Luas Bangunan: 60m 2
Luas Lahan: 72m 2
Kamar Tidur: 3
Kamar Mandi: 2
a. Atap
Baja ringan + genteng beton
b. Dinding
Bata hebel + plester aci cat
c. Lantai & Pondasi
Granit
& Batu kali + struktur cakar ayam dan strauss pile


Harga: Rp 463.000.000
Luas Bangunan: 50m 2
Luas Lahan: 60m 2
Kamar Tidur: 3
Kamar Mandi: 2
a. Atap
Baja ringan + genteng beton
b. Dinding
Bata hebel + plester aci cat
c. Lantai & Pondasi
Granit
& Batu kali + struktur cakar ayam dan strauss pile


Harga: Rp 609.000.000
Luas Bangunan: 50m 2
Luas Lahan: 83m 2
Kamar Tidur: 3
Kamar Mandi: 2
a. Atap
Baja ringan + genteng beton
b. Dinding
Bata hebel + plester aci cat
c. Lantai & Pondasi
Granit
& Batu kali + struktur cakar ayam dan strauss pile


Harga: Rp 481.000.000
Luas Bangunan: 54m 2
Luas Lahan: 60m 2
Kamar Tidur: 3
Kamar Mandi: 2
a. Atap
Baja ringan + genteng beton
b. Dinding
Bata hebel + plester aci cat
c. Lantai & Pondasi
Granit
& Batu kali + struktur cakar ayam dan strauss pile


Harga: Rp 548.000.000
Luas Bangunan: 50m 2
Luas Lahan: 71m 2
Kamar Tidur: 3
Kamar Mandi: 2
a. Atap
Baja ringan + genteng beton
b. Dinding
Bata hebel + plester aci cat
c. Lantai & Pondasi
Granit
& Batu kali + struktur cakar ayam dan strauss pile


Harga: Rp 444.000.000
Luas Bangunan: 50m 2
Luas Lahan: 61m 2
Kamar Tidur: 3
Kamar Mandi: 2
a. Atap
Baja ringan + genteng beton
b. Dinding
Bata hebel + plester aci cat
c. Lantai & Pondasi
Granit
& Batu kali + struktur cakar ayam dan strauss pile


Harga: Rp 615.000.000
Luas Bangunan: 50m 2
Luas Lahan: 83m 2
Kamar Tidur: 3
Kamar Mandi: 2
a. Atap
Baja ringan + genteng beton
b. Dinding
Bata hebel + plester aci cat
c. Lantai & Pondasi
Granit
& Batu kali + struktur cakar ayam dan strauss pile


Harga: Rp 566.000.000
Luas Bangunan: 50m 2
Luas Lahan: 72m 2
Kamar Tidur: 3
Kamar Mandi: 2
a. Atap
Baja ringan + genteng beton
b. Dinding
Bata hebel + plester aci cat
c. Lantai & Pondasi
Granit
& Batu kali + struktur cakar ayam dan strauss pile


Harga: Rp 571.000.000
Luas Bangunan: 50m 2
Luas Lahan: 73m 2
Kamar Tidur: 3
Kamar Mandi: 2
a. Atap
Baja ringan + genteng beton
b. Dinding
Bata hebel + plester aci cat
c. Lantai & Pondasi
Granit
& Batu kali + struktur cakar ayam dan strauss pile


Harga: Rp 412.000.000
Luas Bangunan: 50m 2
Luas Lahan: 64m 2
Kamar Tidur: 3
Kamar Mandi: 2
a. Atap
Baja ringan + genteng beton
b. Dinding
Bata hebel + plester aci cat
c. Lantai & Pondasi
Granit
& Batu kali + struktur cakar ayam dan strauss pile


Harga: Rp 402.000.000
Luas Bangunan: 50m 2
Luas Lahan: 60m 2
Kamar Tidur: 3
Kamar Mandi: 2
a. Atap
Baja ringan + genteng beton
b. Dinding
Bata hebel + plester aci cat
c. Lantai & Pondasi
Granit
& Batu kali + struktur cakar ayam dan strauss pile


Harga: Rp 406.000.000
Luas Bangunan: 50m 2
Luas Lahan: 67m 2
Kamar Tidur: 3
Kamar Mandi: 2
a. Atap
Baja ringan + genteng beton
b. Dinding
Bata hebel + plester aci cat
c. Lantai & Pondasi
Granit
& Batu kali + struktur cakar ayam dan strauss pile


Harga: Rp 625.000.000
Luas Bangunan: 50m 2
Luas Lahan: 87m 2
Kamar Tidur: 3
Kamar Mandi: 2
a. Atap
Baja ringan + genteng beton
b. Dinding
Bata hebel + plester aci cat
c. Lantai & Pondasi
Granit
& Batu kali + struktur cakar ayam dan strauss pile


Harga: Rp 404.000.000
Luas Bangunan: 50m 2
Luas Lahan: 61m 2
Kamar Tidur: 3
Kamar Mandi: 2
a. Atap
Baja ringan + genteng beton
b. Dinding
Bata hebel + plester aci cat
c. Lantai & Pondasi
Granit
& Batu kali + struktur cakar ayam dan strauss pile


Harga: Rp 407.000.000
Luas Bangunan: 50m 2
Luas Lahan: 62m 2
Kamar Tidur: 3
Kamar Mandi: 2
a. Atap
Baja ringan + genteng beton
b. Dinding
Bata hebel + plester aci cat
c. Lantai & Pondasi
Granit
& Batu kali + struktur cakar ayam dan strauss pile


Harga: Rp 398.000.000
Luas Bangunan: 50m 2
Luas Lahan: 64m 2
Kamar Tidur: 3
Kamar Mandi: 2
a. Atap
Baja ringan + genteng beton
b. Dinding
Bata hebel + plester aci cat
c. Lantai & Pondasi
Granit
& Batu kali + struktur cakar ayam dan strauss pile


Harga: Rp 544.000.000
Luas Bangunan: 50m 2
Luas Lahan: 71m 2
Kamar Tidur: 3
Kamar Mandi: 2
a. Atap
Baja ringan + genteng beton
b. Dinding
Bata hebel + plester aci cat
c. Lantai & Pondasi
Granit
& Batu kali + struktur cakar ayam dan strauss pile


Harga: Rp 410.000.000
Luas Bangunan: 50m 2
Luas Lahan: 63m 2
Kamar Tidur: 3
Kamar Mandi: 2
a. Atap
Baja ringan + genteng beton
b. Dinding
Bata hebel + plester aci cat
c. Lantai & Pondasi
Granit
& Batu kali + struktur cakar ayam dan strauss pile


Harga: Rp 574.000.000
Luas Bangunan: 60m 2
Luas Lahan: 72m 2
Kamar Tidur: 3
Kamar Mandi: 2
a. Atap
Baja ringan + genteng beton
b. Dinding
Bata hebel + plester aci cat
c. Lantai & Pondasi
Granit
& Batu kali + struktur cakar ayam dan strauss pile


Harga: Rp 567.000.000
Luas Bangunan: 60m 2
Luas Lahan: 72m 2
Kamar Tidur: 3
Kamar Mandi: 2
a. Atap
Baja ringan + genteng beton
b. Dinding
Bata hebel + plester aci cat
c. Lantai & Pondasi
Granit
& Batu kali + struktur cakar ayam dan strauss pile


Harga: Rp 418.000.000
Luas Bangunan: 50m 2
Luas Lahan: 65m 2
Kamar Tidur: 3
Kamar Mandi: 2
a. Atap
Baja ringan + genteng beton
b. Dinding
Bata hebel + plester aci cat
c. Lantai & Pondasi
Granit
& Batu kali + struktur cakar ayam dan strauss pile


Harga: Rp 357.000.000
Luas Bangunan: 39m 2
Luas Lahan: 60m 2
Kamar Tidur: 3
Kamar Mandi: 1
a. Atap
Baja ringan + genteng beton
b. Dinding
Bata hebel + plester aci cat
c. Lantai & Pondasi
Granit
& Batu kali + struktur cakar ayam dan strauss pile


Harga: Rp 553.000.000
Luas Bangunan: 50m 2
Luas Lahan: 70m 2
Kamar Tidur: 3
Kamar Mandi: 2
a. Atap
Baja ringan + genteng beton
b. Dinding
Bata hebel + plester aci cat
c. Lantai & Pondasi
Granit
& Batu kali + struktur cakar ayam dan strauss pile


Harga: Rp 540.000.000
Luas Bangunan: 50m 2
Luas Lahan: 70m 2
Kamar Tidur: 3
Kamar Mandi: 2
a. Atap
Baja ringan + genteng beton
b. Dinding
Bata hebel + plester aci cat
c. Lantai & Pondasi
Granit
& Batu kali + struktur cakar ayam dan strauss pile


Harga: Rp 403.000.000
Luas Bangunan: 50m 2
Luas Lahan: 66m 2
Kamar Tidur: 3
Kamar Mandi: 2
a. Atap
Baja ringan + genteng beton
b. Dinding
Bata hebel + plester aci cat
c. Lantai & Pondasi
Granit
& Batu kali + struktur cakar ayam dan strauss pile


Harga: Rp 567.000.000
Luas Bangunan: 60m 2
Luas Lahan: 72m 2
Kamar Tidur: 3
Kamar Mandi: 2
a. Atap
Baja ringan + genteng beton
b. Dinding
Bata hebel + plester aci cat
c. Lantai & Pondasi
Granit
& Batu kali + struktur cakar ayam dan strauss pile


Harga: Rp 567.000.000
Luas Bangunan: 60m 2
Luas Lahan: 72m 2
Kamar Tidur: 3
Kamar Mandi: 2
a. Atap
Baja ringan + genteng beton
b. Dinding
Bata hebel + plester aci cat
c. Lantai & Pondasi
Granit
& Batu kali + struktur cakar ayam dan strauss pile


Harga: Rp 601.000.000
Luas Bangunan: 50m 2
Luas Lahan: 80m 2
Kamar Tidur: 3
Kamar Mandi: 2
a. Atap
Baja ringan + genteng beton
b. Dinding
Bata hebel + plester aci cat
c. Lantai & Pondasi
Granit
& Batu kali + struktur cakar ayam dan strauss pile


Harga: Rp 508.000.000
Luas Bangunan: 50m 2
Luas Lahan: 55m 2
Kamar Tidur: 3
Kamar Mandi: 2
a. Atap
Baja ringan + genteng beton
b. Dinding
Bata hebel + plester aci cat
c. Lantai & Pondasi
Granit
& Batu kali + struktur cakar ayam dan strauss pile


Harga: Rp 509.000.000
Luas Bangunan: 50m 2
Luas Lahan: 63m 2
Kamar Tidur: 3
Kamar Mandi: 2
a. Atap
Baja ringan + genteng beton
b. Dinding
Bata hebel + plester aci cat
c. Lantai & Pondasi
Granit
& Batu kali + struktur cakar ayam dan strauss pile


Harga: Rp 567.000.000
Luas Bangunan: 60m 2
Luas Lahan: 72m 2
Kamar Tidur: 3
Kamar Mandi: 2
a. Atap
Baja ringan + genteng beton
b. Dinding
Bata hebel + plester aci cat
c. Lantai & Pondasi
Granit
& Batu kali + struktur cakar ayam dan strauss pile
Jl. Pangauban no. - JAWA BARAT, KAB BANDUNG, Katapang, Pangauban
Telp : 081232385000
Email : admin@ganproperti.com
Website : www.ganproperti.com