ID Lokasi : SOR2920052024T001
JAWA BARAT, KAB BANDUNG, Ciparay, Ciheulang
PT CIPTA AGUNG SENTOSA
PERKUMPULAN ASOSIASI PENGEMBANG PERUMAHAN DAN PERMUKIMAN SELURUH INDONESIA
(APERSI)
Subsidi : 0 Unit
Terjual Subsidi : 0 Unit
Komersil : 35 Unit
Terjual Komersil : 60 Unit
Lihat Siteplan Digital




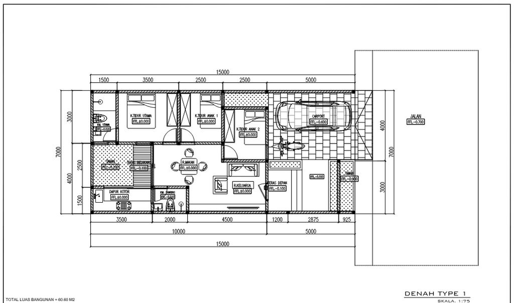
Harga: Rp 468.000.000
Luas Bangunan: 38m 2
Luas Lahan: 72m 2
Kamar Tidur: 2
Kamar Mandi: 1
a. Atap
BAJA RINGAN, GENTENG BETON
b. Dinding
BATA CONGKAK, PLESTER ACI DAN CAT
c. Lantai & Pondasi
Granit 60 x 60 & batu kali


Harga: Rp 518.500.000
Luas Bangunan: 38m 2
Luas Lahan: 86m 2
Kamar Tidur: 2
Kamar Mandi: 1
a. Atap
BAJA RINGAN, GENTENG BETON
b. Dinding
BATA CONGKAK, PLESTER ACI DAN CAT
c. Lantai & Pondasi
GRANIT 60 X 60 & BATU KALO


Harga: Rp 508.500.000
Luas Bangunan: 38m 2
Luas Lahan: 77m 2
Kamar Tidur: 2
Kamar Mandi: 1
a. Atap
Genteng Beton, Rangka Baja Ringan
b. Dinding
Bata Congkak, Plester Aci dan Cat
c. Lantai & Pondasi
Granit 60 x 60 & Batu Kali


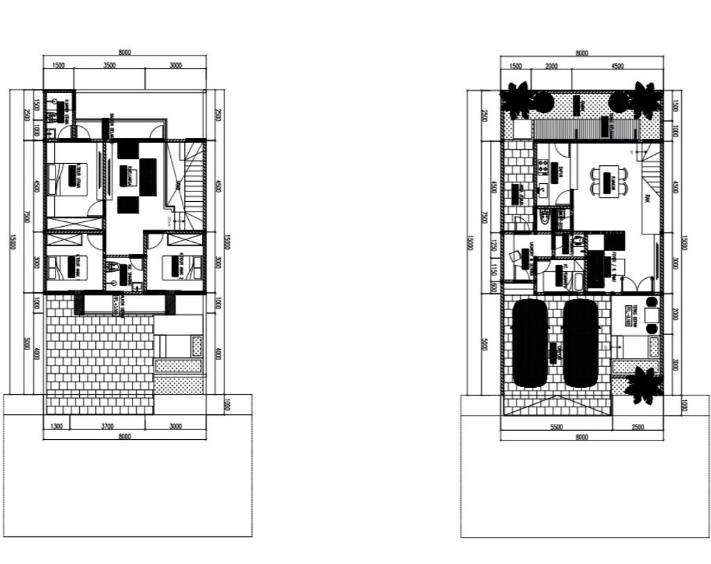
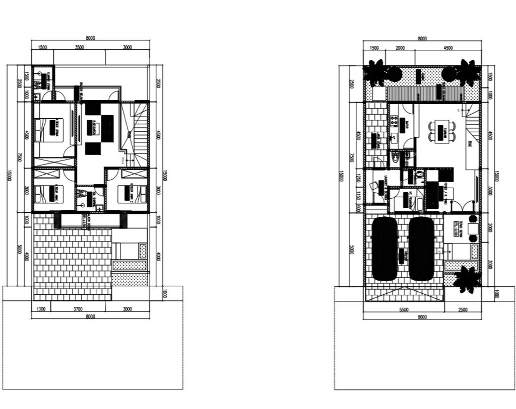
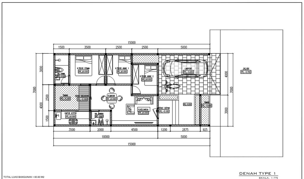
Harga: Rp 774.000.000
Luas Bangunan: 60m 2
Luas Lahan: 105m 2
Kamar Tidur: 3
Kamar Mandi: 2
a. Atap
genteng beton baja ringan
b. Dinding
bata congkak, plester, aci dan cat
c. Lantai & Pondasi
granit 60 x 60 & batu kali


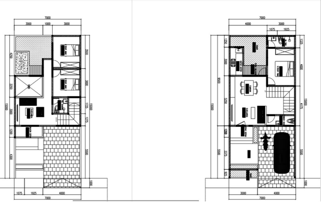
Harga: Rp 1.011.000.000
Luas Bangunan: 101m 2
Luas Lahan: 105m 2
Kamar Tidur: 3
Kamar Mandi: 3
a. Atap
Genteng beton, baja ringan
b. Dinding
Bata Ringan, plester, aci dan cat
c. Lantai & Pondasi
Granit 60 x 60 & Batu Kali


Harga: Rp 572.500.000
Luas Bangunan: 38m 2
Luas Lahan: 94m 2
Kamar Tidur: 2
Kamar Mandi: 1
a. Atap
Genteng Beton , Baja Ringan
b. Dinding
Bata congkak, Plester, Aci dan Cat
c. Lantai & Pondasi
Granit 60 x 60 & Batu kali


Harga: Rp 742.500.000
Luas Bangunan: 38m 2
Luas Lahan: 141m 2
Kamar Tidur: 2
Kamar Mandi: 1
a. Atap
Genteng Beton, Rangka Baja Ringan
b. Dinding
Bata Congkak, Plester Aci dan Cat
c. Lantai & Pondasi
Granit 60x60 & Batu Kali


Harga: Rp 1.200.000.000
Luas Bangunan: 124m 2
Luas Lahan: 120m 2
Kamar Tidur: 3
Kamar Mandi: 2
a. Atap
BAJA RINGAN GENTENG BETON
b. Dinding
BATA RINGAN, PLESTER ACI DAN CAT
c. Lantai & Pondasi
GRANIT 60X60 & TROSPAL, BATU KALI


Harga: Rp 534.000.000
Luas Bangunan: 38m 2
Luas Lahan: 82m 2
Kamar Tidur: 2
Kamar Mandi: 1
a. Atap
Rangka Baja ringan dan Genteng Cisangkan
b. Dinding
Bata Congkak Plester Aci dan Cat
c. Lantai & Pondasi
Granit 60 x 60 & Batu kali


Harga: Rp 736.000.000
Luas Bangunan: 38m 2
Luas Lahan: 121m 2
Kamar Tidur: 2
Kamar Mandi: 1
a. Atap
ATAP RANGKA BAJA RINGAN, GENTENG BETON CISANGKAN
b. Dinding
BATA CONGKAK, PLESTER ACI DAN CAT
c. Lantai & Pondasi
GRANIT 60X60 & BATU KALI


Harga: Rp 557.500.000
Luas Bangunan: 38m 2
Luas Lahan: 84m 2
Kamar Tidur: 2
Kamar Mandi: 1
a. Atap
RANGKA ATAP BAJA RINGAN, GENTENG BETON CISANGKAN
b. Dinding
BATA CONGKAK, PLESTER ACI DAN CAT
c. Lantai & Pondasi
GRANIT 60X60 & BATU KALI


Harga: Rp 975.000.000
Luas Bangunan: 60m 2
Luas Lahan: 150m 2
Kamar Tidur: 3
Kamar Mandi: 2
a. Atap
RANGKA BAJA RINGAN, GENTENG BETON CISANGKAN
b. Dinding
BATA CONGKAK, PLESTER ACI DAN CAT
c. Lantai & Pondasi
GRANIT 60X60 & BATU KALI


Harga: Rp 570.000.000
Luas Bangunan: 38m 2
Luas Lahan: 73m 2
Kamar Tidur: 2
Kamar Mandi: 1
a. Atap
RANGKA BAJA RINGAN, GENTENG BETON CISANGKAN
b. Dinding
BATA CONGKAK, PLESTER, ACI DAN CAT
c. Lantai & Pondasi
GRANIT 60X60 & BATU KALI


Harga: Rp 605.000.000
Luas Bangunan: 38m 2
Luas Lahan: 100m 2
Kamar Tidur: 2
Kamar Mandi: 1
a. Atap
GENTENG CISANGKAN, RANGKA BAJA RINGAN
b. Dinding
BATA CONGKAK, PLESTER, ACI DAN CAT
c. Lantai & Pondasi
GRANIT 60X60 & BATU KALI


Harga: Rp 533.000.000
Luas Bangunan: 87m 2
Luas Lahan: 38m 2
Kamar Tidur: 2
Kamar Mandi: 1
a. Atap
RANGKA BAJA RINGAN, GENTENG BETON CISANGKAN
b. Dinding
BATA RINGAN PLESTER ACIAN DAN CAT
c. Lantai & Pondasi
GRANIT 60X60 & BATU KALI


Harga: Rp 1.130.000.000
Luas Bangunan: 60m 2
Luas Lahan: 157m 2
Kamar Tidur: 3
Kamar Mandi: 2
a. Atap
BAJA RINGAN, GENTENG CISANGKAN
b. Dinding
BATA RINGAN, PLESTER, ACIAN DAN CAT
c. Lantai & Pondasi
GRANIT 60X60 & BATU KALI


Harga: Rp 1.508.000.000
Luas Bangunan: 101m 2
Luas Lahan: 156m 2
Kamar Tidur: 3
Kamar Mandi: 3
a. Atap
BAJA RINGAN, GENTENG BETON CISANGKAN
b. Dinding
BATA RINGAN, PLESTER, ACI DAN CAT
c. Lantai & Pondasi
GRANIT 60 X 60 & STRAUSFILE


Harga: Rp 1.841.000.000
Luas Bangunan: 124m 2
Luas Lahan: 201m 2
Kamar Tidur: 3
Kamar Mandi: 4
a. Atap
RANGKA BAJA RINGAN, GENTENG BETON CISANGKAN
b. Dinding
BATA RINGAN, PLESTER ACI DAN CAT
c. Lantai & Pondasi
GRANIT 60X60 & STRAUSFILE


Harga: Rp 753.000.000
Luas Bangunan: 38m 2
Luas Lahan: 112m 2
Kamar Tidur: 2
Kamar Mandi: 1
a. Atap
RANGKA BAJA RINGAN, GENTENG CISANGKAN
b. Dinding
BATA RINGAN, PLESTER, ACI DAN CAT
c. Lantai & Pondasi
GRANIT 60X60 & BATU KALI


Harga: Rp 771.000.000
Luas Bangunan: 38m 2
Luas Lahan: 118m 2
Kamar Tidur: 2
Kamar Mandi: 1
a. Atap
RANGKA BAJA RINGAN, GENTENG CISANGKAN
b. Dinding
BATA RINGAN, PLESTER, ACI DAN CAT
c. Lantai & Pondasi
GRANIT 60X60 & BATU KALI


Harga: Rp 699.000.000
Luas Bangunan: 38m 2
Luas Lahan: 109m 2
Kamar Tidur: 2
Kamar Mandi: 1
a. Atap
RANGKA BAJA RINGAN, GENTENG CISANGKAN
b. Dinding
BATA RINGAN, PLESTER, ACI DAN CAT
c. Lantai & Pondasi
GRANIT 60X60 & BATU KALI


Harga: Rp 1.793.000.000
Luas Bangunan: 124m 2
Luas Lahan: 195m 2
Kamar Tidur: 4
Kamar Mandi: 4
a. Atap
RANGKA BAJA RINGAN, GENTENG CISANGKAN
b. Dinding
BATA RINGAN, PLESTER, ACI DAN CAT
c. Lantai & Pondasi
GRANIT 60 X 60 & STRAUSPILE


Harga: Rp 2.000.000.000
Luas Bangunan: 124m 2
Luas Lahan: 235m 2
Kamar Tidur: 4
Kamar Mandi: 4
a. Atap
RANGKA BAJA RINGAN, GENTENG CISANGKAN
b. Dinding
BATA RINGAN, PLESTER, ACI DAN CAT
c. Lantai & Pondasi
GRANIT 60X60 & STRAUSPILE


Harga: Rp 1.405.000.000
Luas Bangunan: 101m 2
Luas Lahan: 135m 2
Kamar Tidur: 3
Kamar Mandi: 3
a. Atap
RANGKA BAJA RINGAN, GENTENG CISANGKAN
b. Dinding
BATA RINGAN, PLESTER ACI DAN CAT
c. Lantai & Pondasi
GRANIT 60X60 & STRAUSPILE


Harga: Rp 1.000.000.000
Luas Bangunan: 60m 2
Luas Lahan: 171m 2
Kamar Tidur: 3
Kamar Mandi: 2
a. Atap
RANGKA BAJA RINGAN ATAP GENTENG CISANGKAN
b. Dinding
BATA RINGAN, PLESTER ACIAN DAN CAT
c. Lantai & Pondasi
GRANIT 60X60 & BATU KALI


Harga: Rp 1.000.000.000
Luas Bangunan: 60m 2
Luas Lahan: 168m 2
Kamar Tidur: 3
Kamar Mandi: 2
a. Atap
RANGKA BAJA RINGAN, ATAP GENTENG CISANGKAN
b. Dinding
BATA RINGAN, PLESTER ACIAN DAN CAT
c. Lantai & Pondasi
GRANIT 60X60 & BATU KALI


Harga: Rp 1.400.000.000
Luas Bangunan: 101m 2
Luas Lahan: 130m 2
Kamar Tidur: 3
Kamar Mandi: 3
a. Atap
RANGKA BAJA RINGAN, GENTENG CISANGKAN
b. Dinding
BATA RINGAN, PLESTER, ACIAN, DAN CAT
c. Lantai & Pondasi
GRANIT 60X60 & BATU KALI


Harga: Rp 1.600.000.000
Luas Bangunan: 101m 2
Luas Lahan: 162m 2
Kamar Tidur: 3
Kamar Mandi: 3
a. Atap
RANGKA BAJA RINGAN, GENTENG CISANGKAN
b. Dinding
BATA RINGAN, PLESTER, ACIAN DAN CAT
c. Lantai & Pondasi
GRANIT 60X60 & STRAUSFILE