ID Lokasi : SOR3520062026T001
JAWA BARAT, KAB BANDUNG, Paseh, Sindangsari
PT WANDRI JAYA
PERKUMPULAN ASOSIASI PENGEMBANG PERUMAHAN DAN PERMUKIMAN SELURUH INDONESIA
(APERSI)
Subsidi : 0 Unit
Terjual Subsidi : 0 Unit
Komersil : 14 Unit
Terjual Komersil : 0 Unit
Lihat Siteplan DigitalPerumahan Wandri Majalaya Asri Blok R no. 1 JAWA BARAT, KAB BANDUNG, Paseh, Cipaku
Telp : 082314970431
Email : wandrimajalayaasricipaku@gmail.com
Website : wandrijaya.com





Harga: Rp 370.000.000
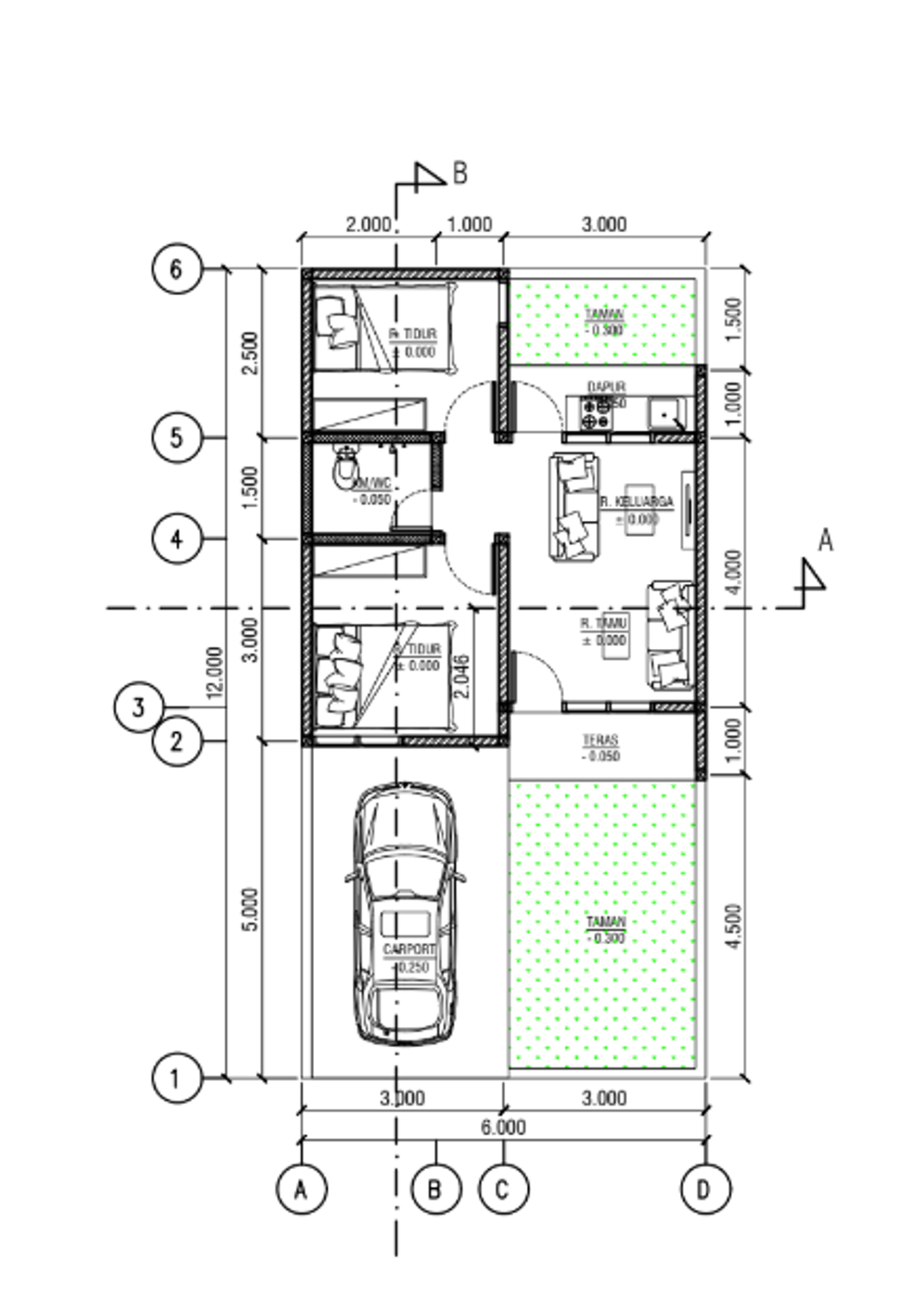
Luas Bangunan: 36m 2
Luas Lahan: 72m 2
Kamar Tidur: 2
Kamar Mandi: 1
a. Atap
Baja Ringan
b. Dinding
Hebel
c. Lantai & Pondasi
Keramik & Cakar Ayam


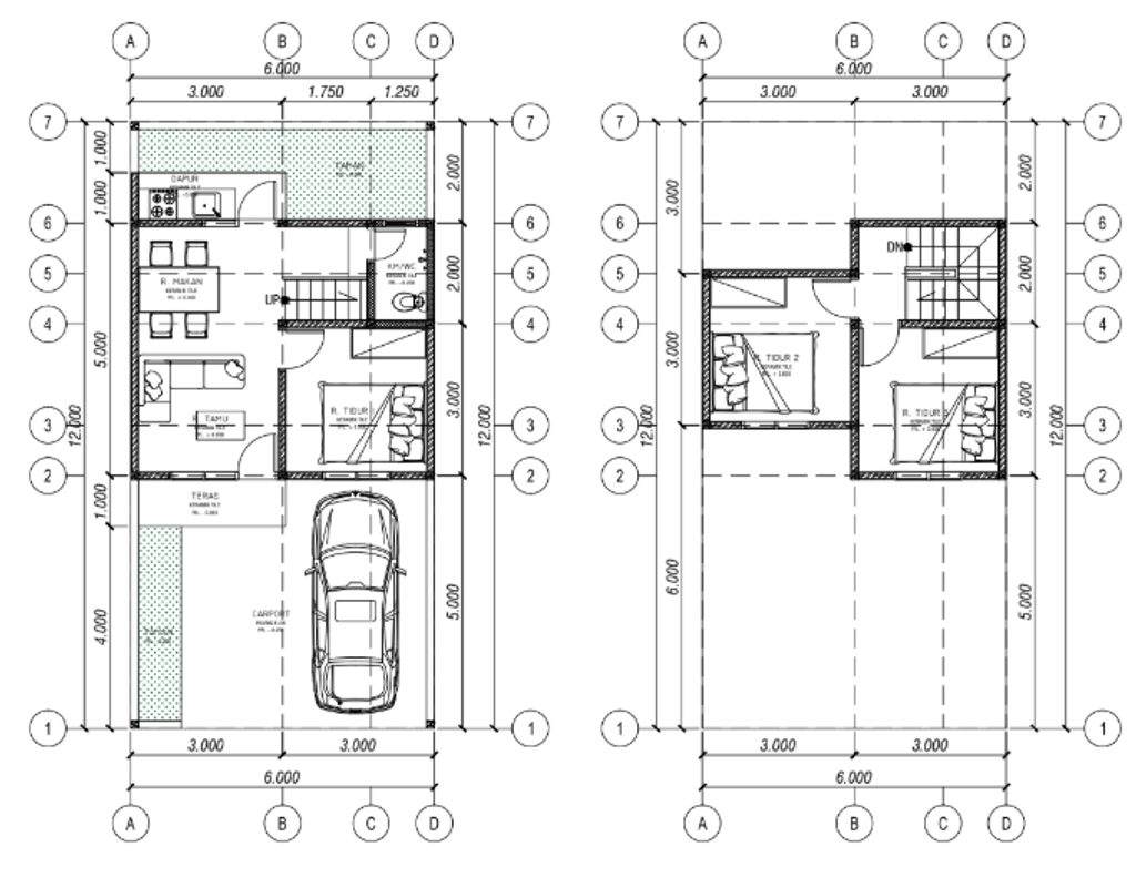
Harga: Rp 500.000.000
Luas Bangunan: 72m 2
Luas Lahan: 60m 2
Kamar Tidur: 3
Kamar Mandi: 1
a. Atap
Baja Ringan
b. Dinding
Hebel
c. Lantai & Pondasi
Keramik & Cakar Ayam


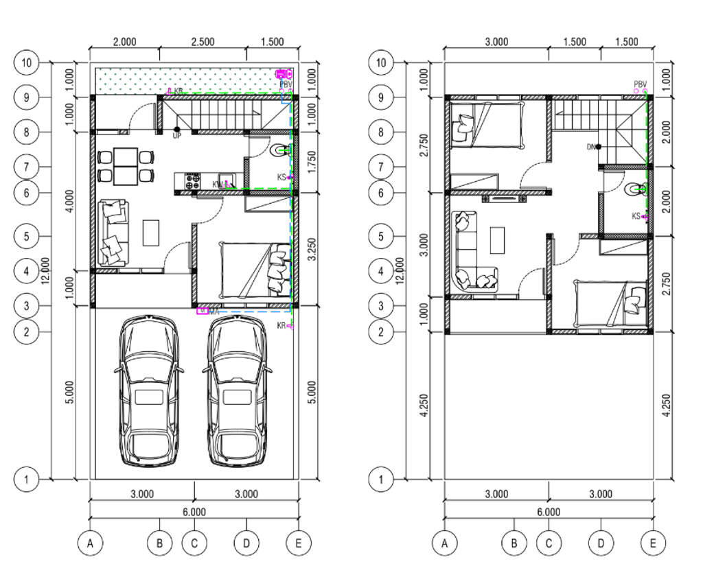
Harga: Rp 640.000.000
Luas Bangunan: 108m 2
Luas Lahan: 76.5m 2
Kamar Tidur: 3
Kamar Mandi: 2
a. Atap
Baja Ringan
b. Dinding
Hebel
c. Lantai & Pondasi
Keramik & Cakar Ayam


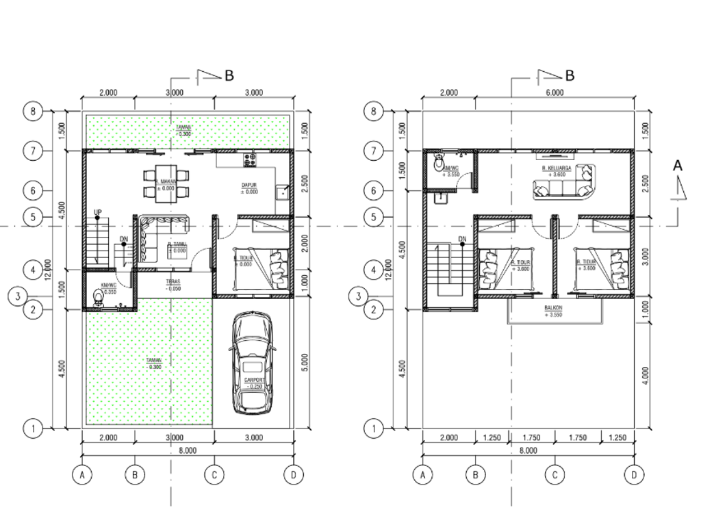
Harga: Rp 750.000.000
Luas Bangunan: 96m 2
Luas Lahan: 90m 2
Kamar Tidur: 3
Kamar Mandi: 2
a. Atap
Baja Ringan
b. Dinding
Hebel
c. Lantai & Pondasi
Keramik & Cakar Ayam
Perumahan Wandri Majalaya Asri Blok R no. 1 JAWA BARAT, KAB BANDUNG, Paseh, Cipaku
Telp : 082314970431
Email : wandrimajalayaasricipaku@gmail.com
Website : wandrijaya.com