ID Lokasi : SOR3720212024T002
JAWA BARAT, KAB BANDUNG, Soreang, Sekarwangi
PT PAJAJARAN MULIA JAYA
REAL ESTATE INDONESIA
(REI)
Subsidi : 0 Unit
Terjual Subsidi : 0 Unit
Komersil : 1 Unit
Terjual Komersil : 49 Unit
Lihat Siteplan DigitalJl. Raya Soreang Kopo no. 84 JAWA BARAT, KAB BANDUNG, Soreang, Sekarwangi
Telp : 081232385000
Email : admin@ganproperti.com
Website : www.ganproperti.com





Harga: Rp 537.000.000
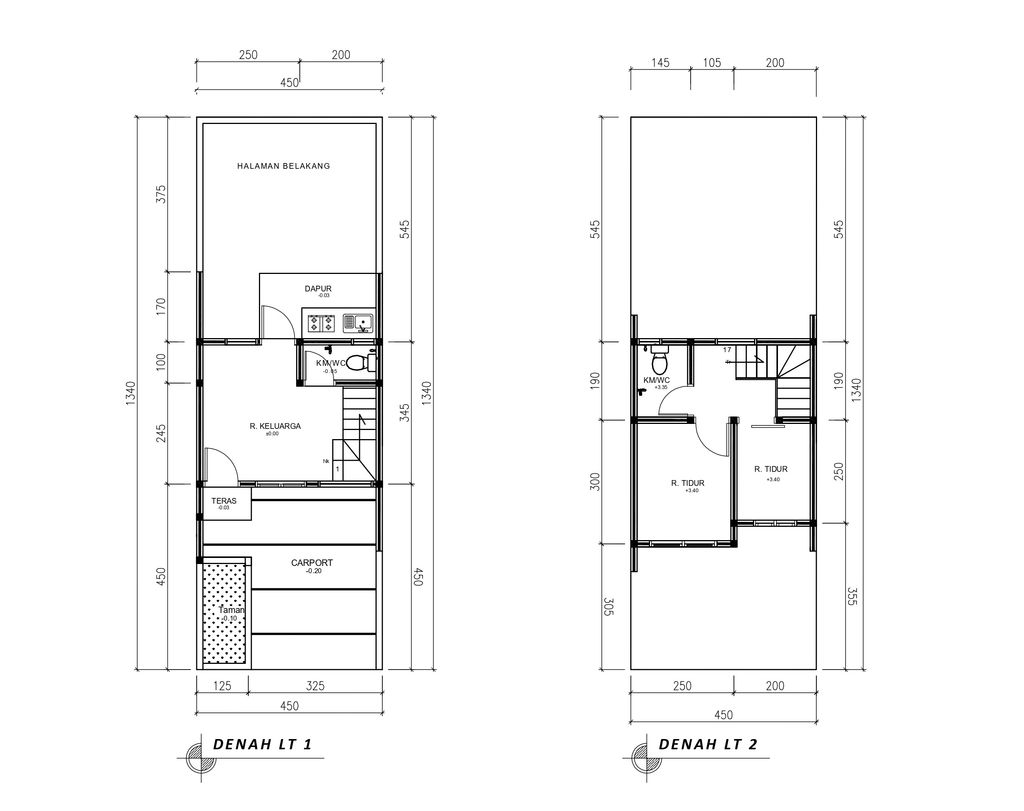
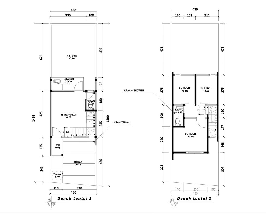
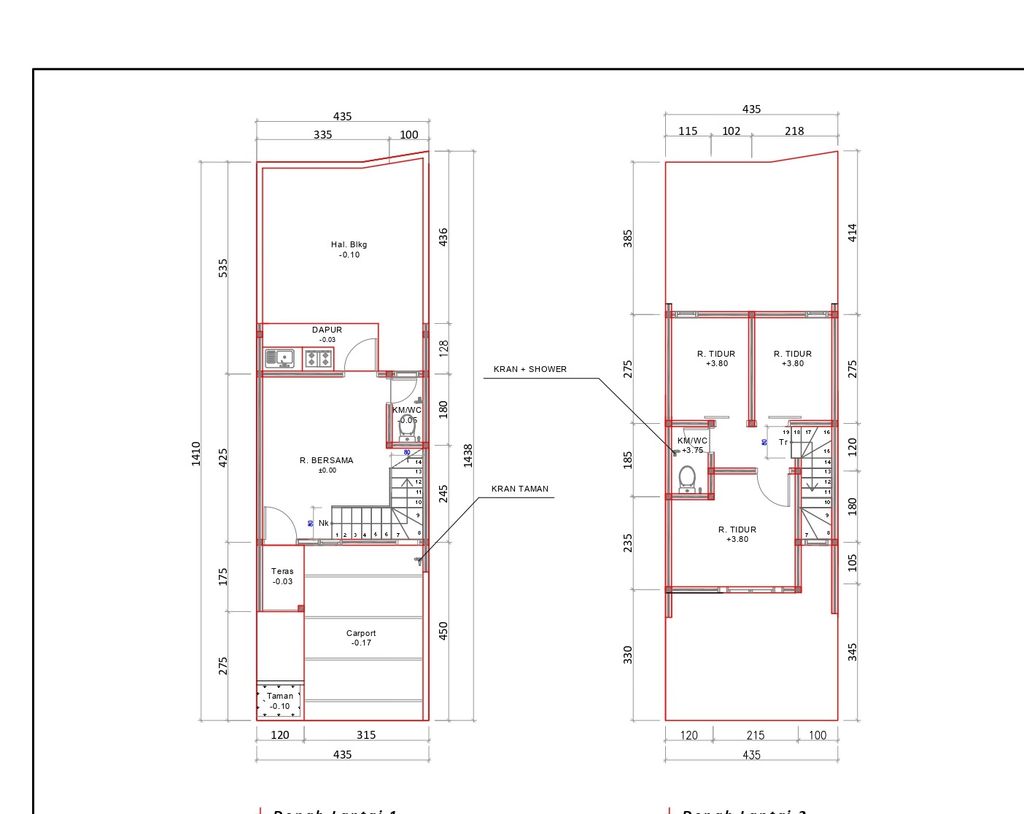
Luas Bangunan: 50m 2
Luas Lahan: 60m 2
Kamar Tidur: 3
Kamar Mandi: 2
a. Atap
Baja ringan + genteng beton cisangkan
b. Dinding
Bata Hebel + Plester Aci Cat
c. Lantai & Pondasi
Granit & Batu kali + struktur cakar ayam dan strauss pile


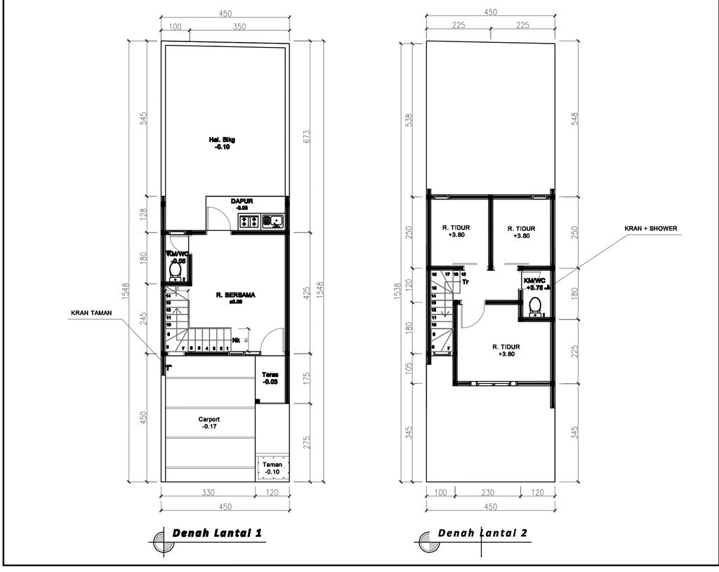
Harga: Rp 480.000.000
Luas Bangunan: 50m 2
Luas Lahan: 60m 2
Kamar Tidur: 3
Kamar Mandi: 2
a. Atap
Baja ringan + genteng beton cisangkan
b. Dinding
Bata Hebel + Plester Aci Cat
c. Lantai & Pondasi
Granit & Batu kali + struktur cakar ayam dan strauss pile


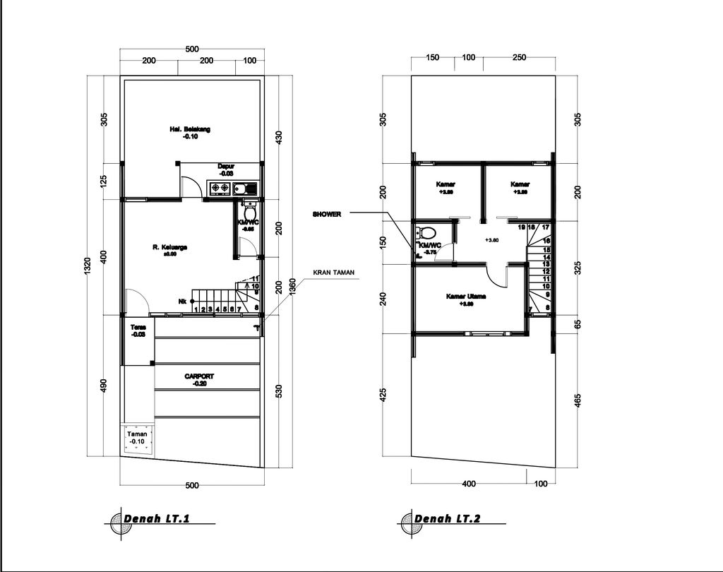
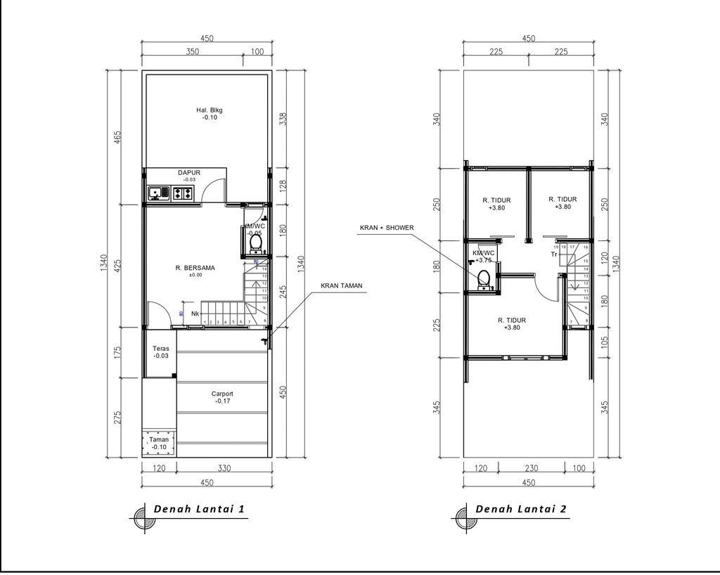
Harga: Rp 494.000.000
Luas Bangunan: 41m 2
Luas Lahan: 60m 2
Kamar Tidur: 2
Kamar Mandi: 1
a. Atap
hebel
b. Dinding
tebal
c. Lantai & Pondasi
granit & ceker ayam


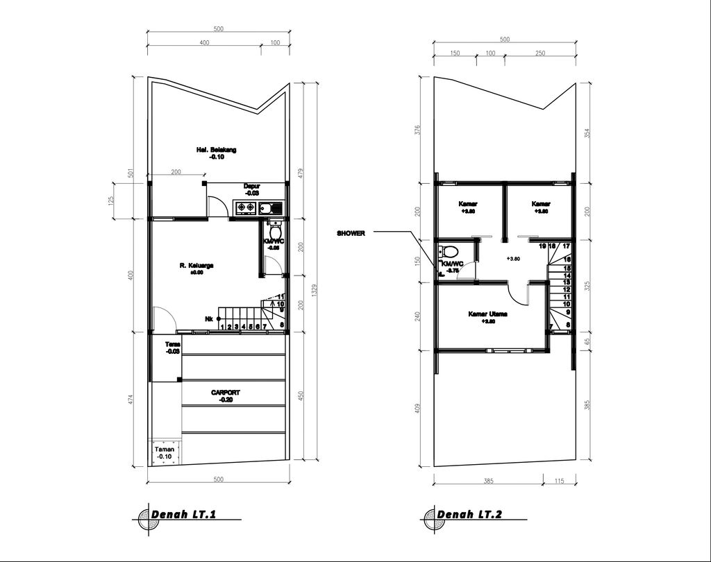
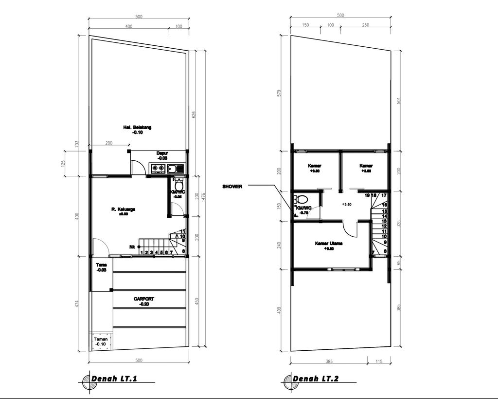
Harga: Rp 550.000.000
Luas Bangunan: 50m 2
Luas Lahan: 60m 2
Kamar Tidur: 2
Kamar Mandi: 2
a. Atap
Baja ringan + genteng beton cisangkan
b. Dinding
Bata Hebel + Plester Aci Cat
c. Lantai & Pondasi
Granit
& Batu kali + struktur cakar ayam dan strauss pile


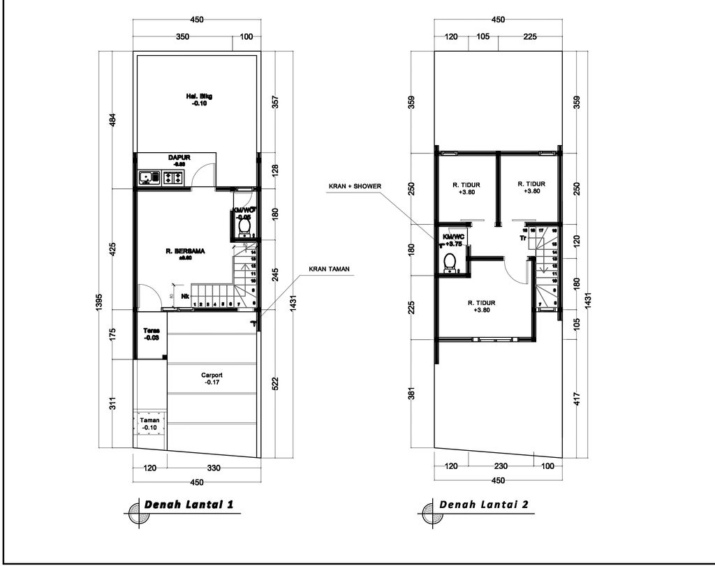
Harga: Rp 445.000.000
Luas Bangunan: 41m 2
Luas Lahan: 60m 2
Kamar Tidur: 2
Kamar Mandi: 2
a. Atap
Baja ringan + genteng beton cisangkan
b. Dinding
Baja ringan + genteng beton cisangkan Bata Hebel + Plester Aci Cat
c. Lantai & Pondasi
Granit
& Batu kali + struktur cakar ayam dan strauss pile


Harga: Rp 479.000.000
Luas Bangunan: 41m 2
Luas Lahan: 64m 2
Kamar Tidur: 3
Kamar Mandi: 2
a. Atap
Baja ringan + genteng beton
b. Dinding
Bata hebel + plester aci cat
c. Lantai & Pondasi
Granit
& Batu kali + struktur cakar ayam dan strauss pile


Harga: Rp 497.000.000
Luas Bangunan: 41m 2
Luas Lahan: 64m 2
Kamar Tidur: 3
Kamar Mandi: 2
a. Atap
Baja ringan + genteng beton
b. Dinding
Bata hebel + plester aci cat
c. Lantai & Pondasi
Granit
& Batu kali + struktur cakar ayam dan strauss pile


Harga: Rp 437.000.000
Luas Bangunan: 38m 2
Luas Lahan: 60m 2
Kamar Tidur: 2
Kamar Mandi: 2
a. Atap
Baja ringan + genteng beton
b. Dinding
Bata hebel + plester aci cat
c. Lantai & Pondasi
Granit
& Batu kali + struktur cakar ayam dan strauss pile


Harga: Rp 448.000.000
Luas Bangunan: 38m 2
Luas Lahan: 63m 2
Kamar Tidur: 2
Kamar Mandi: 2
a. Atap
Baja ringan + genteng beton
b. Dinding
Bata hebel + plester aci cat
c. Lantai & Pondasi
Granit
& Batu kali + struktur cakar ayam dan strauss pile


Harga: Rp 487.000.000
Luas Bangunan: 41m 2
Luas Lahan: 66m 2
Kamar Tidur: 2
Kamar Mandi: 2
a. Atap
Baja ringan + genteng beton
b. Dinding
Bata hebel + plester aci cat
c. Lantai & Pondasi
Granit
& Batu kali + struktur cakar ayam dan strauss pile


Harga: Rp 487.000.000
Luas Bangunan: 41m 2
Luas Lahan: 66m 2
Kamar Tidur: 2
Kamar Mandi: 2
a. Atap
Baja ringan + genteng beton
b. Dinding
Bata hebel + plester aci cat
c. Lantai & Pondasi
Granit
& Batu kali + struktur cakar ayam dan strauss pile


Harga: Rp 487.000.000
Luas Bangunan: 41m 2
Luas Lahan: 66m 2
Kamar Tidur: 2
Kamar Mandi: 2
a. Atap
Baja ringan + genteng beton
b. Dinding
Bata hebel + plester aci cat
c. Lantai & Pondasi
Granit
& Batu kali + struktur cakar ayam dan strauss pile


Harga: Rp 487.000.000
Luas Bangunan: 41m 2
Luas Lahan: 66m 2
Kamar Tidur: 2
Kamar Mandi: 2
a. Atap
Baja ringan + genteng beton
b. Dinding
Bata hebel + plester aci cat
c. Lantai & Pondasi
Granit
& Batu kali + struktur cakar ayam dan strauss pile


Harga: Rp 452.000.000
Luas Bangunan: 38m 2
Luas Lahan: 64m 2
Kamar Tidur: 2
Kamar Mandi: 2
a. Atap
Baja ringan + genteng beton
b. Dinding
Bata hebel + plester aci cat
c. Lantai & Pondasi
Granit
& Batu kali + struktur cakar ayam dan strauss pile


Harga: Rp 463.000.000
Luas Bangunan: 41m 2
Luas Lahan: 60m 2
Kamar Tidur: 2
Kamar Mandi: 2
a. Atap
Baja ringan + genteng beton
b. Dinding
Bata hebel + plester aci cat
c. Lantai & Pondasi
Granit
& Batu kali + struktur cakar ayam dan strauss pile


Harga: Rp 560.000.000
Luas Bangunan: 50m 2
Luas Lahan: 61m 2
Kamar Tidur: 3
Kamar Mandi: 2
a. Atap
Baja ringan + genteng beton
b. Dinding
Bata hebel + plester aci cat
c. Lantai & Pondasi
Granit
& Batu kali + struktur cakar ayam dan strauss pile


Harga: Rp 555.000.000
Luas Bangunan: 50m 2
Luas Lahan: 60m 2
Kamar Tidur: 3
Kamar Mandi: 2
a. Atap
Baja ringan + genteng beton
b. Dinding
Bata hebel + plester aci cat
c. Lantai & Pondasi
Granit
& Batu kali + struktur cakar ayam dan strauss pile


Harga: Rp 546.000.000
Luas Bangunan: 50m 2
Luas Lahan: 62m 2
Kamar Tidur: 3
Kamar Mandi: 2
a. Atap
Baja ringan + genteng beton
b. Dinding
Bata hebel + plester aci cat
c. Lantai & Pondasi
Granit
& Batu kali + struktur cakar ayam dan strauss pile


Harga: Rp 484.000.000
Luas Bangunan: 38m 2
Luas Lahan: 69m 2
Kamar Tidur: 2
Kamar Mandi: 2
a. Atap
Baja ringan + genteng beton
b. Dinding
Bata hebel + plester aci cat
c. Lantai & Pondasi
Granit
& Batu kali + struktur cakar ayam dan strauss pile


Harga: Rp 467.000.000
Luas Bangunan: 41m 2
Luas Lahan: 61m 2
Kamar Tidur: 2
Kamar Mandi: 2
a. Atap
Baja ringan + genteng beton
b. Dinding
Bata hebel + plester aci cat
c. Lantai & Pondasi
Granit
& Batu kali + struktur cakar ayam dan strauss pile


Harga: Rp 574.000.000
Luas Bangunan: 50m 2
Luas Lahan: 64m 2
Kamar Tidur: 3
Kamar Mandi: 2
a. Atap
Baja ringan + genteng beton
b. Dinding
Bata hebel + plester aci cat
c. Lantai & Pondasi
Granit
& Batu kali + struktur cakar ayam dan strauss pile


Harga: Rp 501.000.000
Luas Bangunan: 38m 2
Luas Lahan: 69m 2
Kamar Tidur: 2
Kamar Mandi: 2
a. Atap
Baja ringan + genteng beton
b. Dinding
Bata hebel + plester aci cat
c. Lantai & Pondasi
Granit
& Batu kali + struktur cakar ayam dan strauss pile


Harga: Rp 480.000.000
Luas Bangunan: 38m 2
Luas Lahan: 68m 2
Kamar Tidur: 2
Kamar Mandi: 2
a. Atap
Baja ringan + genteng beton
b. Dinding
Bata hebel + plester aci cat
c. Lantai & Pondasi
Granit
& Batu kali + struktur cakar ayam dan strauss pile


Harga: Rp 464.000.000
Luas Bangunan: 38m 2
Luas Lahan: 64m 2
Kamar Tidur: 2
Kamar Mandi: 2
a. Atap
Baja ringan + genteng beton
b. Dinding
Bata hebel + plester aci cat
c. Lantai & Pondasi
Granit
& Batu kali + struktur cakar ayam dan strauss pile


Harga: Rp 445.000.000
Luas Bangunan: 41m 2
Luas Lahan: 63m 2
Kamar Tidur: 2
Kamar Mandi: 2
a. Atap
Baja ringan + genteng beton
b. Dinding
Bata hebel + plester aci cat
c. Lantai & Pondasi
Granit
& Batu kali + struktur cakar ayam dan strauss pile


Harga: Rp 560.000.000
Luas Bangunan: 50m 2
Luas Lahan: 65m 2
Kamar Tidur: 3
Kamar Mandi: 2
a. Atap
Baja ringan + genteng beton
b. Dinding
Bata hebel + plester aci cat
c. Lantai & Pondasi
Granit
& Batu kali + struktur cakar ayam dan strauss pile


Harga: Rp 441.000.000
Luas Bangunan: 38m 2
Luas Lahan: 66m 2
Kamar Tidur: 2
Kamar Mandi: 2
a. Atap
Baja ringan + genteng beton
b. Dinding
Bata hebel + plester aci cat
c. Lantai & Pondasi
Granit
& Batu kali + struktur cakar ayam dan strauss pile


Harga: Rp 422.000.000
Luas Bangunan: 38m 2
Luas Lahan: 61m 2
Kamar Tidur: 2
Kamar Mandi: 2
a. Atap
Baja ringan + genteng beton
b. Dinding
Bata hebel + plester aci cat
c. Lantai & Pondasi
Granit
& Batu kali + struktur cakar ayam dan strauss pile


Harga: Rp 578.000.000
Luas Bangunan: 50m 2
Luas Lahan: 65m 2
Kamar Tidur: 3
Kamar Mandi: 2
a. Atap
Baja ringan + genteng beton
b. Dinding
Bata hebel + plester aci cat
c. Lantai & Pondasi
Granit
& Batu kali + struktur cakar ayam dan strauss pile


Harga: Rp 412.000.000
Luas Bangunan: 36m 2
Luas Lahan: 72m 2
Kamar Tidur: 2
Kamar Mandi: 2
a. Atap
Baja ringan + genteng beton
b. Dinding
Bata hebel + plester aci cat
c. Lantai & Pondasi
Granit
& Batu kali + struktur cakar ayam dan strauss pile


Harga: Rp 482.000.000
Luas Bangunan: 50m 2
Luas Lahan: 62m 2
Kamar Tidur: 3
Kamar Mandi: 2
a. Atap
Baja ringan + genteng beton
b. Dinding
Bata hebel + plester aci cat
c. Lantai & Pondasi
Granit
& Batu kali + struktur cakar ayam dan strauss pile


Harga: Rp 474.000.000
Luas Bangunan: 50m 2
Luas Lahan: 60m 2
Kamar Tidur: 3
Kamar Mandi: 2
a. Atap
Baja ringan + genteng beton
b. Dinding
Bata hebel + plester aci cat
c. Lantai & Pondasi
Granit
& Batu kali + struktur cakar ayam dan strauss pile


Harga: Rp 433.000.000
Luas Bangunan: 41m 2
Luas Lahan: 60m 2
Kamar Tidur: 2
Kamar Mandi: 2
a. Atap
Baja ringan + genteng beton
b. Dinding
Bata hebel + plester aci cat
c. Lantai & Pondasi
Granit
& Batu kali + struktur cakar ayam dan strauss pile


Harga: Rp 441.000.000
Luas Bangunan: 38m 2
Luas Lahan: 66m 2
Kamar Tidur: 2
Kamar Mandi: 2
a. Atap
Baja ringan + genteng beton
b. Dinding
Bata hebel + plester aci cat
c. Lantai & Pondasi
Granit
& Batu kali + struktur cakar ayam dan strauss pile


Harga: Rp 579.000.000
Luas Bangunan: 50m 2
Luas Lahan: 69m 2
Kamar Tidur: 3
Kamar Mandi: 2
a. Atap
Baja ringan + genteng beton
b. Dinding
Bata hebel + plester aci cat
c. Lantai & Pondasi
Granit
& Batu kali + struktur cakar ayam dan strauss pile


Harga: Rp 399.000.000
Luas Bangunan: 38m 2
Luas Lahan: 60m 2
Kamar Tidur: 2
Kamar Mandi: 2
a. Atap
Baja ringan + genteng beton
b. Dinding
Bata hebel + plester aci cat
c. Lantai & Pondasi
Granit
& Batu kali + struktur cakar ayam dan strauss pile


Harga: Rp 472.000.000
Luas Bangunan: 50m 2
Luas Lahan: 67m 2
Kamar Tidur: 3
Kamar Mandi: 2
a. Atap
Baja ringan + genteng beton
b. Dinding
Bata hebel + plester aci cat
c. Lantai & Pondasi
Granit
& Batu kali + struktur cakar ayam dan strauss pile


Harga: Rp 458.000.000
Luas Bangunan: 50m 2
Luas Lahan: 63m 2
Kamar Tidur: 3
Kamar Mandi: 2
a. Atap
Baja ringan + genteng beton
b. Dinding
Bata hebel + plester aci cat
c. Lantai & Pondasi
Granit
& Batu kali + struktur cakar ayam dan strauss pile


Harga: Rp 526.000.000
Luas Bangunan: 50m 2
Luas Lahan: 65m 2
Kamar Tidur: 3
Kamar Mandi: 2
a. Atap
Baja ringan + genteng beton
b. Dinding
Bata hebel + plester aci cat
c. Lantai & Pondasi
Granit
& Batu kali + struktur cakar ayam dan strauss pile


Harga: Rp 446.000.000
Luas Bangunan: 50m 2
Luas Lahan: 64m 2
Kamar Tidur: 3
Kamar Mandi: 2
a. Atap
Baja ringan + genteng beton
b. Dinding
Bata hebel + plester aci cat
c. Lantai & Pondasi
Granit
& Batu kali + struktur cakar ayam dan strauss pile


Harga: Rp 458.000.000
Luas Bangunan: 50m 2
Luas Lahan: 66m 2
Kamar Tidur: 3
Kamar Mandi: 2
a. Atap
Baja ringan + genteng beton
b. Dinding
Bata hebel + plester aci cat
c. Lantai & Pondasi
Granit
& Batu kali + struktur cakar ayam dan strauss pile


Harga: Rp 426.000.000
Luas Bangunan: 50m 2
Luas Lahan: 60m 2
Kamar Tidur: 3
Kamar Mandi: 2
a. Atap
Baja ringan + genteng beton
b. Dinding
Bata hebel + plester aci cat
c. Lantai & Pondasi
Granit
& Batu kali + struktur cakar ayam dan strauss pile


Harga: Rp 455.000.000
Luas Bangunan: 50m 2
Luas Lahan: 62m 2
Kamar Tidur: 3
Kamar Mandi: 2
a. Atap
Baja ringan + genteng beton
b. Dinding
Bata hebel + plester aci cat
c. Lantai & Pondasi
Granit
& Batu kali + struktur cakar ayam dan strauss pile


Harga: Rp 458.000.000
Luas Bangunan: 50m 2
Luas Lahan: 63m 2
Kamar Tidur: 3
Kamar Mandi: 2
a. Atap
Baja ringan + genteng beton
b. Dinding
Bata hebel + plester aci cat
c. Lantai & Pondasi
Granit
& Batu kali + struktur cakar ayam dan strauss pile


Harga: Rp 490.000.000
Luas Bangunan: 50m 2
Luas Lahan: 69m 2
Kamar Tidur: 3
Kamar Mandi: 2
a. Atap
Baja ringan + genteng beton
b. Dinding
Bata hebel + plester aci cat
c. Lantai & Pondasi
Granit
& Batu kali + struktur cakar ayam dan strauss pile


Harga: Rp 426.000.000
Luas Bangunan: 50m 2
Luas Lahan: 60m 2
Kamar Tidur: 3
Kamar Mandi: 2
a. Atap
Baja ringan + genteng beton
b. Dinding
Bata hebel + plester aci cat
c. Lantai & Pondasi
Granit
& Batu kali + struktur cakar ayam dan strauss pile


Harga: Rp 452.000.000
Luas Bangunan: 50m 2
Luas Lahan: 61m 2
Kamar Tidur: 3
Kamar Mandi: 2
a. Atap
Baja ringan + genteng beton
b. Dinding
Bata hebel + plester aci cat
c. Lantai & Pondasi
Granit
& Batu kali + struktur cakar ayam dan strauss pile


Harga: Rp 674.000.000
Luas Bangunan: 50m 2
Luas Lahan: 75m 2
Kamar Tidur: 3
Kamar Mandi: 2
a. Atap
Baja ringan + genteng beton
b. Dinding
Bata hebel + plester aci cat
c. Lantai & Pondasi
Granit
& Batu kali + struktur cakar ayam dan strauss pile


Harga: Rp 452.000.000
Luas Bangunan: 50m 2
Luas Lahan: 61m 2
Kamar Tidur: 2
Kamar Mandi: 2
a. Atap
Baja ringan + genteng beton
b. Dinding
Bata hebel + plester aci cat
c. Lantai & Pondasi
Granit & Batu kali + struktur cakar ayam dan strauss pile


Harga: Rp 392.000.000
Luas Bangunan: 41m 2
Luas Lahan: 60m 2
Kamar Tidur: 3
Kamar Mandi: 2
a. Atap
Baja ringan + genteng beton
b. Dinding
Bata hebel + plester aci cat
c. Lantai & Pondasi
Granit
& Batu kali + struktur cakar ayam dan strauss pile
Jl. Raya Soreang Kopo no. 84 JAWA BARAT, KAB BANDUNG, Soreang, Sekarwangi
Telp : 081232385000
Email : admin@ganproperti.com
Website : www.ganproperti.com