ID Lokasi : SOR4420052024T002
JAWA BARAT, KAB BANDUNG, Cangkuang, Pananjung
PT GRAHA ADICIPTA NUGRAHA
REAL ESTATE INDONESIA
(REI)
Subsidi : 0 Unit
Terjual Subsidi : 0 Unit
Komersil : 0 Unit
Terjual Komersil : 24 Unit
Lihat Siteplan DigitalJl. Bojong Sayang no. - JAWA BARAT, KAB BANDUNG, Cangkuang, Pananjung
Telp : 081232385000
Email : admin@ganproperti.com
Website : www.ganproperti.com





Harga: Rp 363.000.000
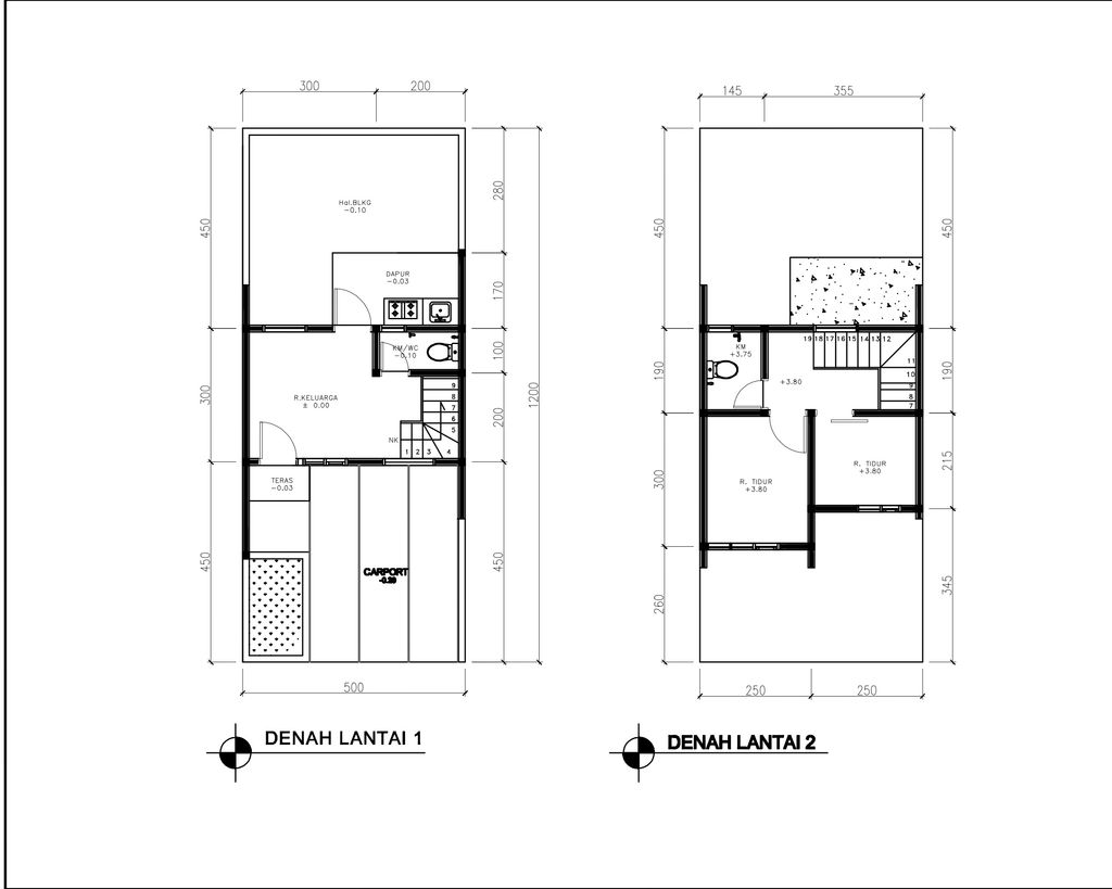
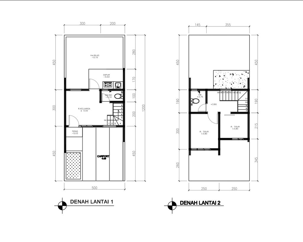
Luas Bangunan: 33m 2
Luas Lahan: 60m 2
Kamar Tidur: 2
Kamar Mandi: 1
a. Atap
Baja ringan + genteng beton
b. Dinding
Bata hebel + plester aci cat
c. Lantai & Pondasi
Granit
& Batu kali


Harga: Rp 400.000.000
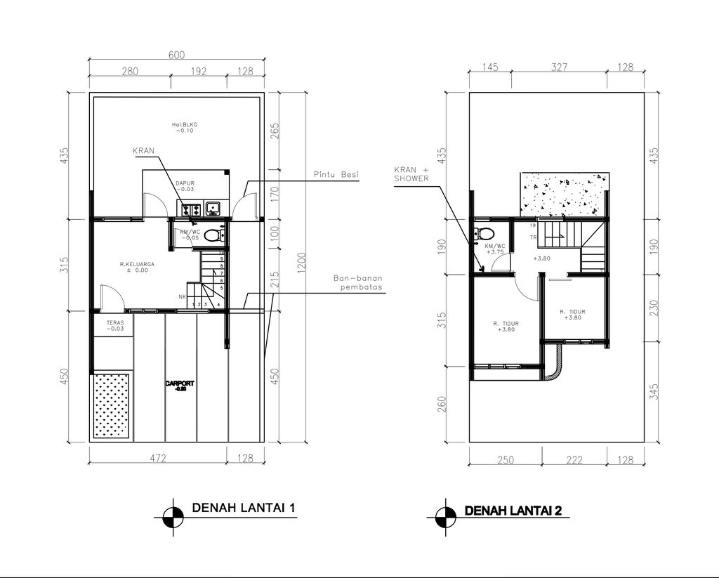
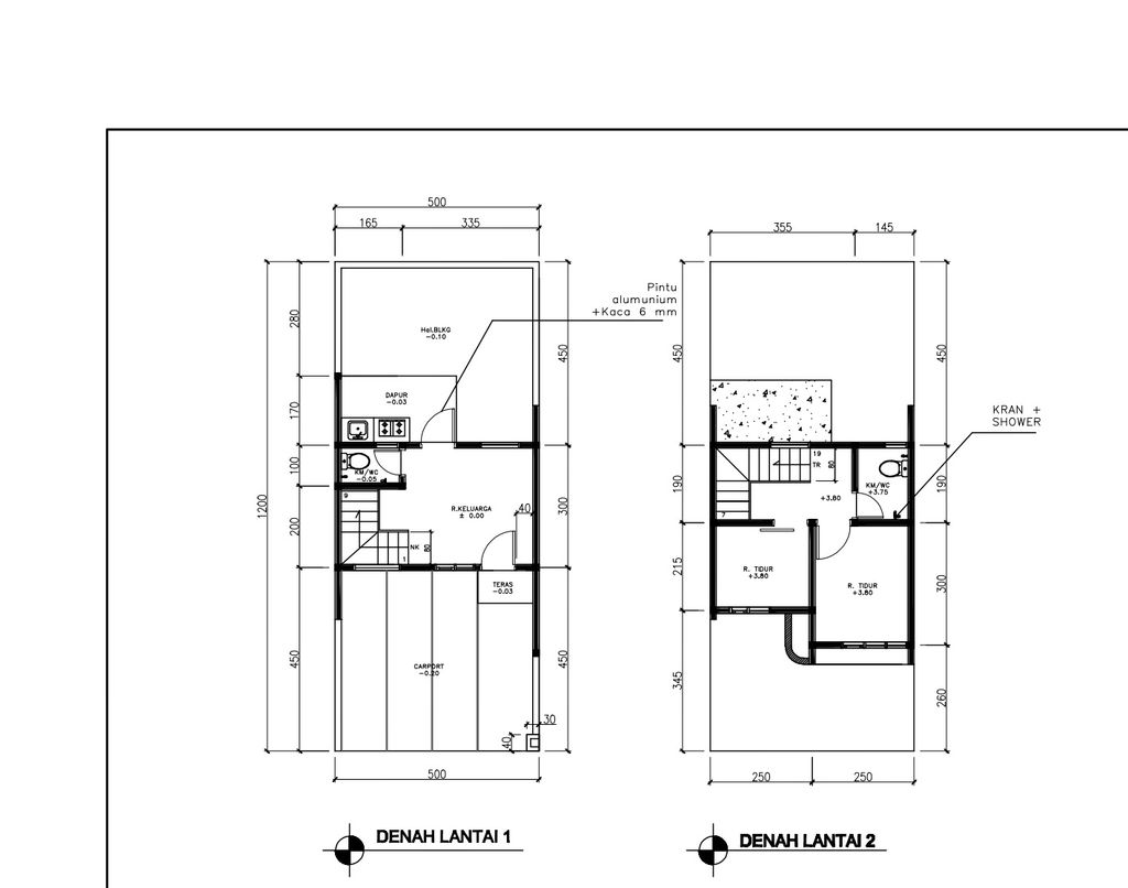
Luas Bangunan: 38m 2
Luas Lahan: 60m 2
Kamar Tidur: 2
Kamar Mandi: 2
a. Atap
Baja ringan + genteng beton
b. Dinding
Bata hebel + plester aci cat
c. Lantai & Pondasi
Granit
& Batu kali + struktur cakar ayam dan strauss pile


Harga: Rp 367.000.000
Luas Bangunan: 38m 2
Luas Lahan: 60m 2
Kamar Tidur: 2
Kamar Mandi: 2
a. Atap
Baja ringan + genteng beton
b. Dinding
Bata hebel + plester aci cat
c. Lantai & Pondasi
Granit
& Batu kali + struktur cakar ayam dan strauss pile


Harga: Rp 408.000.000
Luas Bangunan: 38m 2
Luas Lahan: 60m 2
Kamar Tidur: 2
Kamar Mandi: 2
a. Atap
Baja ringan + genteng beton
b. Dinding
Bata hebel + plester aci cat
c. Lantai & Pondasi
Granit
& Batu kali + struktur cakar ayam dan strauss pile


Harga: Rp 482.000.000
Luas Bangunan: 38m 2
Luas Lahan: 72m 2
Kamar Tidur: 2
Kamar Mandi: 2
a. Atap
Baja ringan + genteng beton
b. Dinding
Bata hebel + plester aci cat
c. Lantai & Pondasi
Granit
& Batu kali + struktur cakar ayam dan strauss pile


Harga: Rp 386.000.000
Luas Bangunan: 38m 2
Luas Lahan: 60m 2
Kamar Tidur: 2
Kamar Mandi: 2
a. Atap
Baja ringan + genteng beton
b. Dinding
Bata hebel + plester aci cat
c. Lantai & Pondasi
Granit
& Batu kali + struktur cakar ayam dan strauss pile


Harga: Rp 509.000.000
Luas Bangunan: 38m 2
Luas Lahan: 60m 2
Kamar Tidur: 2
Kamar Mandi: 2
a. Atap
Baja ringan + genteng beton
b. Dinding
Bata hebel + plester aci cat
c. Lantai & Pondasi
Granit
& Batu kali + struktur cakar ayam dan strauss pile


Harga: Rp 353.000.000
Luas Bangunan: 33m 2
Luas Lahan: 60m 2
Kamar Tidur: 2
Kamar Mandi: 1
a. Atap
Baja ringan + genteng beton
b. Dinding
Bata hebel + plester aci cat
c. Lantai & Pondasi
Granit
& Batu kali


Harga: Rp 386.000.000
Luas Bangunan: 38m 2
Luas Lahan: 60m 2
Kamar Tidur: 2
Kamar Mandi: 2
a. Atap
Baja ringan + genteng beton
b. Dinding
Bata hebel + plester aci cat
c. Lantai & Pondasi
Granit
& Batu kali + struktur cakar ayam dan strauss pile


Harga: Rp 486.000.000
Luas Bangunan: 38m 2
Luas Lahan: 72m 2
Kamar Tidur: 2
Kamar Mandi: 2
a. Atap
Baja ringan + genteng beton
b. Dinding
Bata hebel + plester aci cat
c. Lantai & Pondasi
Granit
& Batu kali + struktur cakar ayam dan strauss pile


Harga: Rp 408.000.000
Luas Bangunan: 38m 2
Luas Lahan: 60m 2
Kamar Tidur: 2
Kamar Mandi: 2
a. Atap
Baja ringan + genteng beton
b. Dinding
Bata hebel + plester aci cat
c. Lantai & Pondasi
Granit
& Batu kali + struktur cakar ayam dan strauss pile


Harga: Rp 386.000.000
Luas Bangunan: 38m 2
Luas Lahan: 60m 2
Kamar Tidur: 2
Kamar Mandi: 2
a. Atap
Baja ringan + genteng beton
b. Dinding
Bata hebel + plester aci cat
c. Lantai & Pondasi
Granit
& Batu kali + struktur cakar ayam dan strauss pile


Harga: Rp 353.000.000
Luas Bangunan: 33m 2
Luas Lahan: 60m 2
Kamar Tidur: 2
Kamar Mandi: 1
a. Atap
Baja ringan + genteng beton
b. Dinding
Bata hebel + plester aci cat
c. Lantai & Pondasi
Granit
& Batu kali + struktur cakar ayam dan strauss pile


Harga: Rp 373.000.000
Luas Bangunan: 38m 2
Luas Lahan: 60m 2
Kamar Tidur: 2
Kamar Mandi: 2
a. Atap
Baja ringan + genteng beton
b. Dinding
Bata hebel + plester aci cat
c. Lantai & Pondasi
Granit
& Batu kali + struktur cakar ayam dan strauss pile


Harga: Rp 471.000.000
Luas Bangunan: 38m 2
Luas Lahan: 72m 2
Kamar Tidur: 2
Kamar Mandi: 2
a. Atap
Baja ringan + genteng beton
b. Dinding
Bata hebel + plester aci cat
c. Lantai & Pondasi
Granit
& Batu kali + struktur cakar ayam dan strauss pile


Harga: Rp 400.000.000
Luas Bangunan: 38m 2
Luas Lahan: 60m 2
Kamar Tidur: 2
Kamar Mandi: 2
a. Atap
Baja ringan + genteng beton
b. Dinding
Bata hebel + plester aci cat
c. Lantai & Pondasi
Granit
& Batu kali + struktur cakar ayam dan strauss pile


Harga: Rp 386.000.000
Luas Bangunan: 38m 2
Luas Lahan: 60m 2
Kamar Tidur: 2
Kamar Mandi: 2
a. Atap
Baja ringan + genteng beton
b. Dinding
Bata hebel + plester aci cat
c. Lantai & Pondasi
Granit
& Batu kali + struktur cakar ayam dan strauss pile


Harga: Rp 386.000.000
Luas Bangunan: 38m 2
Luas Lahan: 60m 2
Kamar Tidur: 2
Kamar Mandi: 1
a. Atap
Baja ringan + genteng beton
b. Dinding
Bata hebel + plester aci cat
c. Lantai & Pondasi
Granit
& Batu kali + struktur cakar ayam dan strauss pile


Harga: Rp 417.000.000
Luas Bangunan: 38m 2
Luas Lahan: 60m 2
Kamar Tidur: 2
Kamar Mandi: 2
a. Atap
Baja ringan + genteng beton
b. Dinding
Bata hebel + plester aci cat
c. Lantai & Pondasi
Granit
& Batu kali + struktur cakar ayam dan strauss pile


Harga: Rp 467.000.000
Luas Bangunan: 38m 2
Luas Lahan: 60m 2
Kamar Tidur: 2
Kamar Mandi: 2
a. Atap
Baja ringan + genteng beton
b. Dinding
Bata hebel + plester aci cat
c. Lantai & Pondasi
Granit
& Batu kali + struktur cakar ayam dan strauss pile


Harga: Rp 471.000.000
Luas Bangunan: 38m 2
Luas Lahan: 72m 2
Kamar Tidur: 2
Kamar Mandi: 2
a. Atap
Baja ringan + genteng beton
b. Dinding
Bata hebel + plester aci cat
c. Lantai & Pondasi
Granit
& Batu kali + struktur cakar ayam dan strauss pile
Jl. Bojong Sayang no. - JAWA BARAT, KAB BANDUNG, Cangkuang, Pananjung
Telp : 081232385000
Email : admin@ganproperti.com
Website : www.ganproperti.com