ID Lokasi : SPA2420052025T002
JAWA BARAT, KAB TASIKMALAYA, Singaparna, Cikunir
PT GRIYA BINTANG PESONA
REAL ESTATE INDONESIA
(REI)
Subsidi : 0 Unit
Terjual Subsidi : 0 Unit
Komersil : 1 Unit
Terjual Komersil : 8 Unit
Lihat Siteplan Digital




Harga: Rp 315.000.000
Luas Bangunan: 45m 2
Luas Lahan: 84m 2
Kamar Tidur: 2
Kamar Mandi: 1
a. Atap
RANGKA ATAP BAJA RINGAN
PENUTUP ATAP GENTENG MORANDO
b. Dinding
DINDING BATA MERAH
c. Lantai & Pondasi
GRANITE TILE 60 X 60 CM & PONDASI BATU KALI


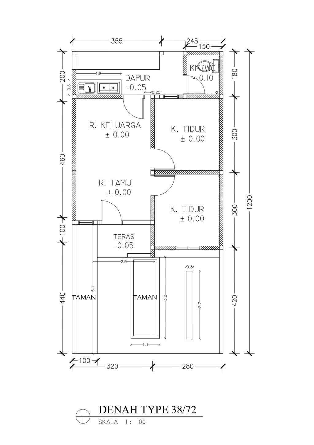
Harga: Rp 250.000.000
Luas Bangunan: 38m 2
Luas Lahan: 72m 2
Kamar Tidur: 2
Kamar Mandi: 1
a. Atap
RANGKA ATAP BAJA RINGAN
PENUTUP ATAP GENTENG MORANDO
b. Dinding
BATA MERAH
c. Lantai & Pondasi
GRANITE TILE 60 X 60 CM & PONDASI BATU KALI


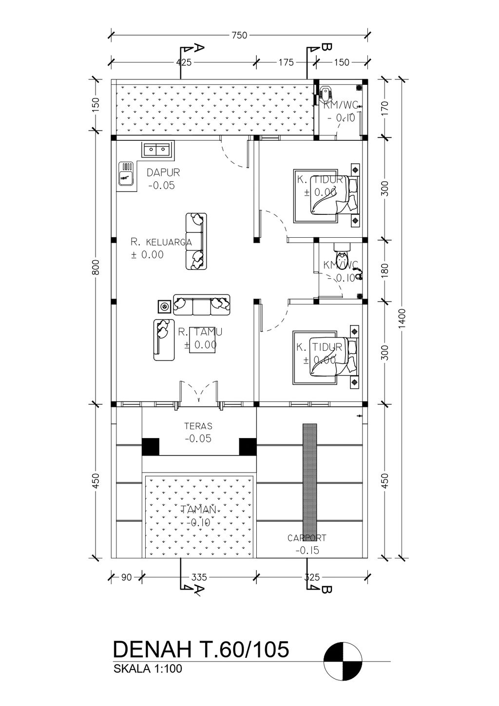
Harga: Rp 465.000.000
Luas Bangunan: 60m 2
Luas Lahan: 105m 2
Kamar Tidur: 2
Kamar Mandi: 2
a. Atap
RANGKA ATAP BAJA RINGAN
PENUTUP ATAP GENTENG MORANDO
b. Dinding
DINDING BATA MERAH
c. Lantai & Pondasi
GRANITE TILE 60 X 60 CM & PONDASI BATU KALI